Prodej pozemku pro bydlení, Jeseník, U Kasáren, 62000 m2 (ID: 2684167)

U Kasáren, Jeseník

25 000 000 Kč /za nemovitost HYPOTÉKA od 111 735 Kč /za měsíc
Prověřené firmy v Jeseníku

Informace k pozemku

EXKLUZIVNÍ ROZSÁHLÝ INVESTIČNÍ KOMPLEX 6.2 HA V ATRAKTIVNÍ LOKALITĚ JESENÍKU!

Jedinečná příležitost pro developery a investory v malebném Jeseníku. Nabízíme komplex pozemků o celkové výměře 62 000 m² (6.2 hektarů), který představuje výjimečný potenciál pro výstavbu, ale i pro dlouhodobé zhodnocení investice.

Co získáte:

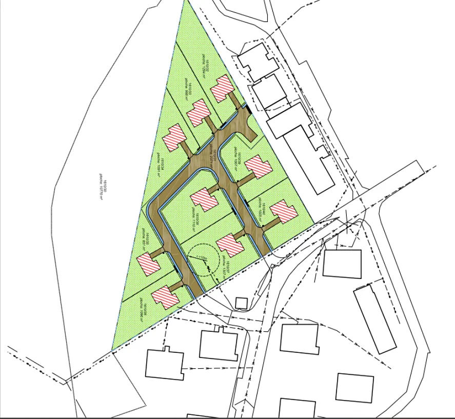
12 600 m² Stavebních pozemků s okamžitým potenciálem (BH, Z4): Tyto plochy jsou ideální pro realizaci projektu rodinných domů, pro který je již k dispozici podrobná mapa dělení parcel pro 9 rodinných domů. Ačkoli je tento podklad z konce roku 2012, představuje cenný výchozí bod pro další projektování. Pozemky zároveň umožňují i výstavbu bytových domů a drobných komerčních či občanských zařízení, což zajišťuje velkou flexibilitu využití. Realizace projektu rodinných domů podléhá splnění aktuálních podmínek územního plánu pro podmíněně přípustné využití.


23 886 m² Územní Rezerva s určením pro hromadné bydlení (R12): Tato významná plocha je v územním plánu zanesena jako územní rezerva pro budoucí development, s potenciálem výrazného zhodnocení. Na jedné hranici je navíc definována jako plocha s určením pro budoucí transformaci území, což naznačuje další investiční příležitosti pro celkový rozvoj lokality. (PV) Přesné možnosti využití a zastavitelnosti podléhají detailnímu prověření v územním plánu města. (A)


Pás 18 924 m² s potenciálem budoucího využití: Strategicky umístěný hned vedle stávající zástavby, s potenciálem pro budoucí změnu územního plánu a následnou výstavbu dalších bytových či rodinných domů. Budoucí využití je vázáno na případné schválení změny územního plánu městem Jeseník a dostupnost inženýrských sítí.


Infrastruktura a rozvoj:

Ke stavebním pozemkům vede stávající obecní příjezdová cesta z ulice U Kasáren. Budoucí majitel si na tuto obecní cestu bude muset napojit vlastní příjezd. Pro rozvoj 12 600 m² stavebních pozemků počítá projekt dělení pozemků s vybudováním dalších vnitřních komunikací a nové inženýrské sítě, včetně dalších příjezdů ke každému domu, které jsou přehledně zobrazeny ve vizualizacích.

Dlouhodobá investiční hodnota:

Kombinace stavebních pozemků s okamžitým využitím a rozsáhlých ploch s potenciálem budoucího rozvoje v dynamicky se rozvíjející lokalitě zaručuje, že se Vám investované prostředky do budoucna mnohonásobně zhodnotí!



Cenová strategie:

Celý pozemkový komplex o celkové výměře 62 000 m² se prodává VÝHRADNĚ JAKO CELEK.

Celková cena za celý komplex: 25 000 000 Kč.

Tato cena je složena z:

Stavební pozemky (12 600 m²): Kalkulovány za 1 200 Kč/m² (celkem 15 120 000 Kč).

Zbývajících 49 400 m² (nestavební pozemky včetně územní rezervy a pásu s potenciálem budoucího využití): Kalkulovány za 200 Kč/m² (celkem 9 880 000 Kč).

Upozornění: Pozemky se prodávají pouze jako celek za uvedenou celkovou cenu.

Pro detailnější informace, veškeré dostupné mapové podklady, územní plány a další dokumenty neváhejte kdykoliv kontaktovat makléřku na uvedených kontaktech. Vše vám ráda zašle e-mailem.

Parametry pozemku

Cena
25 000 000 Kč /za nemovitost Spočítat hypotéku
Aktualizováno
29. 9. 2025
Adresa
U Kasáren, Jeseník
Plocha pozemku
62000 m2

Kontaktovat makléře

Máte zájem o tento pozemek?

Tímto, v souladu s nařízením Evropského parlamentu a Rady (EU) 2016/679, v platném znění, prohlašuji, že mi je alespoň 16 let a uděluji tak svůj souhlas se zpracováním zadaných údajů (jméno, telefon, e-mail, ip adresa) společnosti B3 Technology, s.r.o., IČ: 07330600, se sídlem Novostavby 126/23, 435 11 Lom (správce dat), za účelem předání dotazu z tohoto formuláře Vámi vybranému inzerentovi a zpětného kontaktování mé osoby. Osobní údaje bude správce zpracovávat manuálně i automaticky přímo prostřednictvím svých zaměstnanců. Informace předané tímto formulářem budou uloženy v databázi správce maximálně po dobu 10 let. Odvolání souhlasu s uložením a zpracováním poskytnutých dat lze e-mailem na info@realitypro.eu. V případě podezření na neoprávněné použití Vámi poskytnutých údajů máte právo předat podnět k šetření Úřadu pro ochranu osobních údajů. Více informací
Chystáte se prodat nemovitost?
Pomůžeme Vám!

Inzerát si prohlédlo 10 lidí

Prodejce

Renáta Mandincová

Renáta Mandincová

Hlídací pes

Chcete dostávat emailem podobné nabídky prodeje pozemků pro bydlení v Jeseníku?

Podobné nemovitosti