Prodej bytu 3+1, Vimperk - Vimperk III, Špidrova, 70 m2 (ID: 2683306)

Špidrova, Vimperk III

Prověřené firmy v Vimperku

Informace k bytu

BYT NA ŠUMAVĚ 3+1 V OSOBNÍM VLASTNICTVÍ VE VIMPERKU. REZERVACE

REZERVOVÁNO.
Byt na Šumavě 3+1 v osobním vlastnictví ve Vimperku.
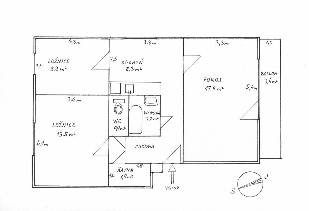
Plocha bytu: 70 m².
Popis bytu: nachází se ve druhém patře třípodlažního zděného cihlového domu s jen šesti byty. Bytový dům je situován v nejvýchodnější části Vimperku na konci ulice Špidrova. Výhodou nabízeného bytu je světlost a prosluněnost s širokým výhledem ze tří pokojů na všechny světové strany a okolní šumavskou přírodu. V bytě byla před rokem provedena rekonstrukce, při níž byly vyměněny okna za plastová, položeny nové podlahové krytiny z PVC. Nové jsou i sociální zařízení i část elektroinstalace. Po vstupu novými protipožárními dveřmi do bytu se ocitnete v prostorné předsíni ve tvaru L (5,8 m²), z níž vlevo je vstup do šatní skříně, komory (1,8 m²) s bojlerem a dále do jedné ložnice (13,5 m²). Na chodbě je ještě samostatné WC (0,9 m²) a koupelna s vanou (2,2 m²). Vstupní chodba vede dále do východní kuchyně (8,3 m²). Vlevo je jedna menší ložnice (8,3 m²) a vpravo jižní pokoj (17,6 m²) s prostorným balkonem (3,6 m²). K bytu je v suterénu rozměrný sklep (7,5 m²) a k dispozici jsou i další společné prostory – sušárny. Na katastru nemovitostí je byt již zapsán jako samostatná jednotka. Topení bylo nedávno předěláno na elektrické přímotopy, vodovod a kanalizace městské, elektřina 230 V.

Parametry bytu

Cena
2 390 000 Kč Spočítat hypotéku
Aktualizováno
29. 9. 2025
Adresa
Špidrova, Vimperk III
ID
002051KH
Stavba
Cihlová
Stav objektu
Dobrý
Vlastnictví
Osobní
Užitná plocha
70 m2
Třída energetické náročnosti
G - Mimořádně nehospodárná

Kontaktovat makléře

Máte zájem o tento byt?

Tímto, v souladu s nařízením Evropského parlamentu a Rady (EU) 2016/679, v platném znění, prohlašuji, že mi je alespoň 16 let a uděluji tak svůj souhlas se zpracováním zadaných údajů (jméno, telefon, e-mail, ip adresa) společnosti B3 Technology, s.r.o., IČ: 07330600, se sídlem Novostavby 126/23, 435 11 Lom (správce dat), za účelem předání dotazu z tohoto formuláře Vámi vybranému inzerentovi a zpětného kontaktování mé osoby. Osobní údaje bude správce zpracovávat manuálně i automaticky přímo prostřednictvím svých zaměstnanců. Informace předané tímto formulářem budou uloženy v databázi správce maximálně po dobu 10 let. Odvolání souhlasu s uložením a zpracováním poskytnutých dat lze e-mailem na info@realitypro.eu. V případě podezření na neoprávněné použití Vámi poskytnutých údajů máte právo předat podnět k šetření Úřadu pro ochranu osobních údajů. Více informací
Chystáte se prodat nemovitost?
Pomůžeme Vám!

Inzerát si prohlédlo 1 lidí

Prodejce

Radek Vrhel

Radek Vrhel

Hlídací pes

Chcete dostávat emailem podobné nabídky prodeje bytů 3+1 v Vimperku?

Podobné nemovitosti