Prodej bytu 3+1, Praha - Smíchov, Malátova, 115 m2 (ID: 2682691)

Malátova, Praha, Smíchov

25 900 000 Kč /za nemovitost HYPOTÉKA od 115 757 Kč /za měsíc

(Cena včetně provize a právních služeb)

Prověřené firmy v Praze 5

Stěhovací služby

Výkup a prodej starého nábytku

Informace k bytu

Nabízíme k prodeji prostorný byt s dispozicí 3+1 na Janáčkově nábřeží o výměře 115 m2. Dům je situován na skvělém místě. Nedaleko stanice Švandovo divadlo, Arbesovo náměstí, Anděl a Újezd. U domu je park, jazzový klub a naproti domu je Dětský ostrov.
V dochozí vzdálenosti na Kampu nebo do centra.
Součástí prodeje je byt, podíl na společných částech domu, podíl na společných částech pozemku, podíl na společných částech ateliéru (jednotka v domě).
Dům je před rekonstrukcí, která je nyní v jednání. Ve fondu oprav je našetřená vysoká částka, bez dluhů a závazků. Společná půda a ateliér nabízí vlastníkům domu další zajímavé možnosti a zhodnocení.
Byt se nachází v 5. nadzemním podlaží, díky tomu jsou okna dostatečně vysoko a máte zajištěný výhled po celý rok. V nižších patrech brání výhledu vzrostlé stromy na nábřeží. Jedná se o nejlepší byt (výhled a velikost) z celého činžovního domu. V domě je výtah v mezipatrech.
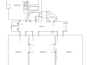
Levé křídlo bytu tvoří 3 pokoje, které jsou navzájem průchozí. Všechna okna jsou orientována na nábřeží a nabízí dechberoucí výhled na řeku. Pravé křídlo bytu tvoří kuchyně s jídelnou, koupelna, WC a úložné prostory. Kuchyně je vybavena kuchyňskými skříňkami, pracovní deskou, vestavěnou lednicí, mikrovlnnou troubou, myčkou, elektrickou troubou, sklokeramickou varnou deskou, dřezem a digestoří se světlem. Za kuchyní je malý pokoj pro služku, dnes využívaný jako spíž. Okna kuchyně a spíže jsou orientovaná do dvora.
Další úložný prostor nabízí světlík a kumbál na chodbě. V koupelně je vana, umyvadlo, koupelnový nábytek, pračka a bojler. WC je oddělené.
Ohřev vody zajištěn bojlerem, vytápění elektrickými konvektory. K bytu náleží i velká sklepní kóje.
V bytě jsou původní okna, vstupní dveře, interiérové dveře a pod plovoucí podlahou jsou původní dubové parkety. Ideální pro celkovou rekonstrukci se zachováním původních prvků.
Doporučujeme prohlídku bytu. Nyní je byt pronajímán.

Parametry bytu

Cena
25 900 000 Kč /za nemovitost Spočítat hypotéku
Poznámka k ceně
Cena včetně provize a právních služeb
Aktualizováno
27. 9. 2025
Adresa
Malátova, Praha, Smíchov
ID
0059-NP07676
Stavba
Cihlová
Stav objektu
Dobrý
Patro
5. z 5
Vybaveno
Ne
Lokalita objektu
Centrum obce
Vlastnictví
Osobní
Užitná plocha
115 m2
Podlahová plocha
115 m2
Třída energetické náročnosti
E - Nehospodárná
Ukazatel energetické náročnosti
272 kWh/m2 za rok
Odpad
Veřejná kanalizace
Výtah

Kontaktovat makléře

Máte zájem o tento byt?

Tímto, v souladu s nařízením Evropského parlamentu a Rady (EU) 2016/679, v platném znění, prohlašuji, že mi je alespoň 16 let a uděluji tak svůj souhlas se zpracováním zadaných údajů (jméno, telefon, e-mail, ip adresa) společnosti B3 Technology, s.r.o., IČ: 07330600, se sídlem Novostavby 126/23, 435 11 Lom (správce dat), za účelem předání dotazu z tohoto formuláře Vámi vybranému inzerentovi a zpětného kontaktování mé osoby. Osobní údaje bude správce zpracovávat manuálně i automaticky přímo prostřednictvím svých zaměstnanců. Informace předané tímto formulářem budou uloženy v databázi správce maximálně po dobu 10 let. Odvolání souhlasu s uložením a zpracováním poskytnutých dat lze e-mailem na info@realitypro.eu. V případě podezření na neoprávněné použití Vámi poskytnutých údajů máte právo předat podnět k šetření Úřadu pro ochranu osobních údajů. Více informací
Chystáte se prodat nemovitost?
Pomůžeme Vám!

Inzerát si prohlédlo 2 lidí

Prodejce

Klára Plachá

Klára Plachá

Hlídací pes

Chcete dostávat emailem podobné nabídky prodeje bytů 3+1 v Praze 5?

Podobné nemovitosti