Prodej bytu 3+kk, Letovice, Komenského, 76 m2 (ID: 2682093)

Komenského, Letovice

6 370 000 Kč /za nemovitost HYPOTÉKA od 28 470 Kč /za měsíc
Prověřené firmy v Letovicích

Informace k bytu

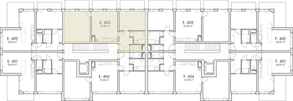
Prostorný a moderní třípokojový byt o ploše přes 76 m2 s orientací na východ se nachází ve čtvrtém, nejvyšším nadzemním podlaží. Součástí kupní ceny je už i nadstandardně vybavená koupelna a klimatizace ve všech obytných místnostech. WC je samostatné. Z každé místnosti se francouzským oknem vstupuje na vlastní balkón (3x6 m2).

V obývací části je vyveden optický kabel pro připojení k vysokorychlostnímu internetu.

V domě se nachází výtah a kočárkárna. K bytu je dále možné si zakoupit sklepní kóji a venkovní parkovací stání.

Nové bytové domy v Letovicích navážou na již vybudovanou první etapu Rezidence Zlatá Pole a budou dokončeny a předány v závěru letošního roku a provedeny ve stejném standardu jako v první etapě - tedy s hliníkovými okny s izolačním trojsklem, vodovodním podlahovým vytápěním, kvalitním komunikačním jádrem a zelenou střechou, a budou splňovat parametry pro zařazení do energetické třídy B.
Kompletní nabídku dostupných bytů naleznete na stránkách projektu.

Bytové domy jsou situovány v klidné, strategicky umístěné lokalitě. Do centra města se pěšky dostanete za 15 minut, autem za 3 minuty. Naproti bytovým domům se nachází základní i mateřská škola, v bezprostředním okolí je pak veškerá občanská vybavenost včetně zámeckého parku, potravin a ordinace praktického lékaře.

Parametry bytu

Cena
6 370 000 Kč /za nemovitost Spočítat hypotéku
Aktualizováno
26. 9. 2025
Adresa
Komenského, Letovice
ID
E.403
Stavba
Smíšená
Stav objektu
Ve výstavbě
Patro
4.
Lokalita objektu
Klidná část obce
Vlastnictví
Osobní
Užitná plocha
76 m2
Třída energetické náročnosti
B - Velmi úsporná
Odpad
Veřejná kanalizace
Komunikace
Asfaltová
Telekomunikace
Internet
Doprava
Vlak, Silnice, MHD, Autobus
Voda
Vodovod
Topné těleso
Podlahové vytápění, Klimatizace
Zdroj teplé vody
Centrální dálkový ohřev
Balkon
Sklep
Výtah
Bezbarierový přístup
Parkování

Kontaktovat makléře

Máte zájem o tento byt?

Tímto, v souladu s nařízením Evropského parlamentu a Rady (EU) 2016/679, v platném znění, prohlašuji, že mi je alespoň 16 let a uděluji tak svůj souhlas se zpracováním zadaných údajů (jméno, telefon, e-mail, ip adresa) společnosti B3 Technology, s.r.o., IČ: 07330600, se sídlem Novostavby 126/23, 435 11 Lom (správce dat), za účelem předání dotazu z tohoto formuláře Vámi vybranému inzerentovi a zpětného kontaktování mé osoby. Osobní údaje bude správce zpracovávat manuálně i automaticky přímo prostřednictvím svých zaměstnanců. Informace předané tímto formulářem budou uloženy v databázi správce maximálně po dobu 10 let. Odvolání souhlasu s uložením a zpracováním poskytnutých dat lze e-mailem na info@realitypro.eu. V případě podezření na neoprávněné použití Vámi poskytnutých údajů máte právo předat podnět k šetření Úřadu pro ochranu osobních údajů. Více informací
Chystáte se prodat nemovitost?
Pomůžeme Vám!

Inzerát si prohlédlo 3 lidí

Prodejce

Veronika Tesařová

Veronika Tesařová

Hlídací pes

Chcete dostávat emailem podobné nabídky prodeje bytů 3+kk v Letovicích?

Top nabídky

Podobné nemovitosti