Prodej bytu 2+1, Praha - Smíchov, Moulíkova, 80 m2

Moulíkova, Praha 5

9 799 000 Kč /za nemovitost HYPOTÉKA od 43 796 Kč /za měsíc

(Uvedená cena zahrnuje provizi RK)

Prověřené firmy v Praze 5

Stěhovací služby

Výkup a prodej starého nábytku

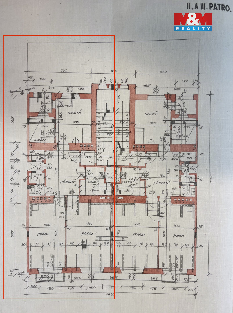
Informace k bytu

Prodej bytu 2+1, 80 m², Praha 5 - Smíchov, ul. Moulíkova

Velmi dobře udržovaný byt se současnou dispozicí 2+1 s malou pracovnou s možností úpravy na 3+kk se šatnou. Nachází se v atraktivní lokalitě pražského Smíchova, ul. Moulíkova. Byt je situován ve 3. patře cihlového domu bez výtahu, má velkorysou halu se vstupem do všech místností, zasklenou lodžii do vnitrobloku (2,5 m²) a balkon do ulice (1,4 m2). Prohlášení vlastníka uvádí výměru 74 m², skutečně zaměřeno 80,6 m² užitné plochy. K dispozici je prostorná kuchyně s místem pro jídelní stůl, komora a sklep (v současnosti probíhá kompletní rekonstrukce sklepů s instalací nových kovových sklepních kójí). Koupelna a WC byly rekonstruovány cca před 12 lety, v pokojích jsou renovované parkety. Byt je vhodný k rekonstrukci dle vlastních představ. Lokalita nabízí skvělou dopravní dostupnost – metro B Smíchovské nádraží, vlak, tramvaje i autobusy přímo u domu, rychlé napojení na Strakonickou i směry Kladno a Beroun. V okolí je kompletní občanská vybavenost, obchody, školy, OC Nový Smíchov.

Parametry bytu

Cena
9 799 000 Kč /za nemovitost Spočítat hypotéku
Poznámka k ceně
Uvedená cena zahrnuje provizi RK
Aktualizováno
1. 12. 2025
Adresa
Moulíkova, Praha 5
ID
920334
Stavba
Cihlová
Stav objektu
Velmi dobrý
Vybaveno
Ne
Lokalita objektu
Klidná část obce
Vlastnictví
Osobní
Užitná plocha
80 m2
Balkon

Kontaktovat makléře

Realitní kancelář

Logo M&M reality

M&M reality

ulice Krakovská 583/9, Praha

Chystáte se prodat nemovitost?
Pomůžeme Vám!

Máte zájem o tento byt?

Tímto, v souladu s nařízením Evropského parlamentu a Rady (EU) 2016/679, v platném znění, prohlašuji, že mi je alespoň 16 let a uděluji tak svůj souhlas se zpracováním zadaných údajů (jméno, telefon, e-mail, ip adresa) společnosti B3 Technology, s.r.o., IČ: 07330600, se sídlem Novostavby 126/23, 435 11 Lom (správce dat), za účelem předání dotazu z tohoto formuláře Vámi vybranému inzerentovi a zpětného kontaktování mé osoby. Osobní údaje bude správce zpracovávat manuálně i automaticky přímo prostřednictvím svých zaměstnanců. Informace předané tímto formulářem budou uloženy v databázi správce maximálně po dobu 10 let. Odvolání souhlasu s uložením a zpracováním poskytnutých dat lze e-mailem na info@realitypro.eu. V případě podezření na neoprávněné použití Vámi poskytnutých údajů máte právo předat podnět k šetření Úřadu pro ochranu osobních údajů. Více informací
Chystáte se prodat nemovitost?
Pomůžeme Vám!

Inzerát si prohlédlo 44 lidí

Prodejce

Vlasta Šťovíčková

Vlasta Šťovíčková

Hlídací pes

Chcete dostávat emailem podobné nabídky prodeje bytů 2+1 v Praze 5?

Podobné nemovitosti