Prodej rodinného domu, Oleška - Brník, 125 m2

Oleška, Brník

3 890 000 Kč /za nemovitost HYPOTÉKA od 17 386 Kč /za měsíc
Prověřené firmy v Olešce

Informace k domu

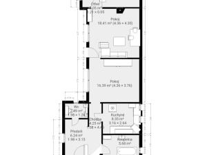
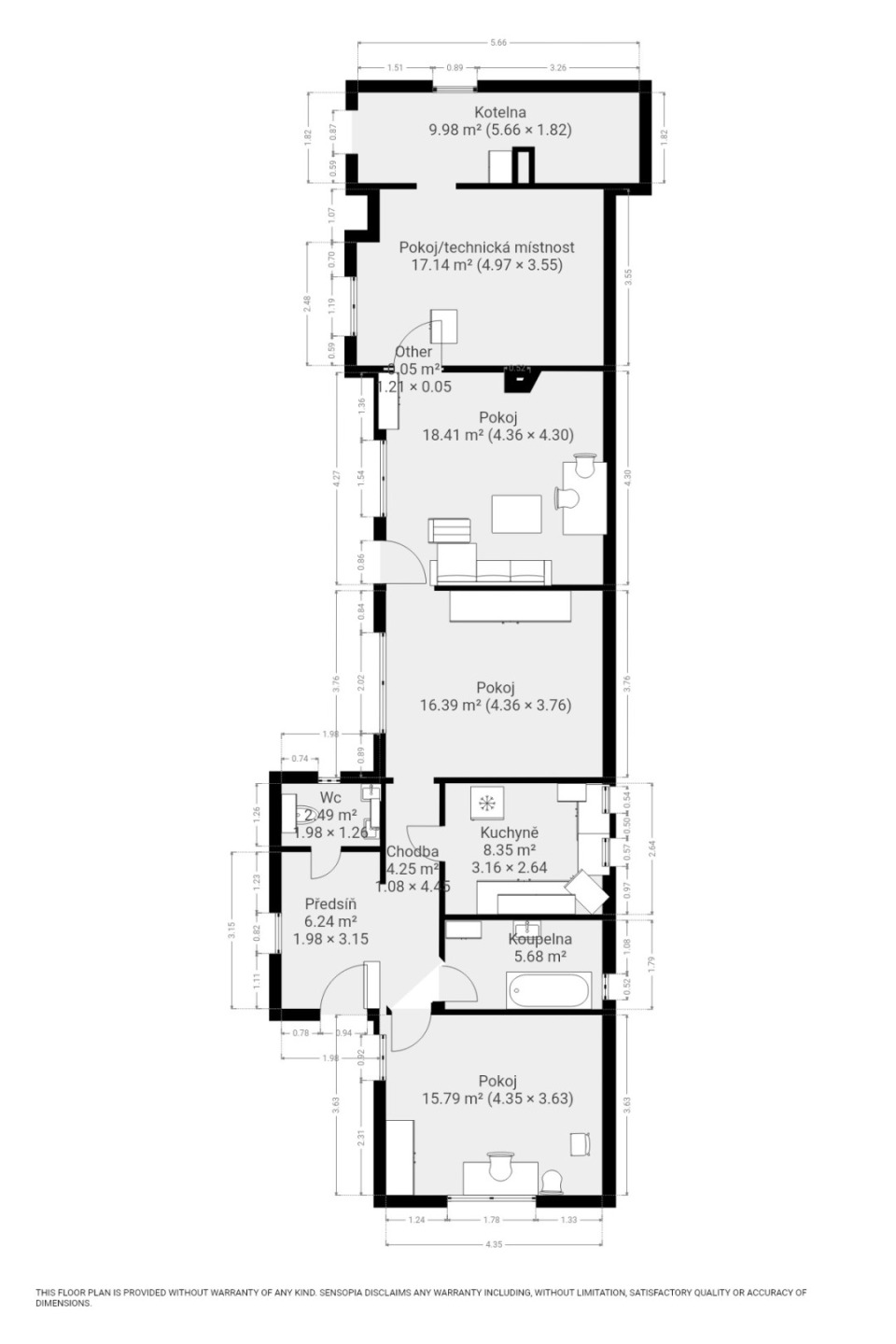
Nabízíme k prodeji rodinný dům 3+1 o užitné ploše 125 m² v obci Brník, část Oleška, okres Praha-východ. Dům stojí na pozemku o velikosti 1 064 m² a je určen k rekonstrukci.

Dům je napojen na obecní vodovod (vodoměr v kotelně, hlavní uzávěr na hranici pozemku), kanalizace a plyn v obci nejsou – odpad je řešen plastovou jímkou o objemu 9 m³ (stáří 2 roky). Topení je ústřední s automatickým kotlem na uhlí, v obývacím pokoji jsou navíc krbová kamna. Ohřev vody zajišťuje elektrický bojler napojený na „noční proud“. Elektřina je třífázová, jistič 25 A, sazba D25. Elektroinstalace i střecha jsou přibližně 14 let staré.

Pozemek o velikosti přes 1 000 m² nabízí dostatek prostoru pro zahradu, parkování, podnikání nebo další využití. Na pozemku jsou dvě hospodářská stavení, vhodná pro uzpůsobení dle vlastních představ.

Dům se nachází na kraji obce a je ideálním místem na klidné bydlení.

Lokalita:
Brník je menší část obce Oleška, nacházející se v klidné přírodě okresu Praha-východ. Okolí tvoří krásná krajina Posázaví s možnostmi turistiky, cyklovýletů i odpočinku v přírodě. V blízkosti se nachází základní občanská vybavenost – mateřská a základní škola, obchody i služby. Výhodou je také dobrá dopravní dostupnost: autem jste za cca 30 minut v Praze, pravidelné autobusové linky spojují obec s Říčany a Českým Brodem. Díky tomu je lokalita ideální pro rodinné bydlení s klidným venkovským zázemím a zároveň rychlým dosahem hlavního města.

Pro více informací a sjednání prohlídky nás neváhejte kontaktovat.

Energetický průkaz budovy spadá do třídy G.

Parametry domu

Cena
3 890 000 Kč /za nemovitost Spočítat hypotéku
Aktualizováno
23. 10. 2025
Adresa
Oleška, Brník
ID
N6641
Stavba
Cihlová
Stav objektu
Před rekonstrukcí
Vybaveno
Ne
Typ objektu
Přízemní
Druh objektu
Samostatný
Lokalita objektu
Okraj obce
Užitná plocha
125 m2
Zastavěná plocha
125 m2
Podlahová plocha
125 m2
Plocha pozemku
1064 m2
Plocha zahrady
1064 m2
Třída energetické náročnosti
G - Mimořádně nehospodárná
Elektřina
230V
Odpad
Septik, Jímka
Topení
Lokální tuhá paliva, Lokální elektrické
Doprava
Dálnice, MHD, Autobus
Voda
Místní zdroj vody
Garáž
Parkování

Kontaktovat makléře

Máte zájem o tento dům?

Tímto, v souladu s nařízením Evropského parlamentu a Rady (EU) 2016/679, v platném znění, prohlašuji, že mi je alespoň 16 let a uděluji tak svůj souhlas se zpracováním zadaných údajů (jméno, telefon, e-mail, ip adresa) společnosti B3 Technology, s.r.o., IČ: 07330600, se sídlem Novostavby 126/23, 435 11 Lom (správce dat), za účelem předání dotazu z tohoto formuláře Vámi vybranému inzerentovi a zpětného kontaktování mé osoby. Osobní údaje bude správce zpracovávat manuálně i automaticky přímo prostřednictvím svých zaměstnanců. Informace předané tímto formulářem budou uloženy v databázi správce maximálně po dobu 10 let. Odvolání souhlasu s uložením a zpracováním poskytnutých dat lze e-mailem na info@realitypro.eu. V případě podezření na neoprávněné použití Vámi poskytnutých údajů máte právo předat podnět k šetření Úřadu pro ochranu osobních údajů. Více informací
Chystáte se prodat nemovitost?
Pomůžeme Vám!

Inzerát si prohlédlo 10 lidí

Prodejce

Miloslava Kačerová

Miloslava Kačerová

Hlídací pes

Chcete dostávat emailem podobné nabídky prodeje rodinných domů v Olešce?

Podobné nemovitosti