Prodej bytu 3+kk, Hůry, Pod Strání, 130 m2 (ID: 2649063)

Pod Strání, Hůry

8 990 000 Kč /za nemovitost HYPOTÉKA od 40 180 Kč /za měsíc

(Prodej přímo od majitele, neplatí se provize RK)

Prověřené firmy v Hůrách

Výkup a prodej starého nábytku

Informace k bytu

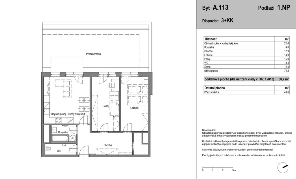
Poslední 3+kk se zahradou. Stavba je oficiálně zahájena (1.12.2025) - kolaudace a předání v roce 2028. Nabízíme spolehlivost v rámci generálních partnerů jako STRABAG a ČSOB. Rezidence u Sv. Eliáše je nový rezidenční projekt situovaný v obci Hůry, která leží zhruba 5 kilometrů od centra Českých Budějovic. Lokalita je umístěna mimo hlavní zástavbu. Projekt těží z výhod strategické polohy – v těsné blízkosti hlavních silničních tahů vedoucích do Českých Budějovic i na dálnici D3, která je dostupná pár minut autem. Díky tomu je možné pohodlně cestovat nejen do krajského centra, ale i do dalších částí Jihočeského kraje.
V rámci projektu vznikne celkem 191 bytových jednotek o různých dispozicích od 1+kk až po 4+kk. Byty budou umístěné ve třech budovách, což umožní dostatečné osvětlení a prostor. K bytům bude náležet sklepní kóje a vlastní parkovací stání, toto příslušenství se platí nad rámec cenu za jednotku. Součástí většiny bytů bude balkon, terasa nebo předzahrádka. Projekt je navržen tak, aby splnil potřeby širokého spektra obyvatel – jednotlivců, rodin s dětmi i seniorů.
Součástí rezidence bude nově postavená základní škola s pěti třídami, která disponuje vlastní jídelnou a moderní tělocvičnou. Tělocvična bude sloužit nejen školákům, ale i veřejnosti v rámci sportovních a volnočasových aktivit.
V docházkové vzdálenosti od rezidence se nachází mateřská škola, která usnadní zajištění předškolní péče. Kromě školních zařízení je součástí projektu i zdravotnické zařízení s personálem.
Projekt je doplněn o veřejné zelené plochy, parky a dětská hřiště, které budou přístupné všem obyvatelům rezidence. Pro pěší a kočárky jsou plánovány zpevněné cesty, které zajistí bezpečný pohyb uvnitř areálu i propojení s okolní přírodou. Cyklotrasa vede do centra Českých Budějovic, což umožňuje pohodlnou alternativu dopravy.
Dopravní dostupnost je jedním z klíčových aspektů projektu. Velkou výhodou je nájezd na dálnici D3. Stibus jenž bude propojovat projekt s MHD je situován přímo v areálu, což usnadní dojíždění do města bez nutnosti auta. Automobilová doprava do centra Českých Budějovic zabere přibližně 9 minut do centra, do Hluboké nad Vltavou 12 minut a do Třeboně zhruba 17 minut. Český Krumlov 25 minut autem a resorty na Lipně 1h.
Technické řešení bytů a jejich dispozice odpovídají současným požadavkům na komfort a efektivitu využití prostoru. Výstavba bude probíhat s důrazem na kvalitu materiálů a standardů tak, aby splnila potřeby moderního bydlení.
Projekt nabízí kombinaci cenově dostupného bydlení s občanskou vybaveností a dobrou dopravní dostupností, a to v lokalitě, která umožňuje kontakt s přírodou. Díky tomu je vhodná pro rodiny, jednotlivce i seniory, kteří hledají vyvážené a funkční bydlení v bezprostřední blízkosti Českých Budějovic.
Nabízíme také 3 varianty financování a výkonného finančního partnera, který je schopen zajistit hypotéku v různých podmínkách. Máme také výhodný program pro větší investory.

Parametry bytu

Cena
8 990 000 Kč /za nemovitost Spočítat hypotéku
Poznámka k ceně
Prodej přímo od majitele, neplatí se provize RK
Aktualizováno
14. 4. 2026
Adresa
Pod Strání, Hůry
ID
5
Stavba
Cihlová
Stav objektu
Novostavba
Patro
1.
Typ objektu
Přízemní
Lokalita objektu
Okraj obce
Vlastnictví
Osobní
Užitná plocha
130 m2
Plocha zahrady
50 m2
Třída energetické náročnosti
B - Velmi úsporná
Elektřina
230V
Plyn
Plynovod
Odpad
Veřejná kanalizace
Topení
Ústřední plynové
Komunikace
Betonová, Dlážděná, Asfaltová
Doprava
Dálnice, Silnice, Autobus
Voda
Vodovod
Balkon
Terasa
Výtah
Bezbarierový přístup
Parkování

Kontaktovat makléře

Máte zájem o tento byt?

Tímto, v souladu s nařízením Evropského parlamentu a Rady (EU) 2016/679, v platném znění, prohlašuji, že mi je alespoň 16 let a uděluji tak svůj souhlas se zpracováním zadaných údajů (jméno, telefon, e-mail, ip adresa) společnosti B3 Technology, s.r.o., IČ: 07330600, se sídlem Novostavby 126/23, 435 11 Lom (správce dat), za účelem předání dotazu z tohoto formuláře Vámi vybranému inzerentovi a zpětného kontaktování mé osoby. Osobní údaje bude správce zpracovávat manuálně i automaticky přímo prostřednictvím svých zaměstnanců. Informace předané tímto formulářem budou uloženy v databázi správce maximálně po dobu 10 let. Odvolání souhlasu s uložením a zpracováním poskytnutých dat lze e-mailem na info@realitypro.eu. V případě podezření na neoprávněné použití Vámi poskytnutých údajů máte právo předat podnět k šetření Úřadu pro ochranu osobních údajů. Více informací
Chystáte se prodat nemovitost?
Pomůžeme Vám!

Inzerát si prohlédlo 38 lidí

Prodejce

Karel Šandera

Karel Šandera

Hlídací pes

Chcete dostávat emailem podobné nabídky prodeje bytů 3+kk v Hůrách?

Podobné nemovitosti