Palackého, Nechanice
Hledáte dům se zahradou, který si upravíte přesně podle svých představ? Jeden takový pro vás máme v Nechanicích.
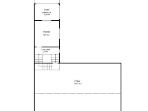
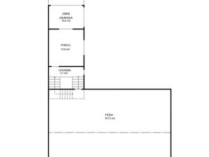
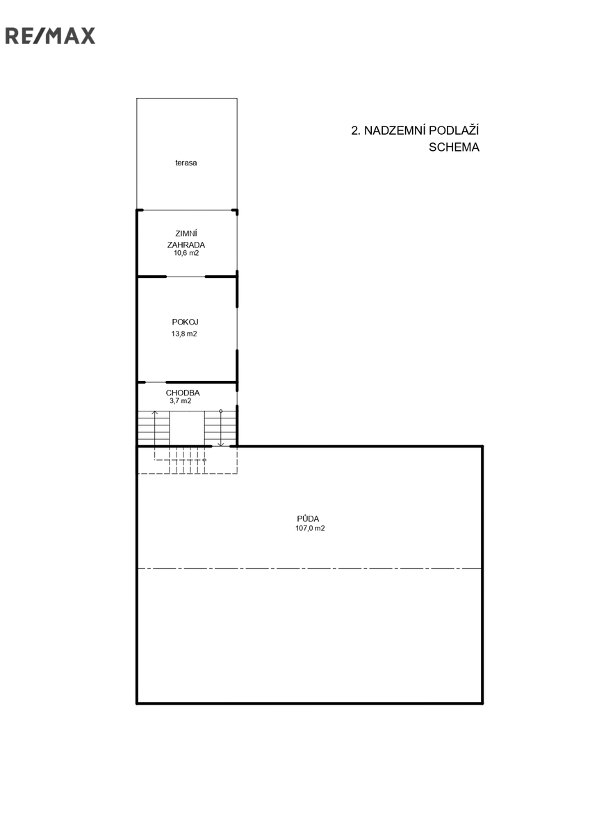
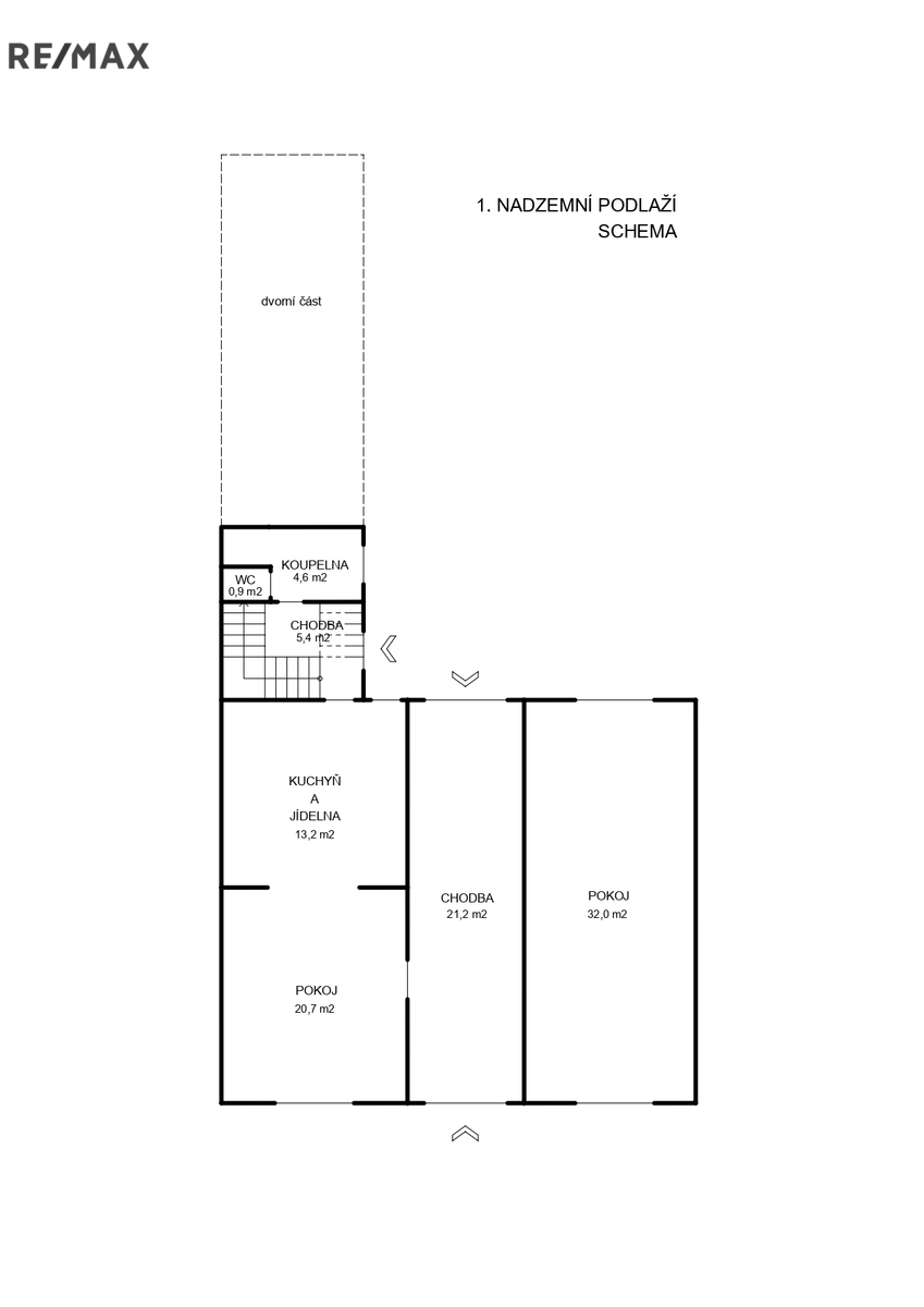
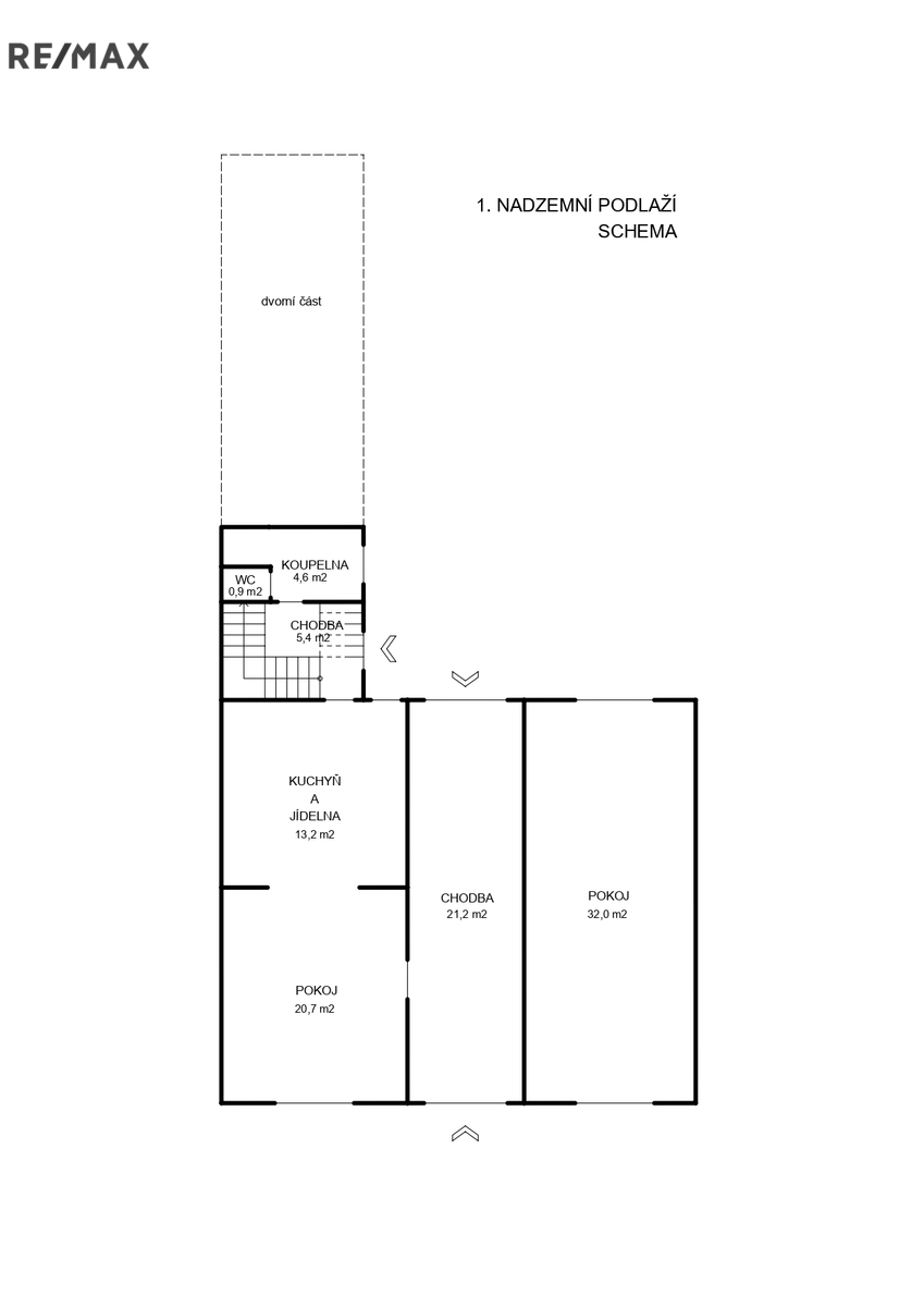
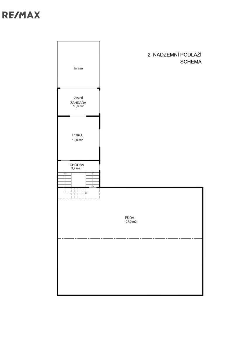
Rodinný dům nabízí užitnou plochu 135 m² a celkovou podlahovou plochu 194 m², do které je započítán také sklep o velikosti 26,5 m² a terasa o výměře 32,4 m². Dům stojí na prostorném pozemku o velikosti 1127 m² a kromě hlavní budovy zde najdete i garáž, dílnu a menší zahradní domek.
Nemovitost je určena k rekonstrukci, což vám dává možnost přetvořit si ji podle vlastních představ. Vytápění zajišťuje kotel na tuhá paliva, voda je ze studny a elektřina je částečně v mědi. Plynovod se nachází v chodníku před domem, což usnadňuje případné budoucí napojení při rekonstrukci.
Nechanice nabízí veškerou občanskou vybavenost – najdete tu školu, školku, lékaře, obchody, restaurace i další služby. Do Hradce Králové je to kousek, ať už autem, autobusem nebo na kole.
Pokud plánujete rekonstrukci, můžete navíc využít státní dotace z programů Oprav dům po babičce nebo Nová zelená úsporám Light – s jejich vyřízením vám rádi pomůžeme. Stejně tak i se zajištěním výhodného financování.
Zaujala vás tahle nemovitost? Ozvěte se, rád vám dům ukážu osobně.
Masarykovo náměstí 392/14, Hradec Králové
Máte zájem o tento dům?
Inzerát si prohlédlo 11 lidí
 
                                Bc. Tomáš Kunc
Chcete dostávat emailem podobné nabídky prodeje rodinných domů v Nechanicích?