Prodej rodinného domu, Máslovice, Spojovací, 100 m2 (ID: 2633077)

Spojovací, Máslovice

Rezervováno
7 995 000 Kč /za nemovitost HYPOTÉKA od 35 733 Kč /za měsíc

(včetně provize, právního servisu)

Prověřené firmy v Máslovicích

Informace k domu

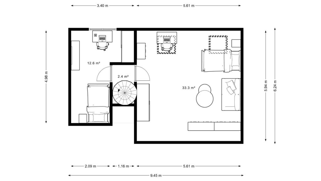
Hledáte útulné bydlení v blízkosti Prahy, které bude poskytovat klidné zázemí pro Vaši rodinu? Nabízíme Vám ke koupi rodinný dům 4kk s terasou, zahradou a krásným výhledem do okolí v obci Máslovice, okr. Praha východ. Dům má velmi praktické dispozice o celkové ploše kolem 100 m2 a pozemkem 395 m2. V přízemí domu je obývací prostor s jídelnou, který je propojený s kuchyňským koutem. Ten je vybaven kuchyňskou linkou se spotřebiči (varná deska, trouba, myčka nádobí, mikrovlnná trouba). Dále je zde ložnice, koupelna s vanou a toaletou, vstupní chodba. V podkroví domu jsou dva samostatné pokoje. Dům prošel v nedávné době vnitřní rekonstrukcí, během které bylo vybudované nové plynové topení (kotel Buderus), nové rozvody elektřiny, vody, podlahové krytiny, okna, dveře, obytné místnosti v podkroví domu, izolace střechy foukaným polystyrenem, nový septik. Před domem je k dispozici terasa, mírně svažitá zahrada a dva velmi prostorné sklepy s rozlohou cca 50 m2 a především prostor na vybudování parkovacího místa. Dům nyní není zateplený, bez nové fasády, energetický štítek se nyní připravuje, uvedena je tedy hodnota G. V tuto chvíli je dům připojen na elektřinu, zaveden plyn, vodovod, kanalizace v přípravě, septik. Obec Máslovice se nachází pouhých 7 km severně od okraje Prahy a je součástí přírodního parku Dolní Povltaví, což skýtá možnost využití krásného přírodního bohatství a klidného bydlení. Pokud zmiňujeme obec Máslovice, tak musí zaznít, že je zde velmi oblíbené pekařství a nově vznikající bistro. Kompletní zázemí a občanská vybavenost je v blízké obci Klecany. Autobus jede přímý až k metru Kobylisy. Pro bližší informace mě kontaktujte a rádi vám umožníme osobní prohlídku domu.

Parametry domu

Stav
Rezervováno
Cena
7 995 000 Kč /za nemovitost Spočítat hypotéku
Poznámka k ceně
včetně provize, právního servisu
Aktualizováno
10. 11. 2025
Adresa
Spojovací, Máslovice
ID
N00578
Stavba
Cihlová
Stav objektu
Velmi dobrý
Typ objektu
Patrový
Druh objektu
Samostatný
Lokalita objektu
Klidná část obce
Vlastnictví
Osobní
Užitná plocha
100 m2
Zastavěná plocha
74 m2
Plocha pozemku
395 m2
Plocha zahrady
321 m2
Třída energetické náročnosti
G - Mimořádně nehospodárná
Plyn
Plynovod
Topení
Ústřední plynové
Telekomunikace
Internet
Doprava
Silnice, Autobus
Voda
Vodovod
Sklep

Kontaktovat makléře

Realitní kancelář

Zuzana Lang s.r.o.

Armádní 886, Mladá, 289 24 Milovice, Praha

Chystáte se prodat nemovitost?
Pomůžeme Vám!

Máte zájem o tento dům?

Tímto, v souladu s nařízením Evropského parlamentu a Rady (EU) 2016/679, v platném znění, prohlašuji, že mi je alespoň 16 let a uděluji tak svůj souhlas se zpracováním zadaných údajů (jméno, telefon, e-mail, ip adresa) společnosti B3 Technology, s.r.o., IČ: 07330600, se sídlem Novostavby 126/23, 435 11 Lom (správce dat), za účelem předání dotazu z tohoto formuláře Vámi vybranému inzerentovi a zpětného kontaktování mé osoby. Osobní údaje bude správce zpracovávat manuálně i automaticky přímo prostřednictvím svých zaměstnanců. Informace předané tímto formulářem budou uloženy v databázi správce maximálně po dobu 10 let. Odvolání souhlasu s uložením a zpracováním poskytnutých dat lze e-mailem na info@realitypro.eu. V případě podezření na neoprávněné použití Vámi poskytnutých údajů máte právo předat podnět k šetření Úřadu pro ochranu osobních údajů. Více informací
Chystáte se prodat nemovitost?
Pomůžeme Vám!

Inzerát si prohlédlo 10 lidí

Prodejce

Bc. Zuzana Lang DiS

Bc. Zuzana Lang DiS

Hlídací pes

Chcete dostávat emailem podobné nabídky prodeje rodinných domů v Máslovicích?

Podobné nemovitosti