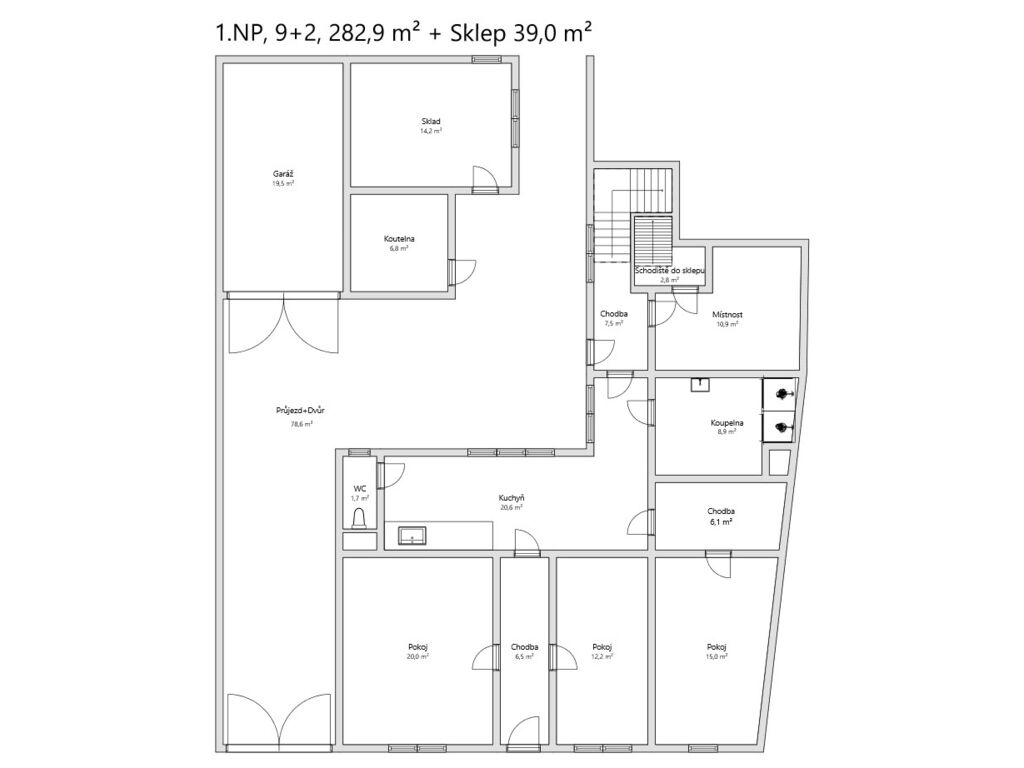
Prodej rodinného domu, Hustopeče, Hradní, 282 m2

Hradní, Hustopeče

8 400 000 Kč /za nemovitost HYPOTÉKA od 37 543 Kč /za měsíc
Prověřené firmy v Hustopečích

Informace k domu

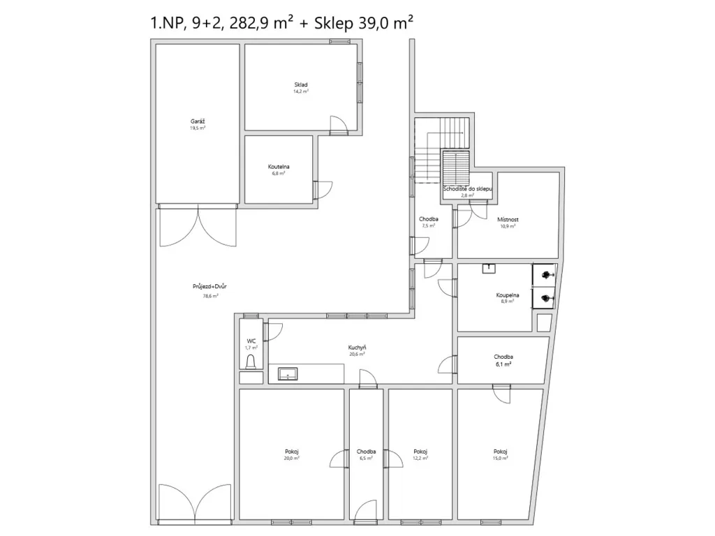
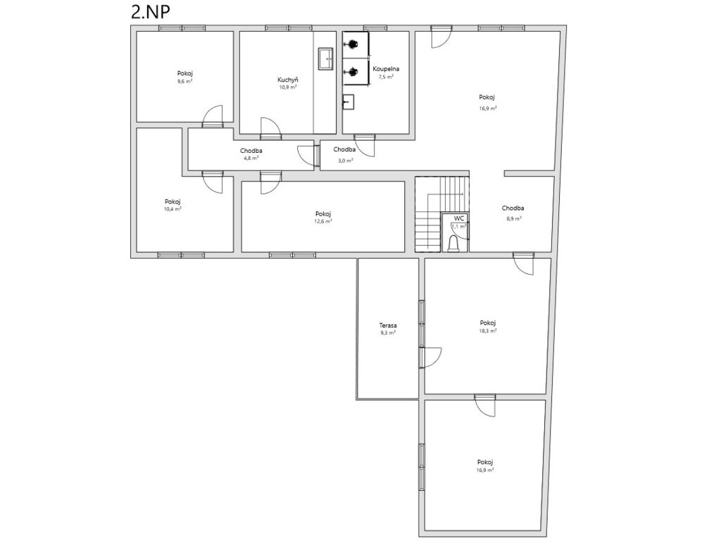
Pokud hledáte prostorný rodinný dům s velkým pozemkem, kde si můžete vše zařídit podle svých představ, pak vás tato nabídka jistě zaujme. Na adrese Hradní se nachází řadový rodinný dům o velkorysé dispozici 9+2, který nabízí skutečně široké možnosti využití.

Dům je určen ke kompletní rekonstrukci, což je velkou výhodou pro ty, kteří chtějí vytvořit originální bydlení na míru – přesně takové, jaké bude odpovídat potřebám celé rodiny. Díky dvěma samostatným bytovým jednotkám se zde pohodlně může usídlit i dvougenerační rodina, která ocení dostatek soukromí i prostoru pro společná rodinná setkání. Stejně tak ale můžete jednu část domu využít například k podnikání – ideální řešení pro ty, kdo chtějí skloubit práci a domov pod jednou střechou.

Velkým benefitem je rozlehlý pozemek, který nabízí dostatek místa pro relaxaci, dětské hry, zahradničení nebo třeba venkovní posezení s přáteli. Vše si tu snadno přetvoříte na bezpečné rodinné zázemí, kde budou děti vyrůstat v klidném prostředí, a přitom zůstanete na dosah veškeré občanské vybavenosti.

Samozřejmostí je napojení na všechny inženýrské sítě – elektřinu, plyn, kanalizaci i vodovod. Díky klidné ulici Hradní a dobré dostupnosti do centra i okolí se jedná o ideální místo pro rodinný život s dětmi, které budou mít vše potřebné doslova na dosah: školy, školky, obchody i hřiště.

Pokud tedy hledáte dům s velkým potenciálem, kde můžete spojit rodinné bydlení s podnikáním, případně vybudovat komfortní dvougenerační domov, pak vás tato nemovitost rozhodně nezklame. Ráda vás vezmu na prohlídku a ukážu vám všechno osobně.
Hustopeče jsou oblíbené město ležící v srdci vinařského kraje, které nabízí ideální kombinaci klidného bydlení a skvělé dopravní dostupnosti. Díky rychlému napojení na dálnici D2 se pohodlně dostanete do Brna za pouhých 25 minut, což ocení nejen rodiny s dětmi, ale i ti, kteří dojíždějí za prací. Město disponuje kompletní občanskou vybaveností — najdete zde školy, školky, obchody, zdravotní služby, sportoviště i množství příležitostí pro volnočasové aktivity. Nechybí ani krásná příroda, vinice a cyklostezky v okolí. Hustopeče tak spojují pohodlí menšího města s výhodami rychlého spojení do větších center.

Parametry domu

Cena
8 400 000 Kč /za nemovitost Spočítat hypotéku
Aktualizováno
23. 2. 2026
Adresa
Hradní, Hustopeče
ID
420250297
Stavba
Cihlová
Stav objektu
Před rekonstrukcí
Vybaveno
Ne
Typ objektu
Patrový
Druh objektu
Řadový
Lokalita objektu
Klidná část obce
Užitná plocha
282 m2
Zastavěná plocha
663 m2
Plocha pozemku
1120 m2
Třída energetické náročnosti
G - Mimořádně nehospodárná
Plyn
Plynovod
Odpad
Veřejná kanalizace
Komunikace
Asfaltová
Voda
Vodovod
Garáž
Sklep
Převod do OV

Kontaktovat makléře

Realitní kancelář

Logo eDO reality

eDO reality

Na Pankráci 322/26, Praha

Chystáte se prodat nemovitost?
Pomůžeme Vám!

Máte zájem o tento dům?

Tímto, v souladu s nařízením Evropského parlamentu a Rady (EU) 2016/679, v platném znění, prohlašuji, že mi je alespoň 16 let a uděluji tak svůj souhlas se zpracováním zadaných údajů (jméno, telefon, e-mail, ip adresa) společnosti B3 Technology, s.r.o., IČ: 07330600, se sídlem Novostavby 126/23, 435 11 Lom (správce dat), za účelem předání dotazu z tohoto formuláře Vámi vybranému inzerentovi a zpětného kontaktování mé osoby. Osobní údaje bude správce zpracovávat manuálně i automaticky přímo prostřednictvím svých zaměstnanců. Informace předané tímto formulářem budou uloženy v databázi správce maximálně po dobu 10 let. Odvolání souhlasu s uložením a zpracováním poskytnutých dat lze e-mailem na info@realitypro.eu. V případě podezření na neoprávněné použití Vámi poskytnutých údajů máte právo předat podnět k šetření Úřadu pro ochranu osobních údajů. Více informací
Chystáte se prodat nemovitost?
Pomůžeme Vám!

Inzerát si prohlédlo 11 lidí

Prodejce

Kamila Heděncová

Kamila Heděncová

Hlídací pes

Chcete dostávat emailem podobné nabídky prodeje rodinných domů v Hustopečích?

Podobné nemovitosti