Pronájem skladu, Blansko, Sušilova, 578 m2

Sušilova, Blansko

Cena na vyžádání /za měsíc Získejte výhodnou HYPOTÉKU

(dohodou, bez poplatků, + provize RK, cena k jednání)

Prověřené firmy v Blansku

Informace k nemovitosti

Skladovací a administrativní prostory k pronájmu – Blansko, ul. Sušilova (Písečná)

K dispozici ihned

Hledáte prostory pro skladování, podnikání nebo administrativu v dobré dostupnosti z Brna?

Nabízíme k okamžitému pronájmu skladový a provozní objekt v Blansku, lokalita Písečná, na ulici Sušilova.

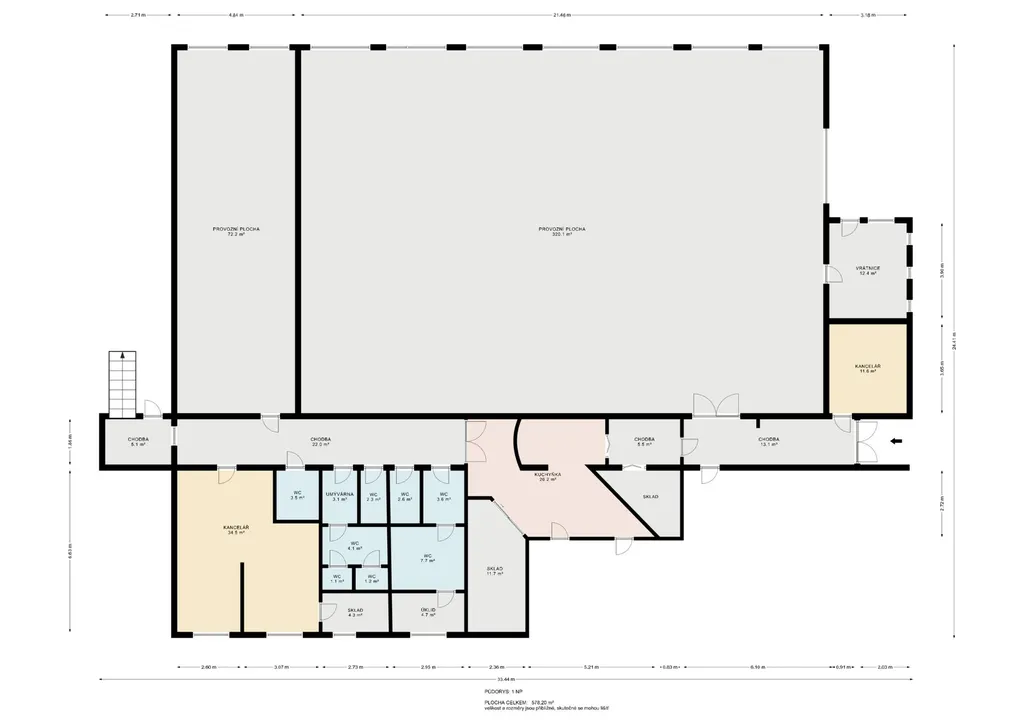
Dispozice objektu:

- Skladová hala o výměře 300 m2 (rozměry 14,5 x 20,4 m) se světlou výškou 7,5 m
- Ideální pro uskladnění zboží na paletách (kapacita cca 300 palet)
- Hala je vybavena regálovým systémem a vysokozdvižným vozíkem – vše v ceně nájmu

Navazující prostor o velikosti 95 m2 – vhodný jako sklad, dílna nebo administrativní zázemí.

Vjezdová vrata v úrovni terénu, elektrické ovládání

Další prostory:
- Kancelářské a provozní místnosti: 241 m2
- Sociální zařízení (včetně sprch): 38 m2
- Kuchyňka k dispozici

Vybavení a výhody:
- Betonová podlaha, sklad temperovaný
- ostatní prostory plně vytápěné (vlastní plynová kotelna)
- možnost umístění velkoplošného reklamního banneru na fasádě (v ceně)
- zpevněná parkovací plocha před objektem: 180 m2

Inženýrské sítě: elektřina, plyn, voda, kanalizace

Výborná dopravní dostupnost – pouze 22 km od Brna

Cena pronájmu:
Skladové prostory (400 m2) včetně regálů a VZV: 70 000 Kč/měsíc + energie
Ostatní prostory (280 m2): 20 000 Kč/měsíc + energie

Preferujeme pronájem jako celku, ale v případě zájmu je možné domluvit i částečný pronájem.

V případě zájmu lze halu pronajmout bez vybavení – cena bude upravena. (Demontáž regálů jde k tíži nájemce.)

Finanční podmínky:
Při podpisu nájemní smlouvy se skládají dvě vratné kauce a nájemné na následující měsíc.
Provize realitní kanceláře činí částku odpovídající jednomu měsíčnímu nájmu.

Zaujala vás tato nabídka?
Ozvěte se mi pro více informací nebo si rovnou domluvme prohlídku.
Rád vám prostory osobně ukážu a zodpovím všechny dotazy.

Parametry nemovitosti

Cena
Cena na vyžádání
Poznámka k ceně
dohodou, bez poplatků, + provize RK, cena k jednání
Aktualizováno
18. 7. 2025
Adresa
Sušilova, Blansko
ID
00041
Stavba
Cihlová
Stav objektu
Velmi dobrý
Vybaveno
Částečně
Typ objektu
Přízemní
Druh objektu
Samostatný
Lokalita objektu
Okraj obce
Užitná plocha
578 m2
Třída energetické náročnosti
G - Mimořádně nehospodárná
Elektřina
230V, 400V
Plyn
Plynovod
Odpad
Veřejná kanalizace
Komunikace
Asfaltová
Doprava
Vlak, Silnice, MHD, Autobus
Voda
Vodovod
Parkování

Kontaktovat makléře

Máte zájem o tuto nemovistost?

Tímto, v souladu s nařízením Evropského parlamentu a Rady (EU) 2016/679, v platném znění, prohlašuji, že mi je alespoň 16 let a uděluji tak svůj souhlas se zpracováním zadaných údajů (jméno, telefon, e-mail, ip adresa) společnosti B3 Technology, s.r.o., IČ: 07330600, se sídlem Novostavby 126/23, 435 11 Lom (správce dat), za účelem předání dotazu z tohoto formuláře Vámi vybranému inzerentovi a zpětného kontaktování mé osoby. Osobní údaje bude správce zpracovávat manuálně i automaticky přímo prostřednictvím svých zaměstnanců. Informace předané tímto formulářem budou uloženy v databázi správce maximálně po dobu 10 let. Odvolání souhlasu s uložením a zpracováním poskytnutých dat lze e-mailem na info@realitypro.eu. V případě podezření na neoprávněné použití Vámi poskytnutých údajů máte právo předat podnět k šetření Úřadu pro ochranu osobních údajů. Více informací
Chystáte se prodat nemovitost?
Pomůžeme Vám!

Inzerát si prohlédlo 8 lidí

Prodejce

Jiří Korčák

Jiří Korčák

Hlídací pes

Chcete dostávat emailem podobné nabídky pronájmu skladů v Blansku?

Podobné nemovitosti