Prodej rodinného domu, Řepín, Hlavní, 126 m2

Hlavní, Řepín

4 600 000 Kč /za nemovitost HYPOTÉKA od 20 559 Kč /za měsíc
Prověřené firmy v Řepíně

Informace k domu

Prodej rodinného domu 5+1 v obci Řepín – ideální pro rodinu s dětmi, klidná lokalita s výbornou dostupností do měst
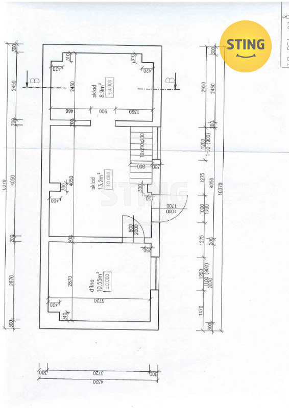
Nabízíme k prodeji velmi prostorný a částečně zrekonstruovaný rodinný dům o dispozici 5+1, který se nachází v obci Řepín, jen kousek od měst Mělník a Mladá Boleslav, s vynikající dostupností do Prahy. Dům se skvělým potenciálem pro rodinné bydlení nabízí nejen pohodlný interiér, ale i zahradu s dílnou, což je ideální pro všechny, kdo hledají klidné prostředí, ale zároveň nechtějí být vzdáleni od civilizace.
Dispozice domu:
Dům má užitnou plochu s rozumným uspořádáním, které poskytuje dostatek prostoru pro pohodlné bydlení i pro větší rodinu.
Přízemí:
Kuchyň s jídelnou je centrální částí přízemí, která je propojena s obývacím pokojem, což umožňuje příjemné rodinné sešlosti.
Dva pokoje mohou sloužit jako ložnice, pracovna nebo dětský pokoj.
Obývací pokoj je prostorný a světlý, ideální pro odpočinek i rodinné večery.
Koupelna s WC byla kompletně zrekonstruována a je vybavena moderními obklady a dlažbou.
Technické zázemí nabízí dostatek prostoru pro kotel a další techniku a má přímý vstup na zahradu.
Patro:
Dvě prostorné ložnice, které jsou ideální pro děti nebo hosty, nabízí dostatek soukromí.
Vstup na půdu, která má velký potenciál pro přestavbu na další obytný prostor (např. pokoj pro teenagera, hernu nebo pracovnu).
Rekonstrukce a vybavení:
Nová plastová okna (85 % hotovo) zajišťují tepelnou izolaci a zvukovou pohodu.
Nové rozvody topení, elektřiny v mědi a vody v plastu zajišťují moderní a bezpečný provoz celého domu.
Vytápění domu je řešeno elektrokotlem, který zajišťuje nízké náklady na vytápění a zároveň ohřívá vodu v bojleru.
V domě jsou po částečné rekonstrukci nové obklady a dlažby, což přispívá k modernímu vzhledu a snadné údržbě.
Zahrada a kůlna:
K domu náleží malá zahrádka o rozloze 100 m², která nabízí dostatek prostoru pro venkovní aktivity, zahradničení nebo relaxaci.
Kůlna s dílnou (38 m²) je částečně podsklepená a poskytuje prostor pro uskladnění nářadí, zeleniny, ovoce nebo jako pracovní dílna pro kutily.
Technické údaje:
Napojení na obecní vodovod a kanalizaci.
Obec Řepín se nachází v klidném venkovském prostředí, přesto s výbornou dostupností do větších měst. V samotné obci je k dispozici obchod, školka a škola, což je velkou výhodou pro rodiny s dětmi.
Mělník je vzdálený pouhých 15 minut jízdy autem, což znamená snadnou dostupnost do městské infrastruktury, služeb i kulturního vyžití.
Mladá Boleslav je v dojezdové vzdálenosti cca 30 minut, ideální pro pracovní příležitosti v tomto regionu.
Praha je vzdálena přibližně 40 minut autem, což zajišťuje skvělé spojení s hlavním městem.
Tato lokalita je perfektní pro ty, kdo touží po klidném bydlení na venkově, ale zároveň ocení skvělou dostupnost do měst. Zároveň je vynikající volbou pro rodiny s dětmi, jelikož nabízí školku a školu v obci.
Při rychlém jednání cena dohodou.
Obchod lze zrealizovat i výměnou za menší byt a doplatkem. Byt ideálně 2kk či 2+1 s balkonem (preferovaná lokalita Mělník a Příbram).

Zavolejte nám ještě dnes a zjistěte více o této skvělé nabídce! Nezmeškejte tuto příležitost pro pohodlné bydlení v Řepíně. V případě více zájemců si majitel vyhrazuje právo prodat nejvýhodnější nabídce. Do konce listopadu 2025 nabízíme prostřednictvím našeho partnera úrokové sazby od 4,29 % p.a. Více informací Vám sdělí náš specialista na prohlídce.

Parametry domu

Cena
4 600 000 Kč /za nemovitost Spočítat hypotéku
Aktualizováno
30. 10. 2025
Adresa
Hlavní, Řepín
ID
131464
Stavba
Cihlová
Stav objektu
Dobrý
Typ objektu
Patrový
Druh objektu
Řadový
Lokalita objektu
Centrum obce
Užitná plocha
156 m2
Zastavěná plocha
117 m2
Podlahová plocha
126 m2
Plocha pozemku
290 m2
Plocha zahrady
96 m2
Třída energetické náročnosti
G - Mimořádně nehospodárná
Elektřina
230V
Odpad
Veřejná kanalizace
Topení
Lokální elektrické
Komunikace
Betonová
Doprava
Silnice, MHD, Autobus
Voda
Vodovod
Sklep

Kontaktovat makléře

Máte zájem o tento dům?

Tímto, v souladu s nařízením Evropského parlamentu a Rady (EU) 2016/679, v platném znění, prohlašuji, že mi je alespoň 16 let a uděluji tak svůj souhlas se zpracováním zadaných údajů (jméno, telefon, e-mail, ip adresa) společnosti B3 Technology, s.r.o., IČ: 07330600, se sídlem Novostavby 126/23, 435 11 Lom (správce dat), za účelem předání dotazu z tohoto formuláře Vámi vybranému inzerentovi a zpětného kontaktování mé osoby. Osobní údaje bude správce zpracovávat manuálně i automaticky přímo prostřednictvím svých zaměstnanců. Informace předané tímto formulářem budou uloženy v databázi správce maximálně po dobu 10 let. Odvolání souhlasu s uložením a zpracováním poskytnutých dat lze e-mailem na info@realitypro.eu. V případě podezření na neoprávněné použití Vámi poskytnutých údajů máte právo předat podnět k šetření Úřadu pro ochranu osobních údajů. Více informací
Chystáte se prodat nemovitost?
Pomůžeme Vám!

Inzerát si prohlédlo 13 lidí

Prodejce

Petra Hánlová

Petra Hánlová

Hlídací pes

Chcete dostávat emailem podobné nabídky prodeje rodinných domů v Řepíně?

Podobné nemovitosti