Prodej rodinného domu, Frymburk - Milná, Milná, 86 m2

Frymburk, okres jihočeský kraj

8 999 000 Kč /za nemovitost HYPOTÉKA od 40 220 Kč /za měsíc

(Cena včetně 21% DPH)

Prověřené firmy v Frymburku

Výkup a prodej starého nábytku

Informace k domu

Tento rekreační dům č. 46 je součástí nového luxusním resortu Lakeside Village, přímo u břehu Lipna. Nachází se v poslední řadě, v dostatečném soukromí přímo u lesa, na nejvyšším bodě resortu, s nejhezčím výhledem na zátoku a Kovářovský poloostrov.

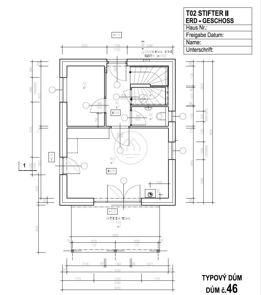
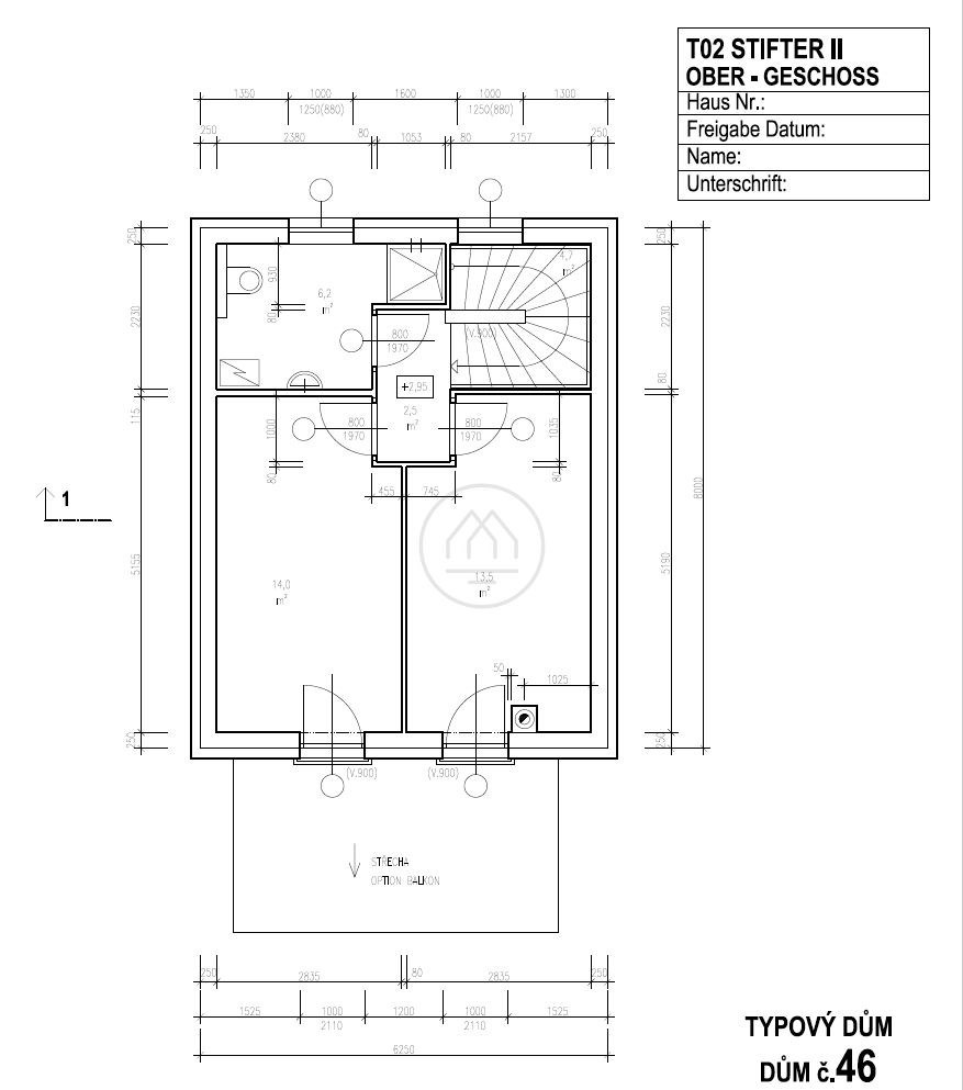
Dům s kapacitou až pro 6 osob poskytuje unikátní zázemí k rekreaci pro Vaší rodinu i budoucí klienty. Je navržen v souladu se šumavskou architekturou a důrazem na kvalitu stavebních materiálů, disponuje dvěma ložnicemi, dětským pokojem, koupelnou, odděleným WC, technickou místností, dále velkým obývacím prostorem s kuchyní a vstupem na krytou terasu, s výhledem na Lipno a přístupem na vlastní zahradu. Součástí objektu je příplatkové vybavení, dřevěný obložený štít, vinylové poklady, podlahové vytápění, krbová kamna a masivní Alphawing balkon se vchodem z obou ložnic. Cena domu je včetně 21% DHP a zahrnuje veškerý nábytek, vybavení, elektrospotřebiče, i vlastní parkovací stání. Na prodej je také vedlejší dům č.45. K domu lze dokoupit kotviště pro Vaši loď.

Objekt je součástí komplexu, kde je k dispozici recepce, beach bar, wellness a konferenční sál. V areálu je také pláž, loděnice, molo pro 40 lodí a dětské hřiště. Na místě je domovník, který se stará o správu a údržbu resortu, odklízení sněhu a sekání trávy. Lakeside Village je výjimečný a atraktivní resort, který má jedno z nejlepších hodnocení na lipensku (booking) a jeho oblíbenost a návštěvnost každoročně stoupá.

Prodávaný dům má prokazatelnou historii pronájmů, desítky kladných hodnocení a dobré recenze. Generuje stabilní roční míru obsazenosti. Je zde další potenciál pro optimalizaci interiéru a exteriéru pro zvýšení návštěvnosti a denních sazeb ubytování.

Poloha největší vodní plochy v srdci Šumavy láká v každém ročním období. Na jaře a na podzim na cyklistiku, turistiku, jízdu na koních, či rybaření. V létě pak vítá zejména milovníky vodních sportů a jachtingu. Zima vládne zamrzlou krajinou, ideální na bruslení, lyžování a běžky. V okolí najdete vše co potřebujete k rekreaci, obchody, restaurace, cyklostezky, sjezdovky, adrenalin park, paintball, marinu, aquapark a další.

Pořiďte si nové rodinné sídlo v soukromé top lokalitě u vody v krásné přírodě, v podobě investice s pravidelným výnosem a dlouhodobým zhodnocením, kdy turistický ruch na Lipně roste. Exkluzivně nabízíme celoroční údržbu a správu pronájmu nové nemovitosti v období Vaší nepřítomnosti. Zajišťujeme kompletní právní služby.

Kontaktujte specialistu na investice v lipenské lokalitě pro více informací, popřípadě se zastavte na nezávaznou prohlídku.

Parametry domu

Cena
8 999 000 Kč /za nemovitost Spočítat hypotéku
Poznámka k ceně
Cena včetně 21% DPH
Aktualizováno
19. 12. 2025
Adresa
Frymburk, okres jihočeský kraj
ID
927146
Stavba
Cihlová
Stav objektu
Velmi dobrý
Vybaveno
Ano
Typ objektu
Patrový
Druh objektu
Samostatný
Vlastnictví
Osobní
Užitná plocha
86 m2
Zastavěná plocha
90 m2
Podlahová plocha
86 m2
Plocha pozemku
298 m2
Třída energetické náročnosti
B - Velmi úsporná
Elektřina
230V
Topení
Jiné
Telekomunikace
Internet
Voda
Vodovod
Balkon
Terasa
Výtah
Parkování

Kontaktovat makléře

Realitní kancelář

Logo Lipno Real s.r.o.

Lipno Real s.r.o.

Lipno nad Vltavou 89, Lipno nad Vltavou

Chystáte se prodat nemovitost?
Pomůžeme Vám!

Máte zájem o tento dům?

Tímto, v souladu s nařízením Evropského parlamentu a Rady (EU) 2016/679, v platném znění, prohlašuji, že mi je alespoň 16 let a uděluji tak svůj souhlas se zpracováním zadaných údajů (jméno, telefon, e-mail, ip adresa) společnosti B3 Technology, s.r.o., IČ: 07330600, se sídlem Novostavby 126/23, 435 11 Lom (správce dat), za účelem předání dotazu z tohoto formuláře Vámi vybranému inzerentovi a zpětného kontaktování mé osoby. Osobní údaje bude správce zpracovávat manuálně i automaticky přímo prostřednictvím svých zaměstnanců. Informace předané tímto formulářem budou uloženy v databázi správce maximálně po dobu 10 let. Odvolání souhlasu s uložením a zpracováním poskytnutých dat lze e-mailem na info@realitypro.eu. V případě podezření na neoprávněné použití Vámi poskytnutých údajů máte právo předat podnět k šetření Úřadu pro ochranu osobních údajů. Více informací
Chystáte se prodat nemovitost?
Pomůžeme Vám!

Inzerát si prohlédlo 24 lidí

Prodejce

Ing. Marek Ertl

Ing. Marek Ertl

Hlídací pes

Chcete dostávat emailem podobné nabídky prodeje rodinných domů v Frymburku (okr. Český Krumlov)?

Top nabídky

Podobné nemovitosti