Prodej bytu 2+kk, Karlovy Vary, Libušina, 70 m2 (ID: 2365250)

Libušina, Karlovy Vary

6 300 000 Kč /za nemovitost HYPOTÉKA od 28 157 Kč /za měsíc
Prověřené firmy v Karlových Varech

Informace k bytu

Hledáte klidné místo blízko lázeňského centra Karlových Varů. Pak tento byt je přesně pro Vás. Byt Vás uchvátí nádherným výhledem na Karlovy Vary. Okna jsou situovaná do zeleně, což je příjemný hlavně pro klienty, kteří hledají kousek svého klidu a ticha a zároveň chtějí být blízko centra všeho dění. Veškerá občanská vybavenost je v dostupné vzdálenosti několika minut: škola, školka, obchod, restaurace, a jen 10 minut chůze do centra lázeňské kolonády. V případě potřeby je zde 3 minuty od bytu zastávka MHD.
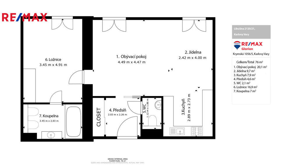
Byt je prostorný a světlý, zároveň působí velmi útulně. Obývací pokoj je spojený s kuchyňskou linkou, která je vybavena vestavěnými spotřebiči, pro maximální komfort. Byt disponuje prostornou a světlou ložnicí, která je vybavena vlastní koupelnou. Velké plus shledáváme i v podobě 2 parkovacích míst.
Tento byt je nejen skvělým místem k bydlení, ale také velmi zajímavou investiční příležitostí. Díky své atraktivní lokalitě a vysokému potenciálu pro krátkodobé i dlouhodobé pronájmy nabízí tento byt skvělou návratnost investice.
Hlavní výhody bytu:
- klidná lokalita na okraji lázeňského centra
- nádherný výhled na Karlovy Vary
- veškerá občanská vybavenost v dosahu několika minut
- prostorný a světlý interiér
- útulný obývací pokoj s plně vybavenou kuchyňskou linkou
- ložnice s vlastní koupelnou
- 2 parkovací stání
- skvělý investiční potenciál
Uchvátil Vás tento byt? Neváhejte a přijďte se na něj podívat osobně! Pro více informací a domluvení prohlídky nás kontaktujte ještě dnes. Prodávající si vyhrazuje právo vybrat kupujícího na základě jím zvolených kritérií.

Parametry bytu

Cena
6 300 000 Kč /za nemovitost Spočítat hypotéku
Aktualizováno
15. 4. 2026
Adresa
Libušina, Karlovy Vary
ID
294-NP01212
Stavba
Cihlová
Stav objektu
Velmi dobrý
Patro
2. z 3
Vlastnictví
Osobní
Užitná plocha
70 m2
Zastavěná plocha
1920 m2
Podlahová plocha
70 m2
Třída energetické náročnosti
C - Úsporná
Elektřina
230V
Plyn
Plynovod
Odpad
Veřejná kanalizace
Výtah

Kontaktovat makléře

Realitní kancelář

Logo RE/MAX Glorion

RE/MAX Glorion

Krymská 1056/5, Karlovy Vary

Chystáte se prodat nemovitost?
Pomůžeme Vám!

Máte zájem o tento byt?

Tímto, v souladu s nařízením Evropského parlamentu a Rady (EU) 2016/679, v platném znění, prohlašuji, že mi je alespoň 16 let a uděluji tak svůj souhlas se zpracováním zadaných údajů (jméno, telefon, e-mail, ip adresa) společnosti B3 Technology, s.r.o., IČ: 07330600, se sídlem Novostavby 126/23, 435 11 Lom (správce dat), za účelem předání dotazu z tohoto formuláře Vámi vybranému inzerentovi a zpětného kontaktování mé osoby. Osobní údaje bude správce zpracovávat manuálně i automaticky přímo prostřednictvím svých zaměstnanců. Informace předané tímto formulářem budou uloženy v databázi správce maximálně po dobu 10 let. Odvolání souhlasu s uložením a zpracováním poskytnutých dat lze e-mailem na info@realitypro.eu. V případě podezření na neoprávněné použití Vámi poskytnutých údajů máte právo předat podnět k šetření Úřadu pro ochranu osobních údajů. Více informací
Chystáte se prodat nemovitost?
Pomůžeme Vám!

Inzerát si prohlédlo 68 lidí

Prodejce

Alexandr Mizjuk

Alexandr Mizjuk

Hlídací pes

Chcete dostávat emailem podobné nabídky prodeje bytů 2+kk v Karlových Varech?

Podobné nemovitosti