Prodej pozemku pro bydlení, Čistá, 1158 m2

Čistá

3 500 000 Kč /za nemovitost HYPOTÉKA od 15 643 Kč /za měsíc

(Cena včetně provize, právního servisu a advokátní úschovy)

Prověřené firmy v Čisté

Informace k pozemku

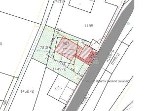
Nabízíme Vám k prodeji rovinatou parcelu o celkové výměře 1185 m2 v obci Čistá u Litomyšle. Na parcele započala demolice původního stavení, zbývající kamenivo a zdivo může posloužit jako levný zdroj stavebního materiálu. Zároveň je schválena výstavba nového rodinného domu s vydaným stavebním povolením. Projekt se stavebním povolením na dům a také na čistírnu odpadních vod. V případě zájmu je možno tento projekt budoucímu majiteli předat, není to ale podmínkou. Přístup je zajištěn z obou stran, sítě jsou k parcele přivedeny. S výstavbou je možno začít tedy okamžitě. Lokalita s vysokou atraktivitou poblíž Litomyšle, i když v klidném vesnickém prostředí.

Parametry pozemku

Cena
3 500 000 Kč /za nemovitost Spočítat hypotéku
Poznámka k ceně
Cena včetně provize, právního servisu a advokátní úschovy
Aktualizováno
20. 11. 2025
Adresa
Čistá
ID
13684
Plocha pozemku
1158 m2
Elektřina
400V
Plyn
Plynovod
Převod do OV

Kontaktovat makléře

Realitní kancelář

Logo QARA, s.r.o.

QARA, s.r.o.

Šafaříkova 201/17, Praha

Chystáte se prodat nemovitost?
Pomůžeme Vám!

Máte zájem o tento pozemek?

Tímto, v souladu s nařízením Evropského parlamentu a Rady (EU) 2016/679, v platném znění, prohlašuji, že mi je alespoň 16 let a uděluji tak svůj souhlas se zpracováním zadaných údajů (jméno, telefon, e-mail, ip adresa) společnosti B3 Technology, s.r.o., IČ: 07330600, se sídlem Novostavby 126/23, 435 11 Lom (správce dat), za účelem předání dotazu z tohoto formuláře Vámi vybranému inzerentovi a zpětného kontaktování mé osoby. Osobní údaje bude správce zpracovávat manuálně i automaticky přímo prostřednictvím svých zaměstnanců. Informace předané tímto formulářem budou uloženy v databázi správce maximálně po dobu 10 let. Odvolání souhlasu s uložením a zpracováním poskytnutých dat lze e-mailem na info@realitypro.eu. V případě podezření na neoprávněné použití Vámi poskytnutých údajů máte právo předat podnět k šetření Úřadu pro ochranu osobních údajů. Více informací
Chystáte se prodat nemovitost?
Pomůžeme Vám!

Inzerát si prohlédlo 40 lidí

Prodejce

Martin Vraspír

Martin Vraspír

Hlídací pes

Chcete dostávat emailem podobné nabídky prodeje pozemků pro bydlení v Čisté (okr. Svitavy)?

Podobné nemovitosti