Prodej rodinného domu, Vodice, Chorvatsko, 164 m2 (ID: 2880697)

Vodice

793 750 € /za nemovitost
Prověřené firmy

Informace k domu

V nové a klidné rezidenční části města Vodice vzniká tento moderní řadový dům, který spojuje současný design, vysoký standard provedení a nádherné výhledy na moře. Nemovitost je situována na mírném vyvýšení, pouhých 800 metrů od pláže a přibližně 1200 metrů od centra města, což přináší ideální kombinaci soukromí a dostupnosti veškeré občanské vybavenosti.

Projekt zahrnuje tři samostatné jednotky v řadě a každá z nich nabízí vlastní bazén a soukromé oplocené zahrady upravené dle architektonického návrhu. Trojpodlažní dispozice domu přináší více prostoru, vzdušnosti a komfortu pro každodenní život i rekreační využití.

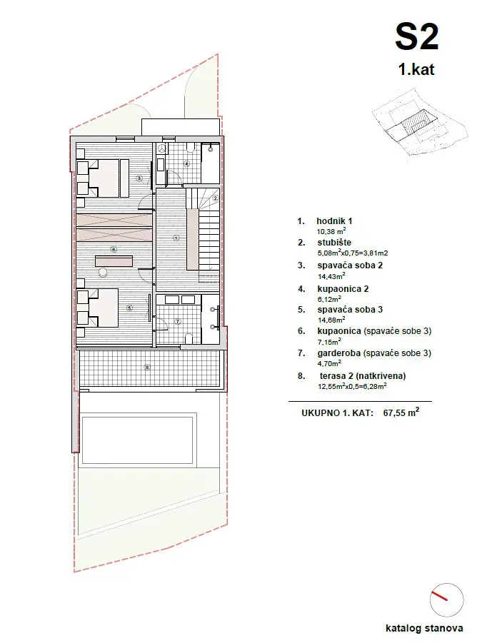
Konkrétně jednotka S2 disponuje celkovou netto užitnou plochou 193,67 m², z toho 164,22 m² obytné plochy. V přízemí o velikosti 75,04 m² se nachází vstupní část, ložnice, koupelna a prostorný obývací prostor s kuchyní a jídelnou. Velká posuvná prosklená stěna propojuje interiér s krytou terasou o velikosti 13,28 m² a otevírá výhled do zahrady s vyhřívaným bazénem o velikosti 15 m² a sluneční terasou.

V prvním patře o velikosti 67,55 m² je umístěna hlavní ložnice s vlastní koupelnou, šatnou a krytou terasou o velikosti 12,55 m², dále další ložnice a samostatná koupelna. Vrcholem nemovitosti je střešní terasa o velikosti 21,63 m² s panoramatickým výhledem na moře a okolí, vybavená přípojkami na vodu a elektřinu, což umožňuje vytvoření soukromé relaxační zóny například s vířivkou.

Dům bude realizován z kvalitních materiálů dle nejnovějších standardů. Samozřejmostí jsou bezpečnostní a protipožární dveře, hliníková okna v antracitové barvě, velkoformátové posuvné stěny se skly Sun Gard proti přehřívání, elektrické rolety, integrované sítě proti hmyzu, podlahové vytápění napojené na tepelné čerpadlo, klimatizace ve všech místnostech, moderní koupelnové vybavení, kvalitní podlahy, skleněná zábradlí a kamerový systém. K domu náleží dvě parkovací místa.

Vodice patří mezi nejvyhledávanější destinace na Jadranu díky krásným plážím, živému centru, marině a celoročnímu turistickému ruchu. Tento typ nemovitosti má silný investiční potenciál, ať už pro vlastní bydlení, nebo pro vysoce atraktivní turistický pronájem.

Velkou výhodou je, že DPH je již zahrnuto v ceně a kupující je osvobozen od platby 3% daně z nabytí nemovitosti.

Plánované dokončení a možnost nastěhování je v listopadu 2026.

Všechny údaje uvedené v tomto inzerátu slouží pouze k informačním účelům. Před jakýmkoli rozhodnutím nebo jednáním založeným na těchto informacích je nutné všechny údaje ověřit v naší realitní kanceláři.

Parametry domu

Cena
793 750 € /za nemovitost
Aktualizováno
30. 4. 2026
Adresa
Vodice
ID
F27144
Stavba
Cihlová
Stav objektu
Novostavba
Vybaveno
Částečně
Druh objektu
Řadový
Lokalita objektu
Klidná část obce
Užitná plocha
164 m2
Zastavěná plocha
85 m2
Podlahová plocha
164 m2
Plocha pozemku
200 m2
Plocha zahrady
90 m2
Elektřina
230V
Odpad
Veřejná kanalizace, ČOV pro celý objekt
Topení
Lokální elektrické
Telekomunikace
Internet
Doprava
Dálnice, Silnice, Autobus
Voda
Vodovod
Výtah
Parkování
Bazén

Kontaktovat makléře

Máte zájem o tento dům?

Tímto, v souladu s nařízením Evropského parlamentu a Rady (EU) 2016/679, v platném znění, prohlašuji, že mi je alespoň 16 let a uděluji tak svůj souhlas se zpracováním zadaných údajů (jméno, telefon, e-mail, ip adresa) společnosti B3 Technology, s.r.o., IČ: 07330600, se sídlem Novostavby 126/23, 435 11 Lom (správce dat), za účelem předání dotazu z tohoto formuláře Vámi vybranému inzerentovi a zpětného kontaktování mé osoby. Osobní údaje bude správce zpracovávat manuálně i automaticky přímo prostřednictvím svých zaměstnanců. Informace předané tímto formulářem budou uloženy v databázi správce maximálně po dobu 10 let. Odvolání souhlasu s uložením a zpracováním poskytnutých dat lze e-mailem na info@realitypro.eu. V případě podezření na neoprávněné použití Vámi poskytnutých údajů máte právo předat podnět k šetření Úřadu pro ochranu osobních údajů. Více informací
Chystáte se prodat nemovitost?
Pomůžeme Vám!

Inzerát si prohlédlo 0 lidí

Prodejce

Nikša Marinkovič

Nikša Marinkovič

Hlídací pes

Chcete dostávat emailem podobné nabídky prodeje rodinných domů?

Podobné nemovitosti