Prodej bytu 3+kk, Brno, Mírová, 66 m2

Mírová, Brno, Černovice

7 990 000 Kč /za nemovitost HYPOTÉKA od 35 710 Kč /za měsíc
Prověřené firmy v Brně

Informace k bytu

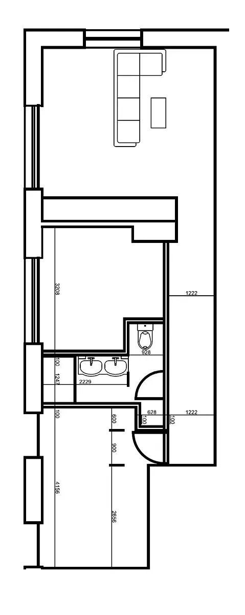
Nabízíme k prodeji krásný, slunný byt o dispozici 3+kk, po kompletní rekonstrukci v městské části Brno-Černovice. Byt má podlahovou plochu 56,2m². Předsíň 7,6m², koupelna s WC 5m², dětský pokoj 9,2m², ložnice 12m², obyvací pokoj s kuchyňským koutem 20,2m², sklep 9m², koje na půdě. Celková plocha 65,4m².

Jsou zde nové anhydridové podlahy s víceokruhovým el. podlahovým topením, ovládaným digitálními termostaty na wifi umístěnými v každé místnosti. Nášlapnou vrstvu tvoří plovoucí dřevěná dubová podlaha s V spárou. Nové rozvody elektřiny, vody a odpadů, nové omítky, SDK podhledy, nová okna s izolačními trojskly. Příprava na venkovní el. žaluzie. Koupelna s kamenickými rohy, je zde místo jak na pračku, tak i na sušičku.

Kuchyňská linka s troubou, indukční deskou, vestavnou digestoří s odtahem a vestavnou lednicí s mrazákem.

Byt je v osobním vlastnictví a je umístěn v klidné oblasti, ideální pro ty, kteří hledají únik od ruchu města, přesto v jeho blízském dosahu. K bytu náleží také sklep o ploše 9 m², který poskytuje dostatek úložného prostoru pro vaše sezonní věci či sportovní vybavení.

Významným benefitem této nemovitosti je velká zahrada o ploše 450 m², která je ideální pro relaxaci nebo zahradní aktivity. Vaše děti si zde mohou bezpečně hrát, lze zde grilovat s přáteli nebo pěstovat plodiny.

Na SVJ odhlasována oprava fasády, dělaly se zde nová okna ve společných částech domu, budou se dělat také nové domovní zvonky.
Zvažuje se prodej půdy z které by mohly plynout finance již pro nové majitele.

Okolí je převážně sportovně zaměřené, přímo u domu vede cyklostezka, jak směrem na Olympii kolem sportovního areálu Komec, tak i na druhou stranu směrem na Bílovice nad Svitavou. Naproti domu má vzniknout nová náplavka na řece Svitavě. V blízkosti se nachází dětské hřiště, cvičiště pro psi, lesopark, hřiště na tenis, nohejbal, nebo basketbal. Před domem zastávka MHD. V dochozí vzdálenosti naleznete též restauraci Hostinec Slunečnice, kde se vždy dobře najíte a pořádají zde různé kulturní akce, obchod s potravinam, nebo Z-box, PPL Parcelbox, Alza box i One Box by Allegro.

Byt je ihned k nastěhování.

Prohlídky jsou možné po předchozí domluvě. Pro více informací o této nemovitosti nebo sjednání prohlídky nás prosím kontaktujte nebo vyplňte níže uvedený formulář, rádi Vám pomůžeme.

Parametry bytu

Cena
7 990 000 Kč /za nemovitost Spočítat hypotéku
Aktualizováno
29. 4. 2026
Adresa
Mírová, Brno, Černovice
Stavba
Cihlová
Stav objektu
Velmi dobrý
Patro
2.
Lokalita objektu
Klidná část obce
Vlastnictví
Osobní
Užitná plocha
66 m2
Plocha zahrady
450 m2
Elektřina
230V
Odpad
Veřejná kanalizace
Komunikace
Asfaltová
Telekomunikace
Internet
Topné těleso
Podlahové vytápění
Zdroj teplé vody
Bojler - elektro
Sklep

Kontaktovat makléře

Máte zájem o tento byt?

Tímto, v souladu s nařízením Evropského parlamentu a Rady (EU) 2016/679, v platném znění, prohlašuji, že mi je alespoň 16 let a uděluji tak svůj souhlas se zpracováním zadaných údajů (jméno, telefon, e-mail, ip adresa) společnosti B3 Technology, s.r.o., IČ: 07330600, se sídlem Novostavby 126/23, 435 11 Lom (správce dat), za účelem předání dotazu z tohoto formuláře Vámi vybranému inzerentovi a zpětného kontaktování mé osoby. Osobní údaje bude správce zpracovávat manuálně i automaticky přímo prostřednictvím svých zaměstnanců. Informace předané tímto formulářem budou uloženy v databázi správce maximálně po dobu 10 let. Odvolání souhlasu s uložením a zpracováním poskytnutých dat lze e-mailem na info@realitypro.eu. V případě podezření na neoprávněné použití Vámi poskytnutých údajů máte právo předat podnět k šetření Úřadu pro ochranu osobních údajů. Více informací
Chystáte se prodat nemovitost?
Pomůžeme Vám!

Inzerát si prohlédlo 0 lidí

Prodejce

Ing. Bc. Miroslav Dvořák

Ing. Bc. Miroslav Dvořák

Hlídací pes

Chcete dostávat emailem podobné nabídky prodeje bytů 3+kk v Brně?

Podobné nemovitosti