Prodej bytu 2+kk, Praha - Nové Město, Vojtěšská, 80 m2

Vojtěšská, Praha, Nové Město

20 900 000 Kč /za nemovitost HYPOTÉKA od 93 410 Kč /za měsíc
Prověřené firmy v Praze 1

Stěhovací služby

Výkup a prodej starého nábytku

Informace k bytu

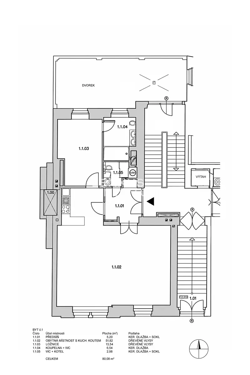
Nabízíme k prodeji velkorysý vzdušný byt 2kk o výměře 80m2 v kompletně renovovaném historickém domě v jedné z nejžádanějších lokalit Prahy 1- Starého Města, jen pár kroků od Národního divadla i Žofína, anebo parku Kampa či Petřínských sadů.

Jde o secesní rohový dům v klidné ulici, stranou rušných turistických tras a zároveň v samém srdci historického jádra města. Tato ideální poloha dává nemovitosti mimořádný kredit ať už jej zvažujete na stálé bydlení, dočasné útočiště při pobytech v Praze, anebo cílíte na solidní pronájem a investici.


Byt je řešený jako velkorysý otevřený prostor, kde dominuje obývací pokoj a na něj navazující kuchyňský kout o celkové výměře 52m2. Obě místnosti jsou samostatně přístupné ze vstupní haly. Výška stropů 3,2 m dává prostoru neobyčejnou vzdušnost a eleganci. K dispozici je jedna samostatná ložnice orientovaná do klidného vnitrobloku a z ní přístupná koupelna se sprchovým koutem a toaletou. Druhá menší koupelna s toaletou je přístupná z haly. K bytu patří sklep o výměře 18m2 s obloukovými stropy, kde jsou ideální podmínky pro umístění vinotéky.

V bytě jsou použity dřevěné parkety, plynový kotel, špaletová dřevěná okna, kvalitní sanita, kuchyňská linka včetně spotřebičů je na vyrobena na míru.


V okolí je veškerá městská infrastruktura a občanská vybavenost, nepřeberné množství obchodů, restaurací, muzeí, historických památek a jiných kulturních příležitostí. Pouhé 3 minuty chůze od domu se nachází zastávka s řadou linek MHD s přímým spojením po celé Praze.

Parametry bytu

Cena
20 900 000 Kč /za nemovitost Spočítat hypotéku
Aktualizováno
29. 4. 2026
Adresa
Vojtěšská, Praha, Nové Město
ID
533514
Stavba
Cihlová
Stav objektu
Velmi dobrý
Patro
1.
Vybaveno
Částečně
Vlastnictví
Osobní
Užitná plocha
80 m2
Třída energetické náročnosti
D - Méně úsporná
Sklep
Výtah
Převod do OV

Kontaktovat makléře

Máte zájem o tento byt?

Tímto, v souladu s nařízením Evropského parlamentu a Rady (EU) 2016/679, v platném znění, prohlašuji, že mi je alespoň 16 let a uděluji tak svůj souhlas se zpracováním zadaných údajů (jméno, telefon, e-mail, ip adresa) společnosti B3 Technology, s.r.o., IČ: 07330600, se sídlem Novostavby 126/23, 435 11 Lom (správce dat), za účelem předání dotazu z tohoto formuláře Vámi vybranému inzerentovi a zpětného kontaktování mé osoby. Osobní údaje bude správce zpracovávat manuálně i automaticky přímo prostřednictvím svých zaměstnanců. Informace předané tímto formulářem budou uloženy v databázi správce maximálně po dobu 10 let. Odvolání souhlasu s uložením a zpracováním poskytnutých dat lze e-mailem na info@realitypro.eu. V případě podezření na neoprávněné použití Vámi poskytnutých údajů máte právo předat podnět k šetření Úřadu pro ochranu osobních údajů. Více informací
Chystáte se prodat nemovitost?
Pomůžeme Vám!

Inzerát si prohlédlo 0 lidí

Prodejce

Adéla Bukovská - recepce

Adéla Bukovská - recepce

Hlídací pes

Chcete dostávat emailem podobné nabídky prodeje bytů 2+kk v Praze 1?

Podobné nemovitosti