Prodej bytu 3+kk, České Budějovice, Lannova tř., 76 m2

Lannova tř., České Budějovice 6

8 890 000 Kč /za nemovitost HYPOTÉKA od 39 733 Kč /za měsíc
Prověřené firmy v Českých Budějovicích

Výkup a prodej starého nábytku

Informace k bytu

Rezidence u Srdíčka se nachází na Lannově třídě, 300 metrů od historického centra. Stavba je celá orientována do vnitrobloku a nabízí tak odpočinek od rušného městského života. Na maximální klid cílí i dispozice domu – pouze 1 byt na každém patře.

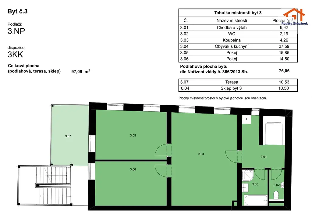
Tento byt s dispozicí 3+KK se nachází ve 3.NP. Celková plocha je složena z podlahové plochy bytu 76,06  m², terasy 10,5 m² a sklepu 10,5 m². Narozdíl od 1. a 2. NP se jedná o zcela novou bytovou jednotku. Při včasné rezervaci budou umožněny klientské změny a kupující tak může získat byt s vybavením a materiály na míru dle svých představ.

Ze stávající stavby budou zachovány pouze nosné konstrukce 1. a 2. podlaží. V těchto podlažích budou umístěny dva kompletně rekonstruované byty. Ve 3. a 4. NP vzniknou nástavbou dvě nové bytové jednotky. Nově bude instalováno venkovní schodiště a výtah na čip ustící přímo do domovní předsíně, čímž odpadne údržba společných prostor. Kotelna, podlahové topení, rozvody vody a energií, venkovní zateplení, střecha, okna a interiéry budou kompletně zhotoveny podle současných standardů a norem.

Dokončení a kolaudace jsou plánovány na Q4 2027.

Více informací je možné zjistit telefonicky, na osobní schůzce či na webu společnosti Fine Flats s.r.o.

Parametry bytu

Cena
8 890 000 Kč /za nemovitost Spočítat hypotéku
Aktualizováno
28. 4. 2026
Adresa
Lannova tř., České Budějovice 6
ID
0046
Stavba
Cihlová
Stav objektu
Novostavba
Patro
3. z 4
Lokalita objektu
Klidná část obce
Vlastnictví
Osobní
Užitná plocha
76 m2
Podlahová plocha
97 m2
Třída energetické náročnosti
C - Úsporná
Plyn
Plynovod
Odpad
Veřejná kanalizace
Voda
Vodovod
Topné těleso
Podlahové vytápění
Balkon
Sklep
Výtah
Bezbarierový přístup

Kontaktovat makléře

Máte zájem o tento byt?

Tímto, v souladu s nařízením Evropského parlamentu a Rady (EU) 2016/679, v platném znění, prohlašuji, že mi je alespoň 16 let a uděluji tak svůj souhlas se zpracováním zadaných údajů (jméno, telefon, e-mail, ip adresa) společnosti B3 Technology, s.r.o., IČ: 07330600, se sídlem Novostavby 126/23, 435 11 Lom (správce dat), za účelem předání dotazu z tohoto formuláře Vámi vybranému inzerentovi a zpětného kontaktování mé osoby. Osobní údaje bude správce zpracovávat manuálně i automaticky přímo prostřednictvím svých zaměstnanců. Informace předané tímto formulářem budou uloženy v databázi správce maximálně po dobu 10 let. Odvolání souhlasu s uložením a zpracováním poskytnutých dat lze e-mailem na info@realitypro.eu. V případě podezření na neoprávněné použití Vámi poskytnutých údajů máte právo předat podnět k šetření Úřadu pro ochranu osobních údajů. Více informací
Chystáte se prodat nemovitost?
Pomůžeme Vám!

Inzerát si prohlédlo 0 lidí

Prodejce

Jan Štěpánek

Jan Štěpánek

Hlídací pes

Chcete dostávat emailem podobné nabídky prodeje bytů 3+kk v Českých Budějovicích?

Podobné nemovitosti