Pronájem bytu 3+kk, Brno, Trnkova, 72 m2 (ID: 2876997)

Trnkova, Brno, Líšeň

22 000 Kč /za měsíc Získejte výhodnou HYPOTÉKU

(+ provize RK)

Prověřené firmy v Brně

Informace k bytu

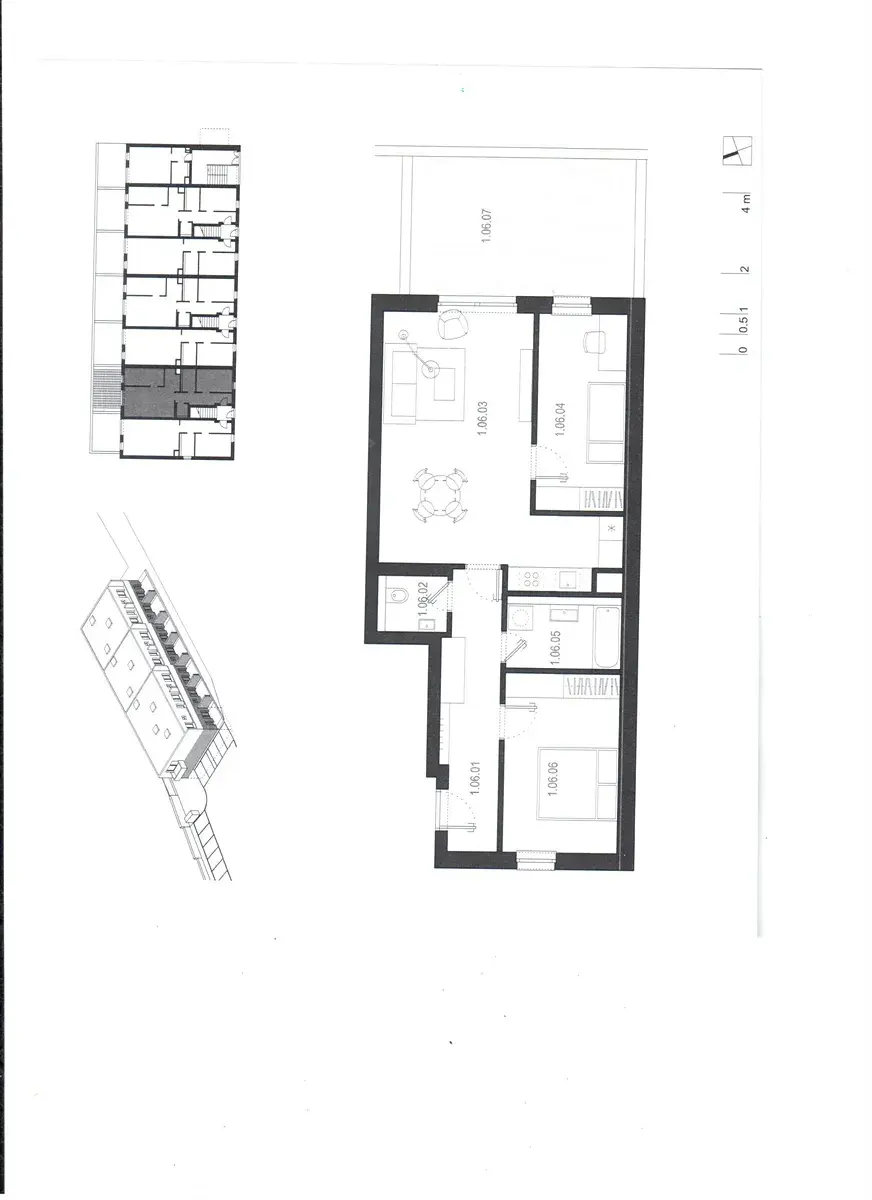
V zastoupení majitele nabízíme k pronájmu novostavbu bytu s dispozicemi 3+kk s terasou a zahrádkou, s PP 72 m2, v klidné ulici Trnkova, v zeleni, v městské části Brno-Líšeň. Byt se nachází v 1.NP/2NP a patří k moderní výstavbě cihlových bytových domů v komplexu Nová Líšeň.

Dispozice bytu: obývací pokoj s KK (28 m2) s výstupem na terasu, ložnice (13 m2), dětský pokoj (11 m) s výstupem na terasu, koupelna s vanou (5 m2) s přípojkami na pračku, samostatné WC, propojující chodba, sklep a parkovací místo pro 1 OA. Dva pokoje mají samostatné vstupy, jsou neprůchozí. Terasa se zahrádkou (20 m2) je orientována na východ s dopoledním slunkem.
V suterénu bytového komplexu je k dispozici vyzděný, uzamykatelný sklep. Parkovací místo má zamykací kolík a je na společném parkovišti u bytového komplexu.

Zařízení bytu tvoří moderní kuchyňská linka laděna do bílé barvy se sporákem se sklokeramickou deskou a horkovzdušnou troubou a digestoří. Chladničku si nájemce doplní dle vlastního uvážení.
Pokoje jsou nezařízeny.
Interiér je doplněn plovoucí podlahou a dlažbou. Okna a dveře na terasu jsou plastová
s venkovními žaluziemi na dálkové ovládání.

Vytápění a ohřev vody zajišťuje společný plynový kotel v bytovém komplexu, spotřebu energií lze regulovat, v bytě jsou vlastní měřidla elektřiny a vody. Zálohy na energie budou domluveny dle náročnosti spotřeby nájemce. Dům je novostavbou s nízkoenergetickou náročností, PENB sk. B, kolaudován v říjnu 2024. Vyzkoušejte si bydlení ve zcela novém bytě.

Bydlení je možné od 1.4.2026. Majitel požaduje vratnou jistotu ve výši dvou měsíčních nájmů.

Umístění bytu přináší příjemné bydlení v klidné lokalitě, v zeleni, s navazující přírodní oblastí Mariánské údolí a a Moravský kras. Vhodné pro turistiku a cyklovýlety. Vhodné pro vyznavače aktivního odpočinku.
V blízkosti jsou rovněž zastávky MHD, dobrá dostupnost autem, nájezd na dálnici. Na dosah jsou školy, dětské hřiště i nákupní centra.

Bytová jednotka je určena pro bydlení mladého páru, případně mladé rodiny s jedním dítětem, upřednostněni nekuřáci, bez domácích mazlíčků. Nenabízí se jako studentský byt. Vaše dotazy Vám ráda zodpoví a na společnou prohlídku se těší naše makléřka.

Parametry bytu

Cena
22 000 Kč /za měsíc
Poznámka k ceně
+ provize RK
Náklady na bydlení
5500 nebo dle náročnosti spotřeby nájemce
Aktualizováno
27. 4. 2026
Adresa
Trnkova, Brno, Líšeň
ID
000383
Stavba
Cihlová
Stav objektu
Velmi dobrý
Patro
1.
Vlastnictví
Osobní
Užitná plocha
72 m2
Sklep
Terasa
Parkování

Kontaktovat makléře

Máte zájem o tento byt?

Tímto, v souladu s nařízením Evropského parlamentu a Rady (EU) 2016/679, v platném znění, prohlašuji, že mi je alespoň 16 let a uděluji tak svůj souhlas se zpracováním zadaných údajů (jméno, telefon, e-mail, ip adresa) společnosti B3 Technology, s.r.o., IČ: 07330600, se sídlem Novostavby 126/23, 435 11 Lom (správce dat), za účelem předání dotazu z tohoto formuláře Vámi vybranému inzerentovi a zpětného kontaktování mé osoby. Osobní údaje bude správce zpracovávat manuálně i automaticky přímo prostřednictvím svých zaměstnanců. Informace předané tímto formulářem budou uloženy v databázi správce maximálně po dobu 10 let. Odvolání souhlasu s uložením a zpracováním poskytnutých dat lze e-mailem na info@realitypro.eu. V případě podezření na neoprávněné použití Vámi poskytnutých údajů máte právo předat podnět k šetření Úřadu pro ochranu osobních údajů. Více informací
Chystáte se prodat nemovitost?
Pomůžeme Vám!

Inzerát si prohlédlo 0 lidí

Prodejce

Jana Konšelová

Jana Konšelová

Hlídací pes

Chcete dostávat emailem podobné nabídky pronájmu bytů 3+kk v Brně?

Podobné nemovitosti