Pronájem obchodního prostoru, Hradec Králové, Velké náměstí, 94 m2

Velké náměstí, Hradec Králové

29 990 Kč /za měsíc Získejte výhodnou HYPOTÉKU
Prověřené firmy v Hradci Králové

Informace k nemovitosti

Dovolujeme si vám v exkluzivním zastoupení majitele nabídnout komerční prostor umístěný v měšťanském domě na Velkém náměstí 40 v samotném centru Hradce Králové.

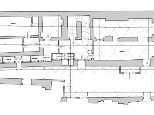
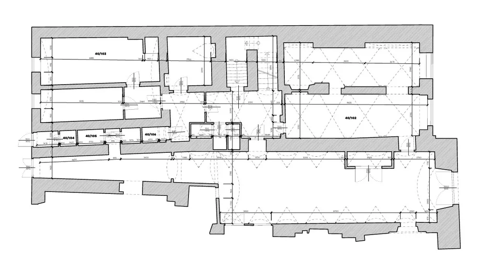
Prostor o celkové ploše 94 m² zahrnuje sál pro hosty o velikosti 57 m², a 3 další místnosti, které lze využit jako technické nebo pro personál.

Bez odstupného!

Prostor zabírá celé přízemí domu. Nabízí se přímý vstup z Velkého náměstí a ze společné chodby domu. Vlastník taky nabízí zvlášť velkou zahrádku s barem ve vnitrobloku, která se také muže stát předmětem pronájmu. Za zahrádkou se nachází ještě tři rozlehlé terasy a lze na nich pořádat různé společenské akce. Zahrádku lze zastřešit a využívat celoročně.

Provoz je umístěn v objektu středověkého původu, který prošel řadou mladších přestaveb, z nichž nejvýznamnější je klasicistní. Proto zde naleznete impozantní vstupní chodbu s klenutými originálními stropy a sklepní klenuté stropy jsou také impozantní.

Domy s restaurací se nachází vedle Katedrály Sv. Ducha z r. 1307. Dům je již od r. 1958 zapsán v Památkovém katalogu Národního Památkového ústavu jako Kulturní památka ČR.

V současné době je objekt vytápěn jednotlivými plynovými kotli, ale vlastník je v procesu instalace energeticky úsporných tepelných čerpadel. Nad restaurací se nachází byty, proto má vlastník má zájem pronajmout konceptu restaurace, která není nadstandardně hlučná, a jejíž provozovatel má prokazatelné zkušenostmi v oboru pohostinství.

Pokud Vás zaujala možnost jednat o pronájmu tohoto objektu, kontaktujte nás. Poskytneme všechny podklady a zajistíme prohlídku.

Parametry nemovitosti

Cena
29 990 Kč /za měsíc
Aktualizováno
21. 4. 2026
Adresa
Velké náměstí, Hradec Králové
ID
N495
Stavba
Cihlová
Stav objektu
Dobrý
Typ objektu
Patrový
Užitná plocha
94 m2
Třída energetické náročnosti
F - Velmi nehospodárná

Kontaktovat makléře

Máte zájem o tuto nemovistost?

Tímto, v souladu s nařízením Evropského parlamentu a Rady (EU) 2016/679, v platném znění, prohlašuji, že mi je alespoň 16 let a uděluji tak svůj souhlas se zpracováním zadaných údajů (jméno, telefon, e-mail, ip adresa) společnosti B3 Technology, s.r.o., IČ: 07330600, se sídlem Novostavby 126/23, 435 11 Lom (správce dat), za účelem předání dotazu z tohoto formuláře Vámi vybranému inzerentovi a zpětného kontaktování mé osoby. Osobní údaje bude správce zpracovávat manuálně i automaticky přímo prostřednictvím svých zaměstnanců. Informace předané tímto formulářem budou uloženy v databázi správce maximálně po dobu 10 let. Odvolání souhlasu s uložením a zpracováním poskytnutých dat lze e-mailem na info@realitypro.eu. V případě podezření na neoprávněné použití Vámi poskytnutých údajů máte právo předat podnět k šetření Úřadu pro ochranu osobních údajů. Více informací
Chystáte se prodat nemovitost?
Pomůžeme Vám!

Inzerát si prohlédlo 0 lidí

Prodejce

Call Centrum CAPITAL Trust, a.s

Call Centrum CAPITAL Trust, a.s

Hlídací pes

Chcete dostávat emailem podobné nabídky pronájmu obchodních prostor v Hradci Králové?

Podobné nemovitosti