Soccer reality

Pronájem bytu 2+1, Praha - Letňany, Tupolevova, 61 m2

Tupolevova, Letňany - Praha 18

22 500 Kč /za měsíc Získejte výhodnou HYPOTÉKU

(vratná jistota, náklady na bydlení 6337 Kč, poplatek za podnájem 29000 Kč)

Prověřené firmy v Praze 9

Stěhovací služby

Výkup a prodej starého nábytku

Informace k bytu

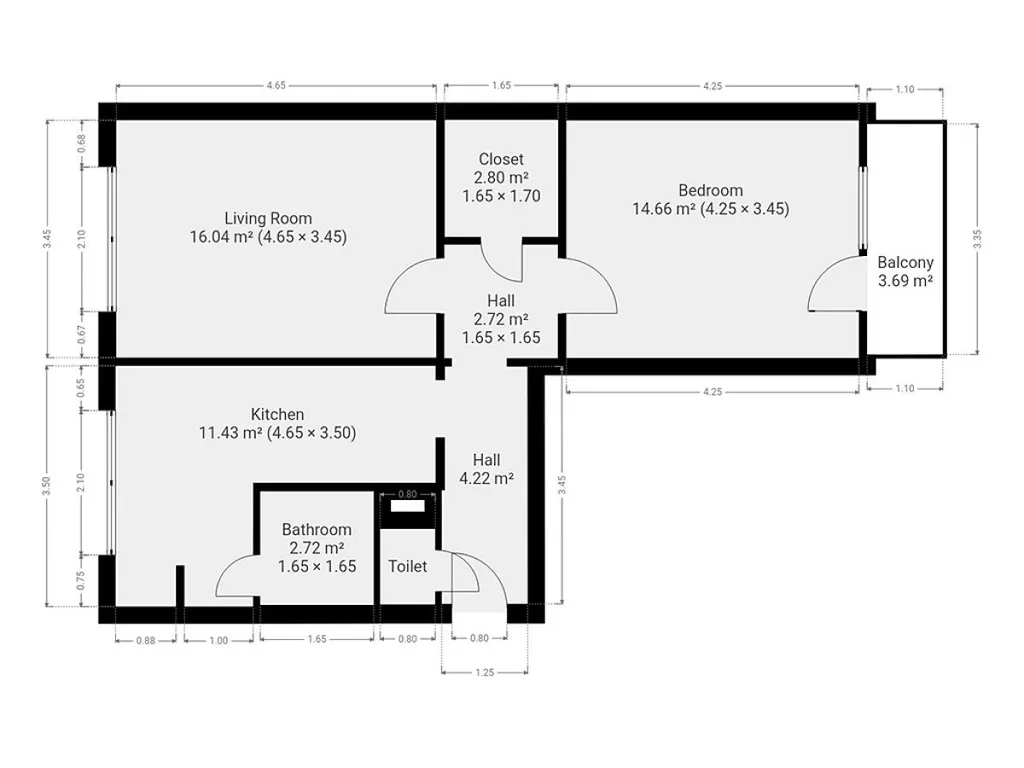
Nabízíme k dlouhodobému podnájmu útulný a světlý byt o dispozici 2+1 s výměrou 61 m², který se nachází v 6. patře udržovaného panelového domu s výtahem. K bytu náleží balkon a také praktický sklep.

Byt je pronajímán nezařízený, což dává novému podnájemníkovi možnost přizpůsobit si interiér dle vlastního vkusu.

Kuchyňská linka je vybavena lednicí s mrazákem, elektrickou troubou, plynovou varnou deskou, digestoří a jídelním koutem. Obývací pokoj nabízí světlý a prostorný interiér, doplněný moderním křeslem a menším stolkem. Další samostatný pokoj je vhodný například jako ložnice. Koupelna disponuje sprchovým koutem, umyvadlem a pračkou, toaleta je řešena odděleně.

Součástí bytu je také menší místnost, kterou lze využít jako šatnu či úložný prostor.

V bezprostředním okolí domu je kompletní občanská vybavenost – obchodní centrum Letňany, supermarket Lidl, školy a školky, poliklinika, restaurace, kavárny i dětská hřiště. K odpočinku a volnočasovým aktivitám je ideální Lesopark Letňany, vzdálený jen několik minut chůze.

Dopravní dostupnost je výborná – v docházkové vzdálenosti se nachází stanice metra C – Letňany a několik autobusových zastávek.

Byt je k nastěhování od 1. 8. 2026.

Energetická třída: G (průkaz nedodán).

Parametry bytu

Cena
22 500 Kč /za měsíc
Poznámka k ceně
vratná jistota, náklady na bydlení 6337 Kč, poplatek za podnájem 29000 Kč
Aktualizováno
20. 4. 2026
Adresa
Tupolevova, Letňany - Praha 18
ID
N6738
Stavba
Panelová
Stav objektu
Velmi dobrý
Patro
6. z 8
Vybaveno
Ne
Typ objektu
Patrový
Lokalita objektu
Klidná část obce
Vlastnictví
Družstevní
Užitná plocha
61 m2
Podlahová plocha
61 m2
Třída energetické náročnosti
G - Mimořádně nehospodárná
Elektřina
230V
Topení
Ústřední dálkové
Doprava
Silnice, MHD, Autobus
Balkon
Sklep
Lodžie
Výtah
Převod do OV

Kontaktovat makléře

Máte zájem o tento byt?

Tímto, v souladu s nařízením Evropského parlamentu a Rady (EU) 2016/679, v platném znění, prohlašuji, že mi je alespoň 16 let a uděluji tak svůj souhlas se zpracováním zadaných údajů (jméno, telefon, e-mail, ip adresa) společnosti B3 Technology, s.r.o., IČ: 07330600, se sídlem Novostavby 126/23, 435 11 Lom (správce dat), za účelem předání dotazu z tohoto formuláře Vámi vybranému inzerentovi a zpětného kontaktování mé osoby. Osobní údaje bude správce zpracovávat manuálně i automaticky přímo prostřednictvím svých zaměstnanců. Informace předané tímto formulářem budou uloženy v databázi správce maximálně po dobu 10 let. Odvolání souhlasu s uložením a zpracováním poskytnutých dat lze e-mailem na info@realitypro.eu. V případě podezření na neoprávněné použití Vámi poskytnutých údajů máte právo předat podnět k šetření Úřadu pro ochranu osobních údajů. Více informací
Chystáte se prodat nemovitost?
Pomůžeme Vám!

Inzerát si prohlédlo 0 lidí

Prodejce

Miloslava Kačerová

Miloslava Kačerová

Hlídací pes

Chcete dostávat emailem podobné nabídky pronájmu bytů 2+1 v Praze 9?

Podobné nemovitosti