Pronájem bytu 2+kk, Praha - Vršovice, Kodaňská, 58 m2

Kodaňská, Vršovice - Praha 10

26 000 Kč /za měsíc Získejte výhodnou HYPOTÉKU

(vratná jistota Kč, náklady na bydlení 4 003 Kč, poplatek za podnájem)

Prověřené firmy v Praze 10

Stěhovací služby

Výkup a prodej starého nábytku

Informace k bytu

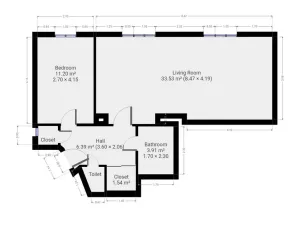
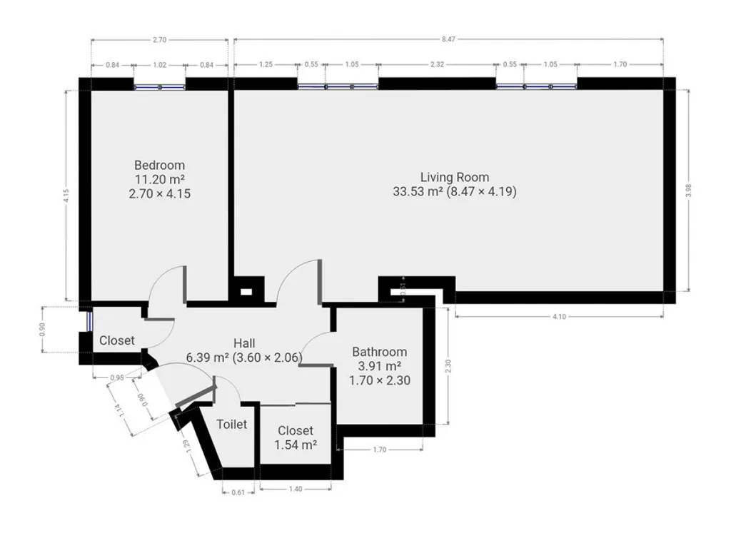
K dlouhodobému podnájmu nabízíme krásný byt o dispozici 2+kk, v lokalitě Praha - Vršovice, v ulici Kodaňská. Byt o celkové výměře 58 m2 se nachází ve druhém podlaží cihlového domu. K bytu patří sklep.

Byt se nabízí částečně vybavený. V moderní kuchyni se nachází plynový sporák s digestoří, trouba, velká lednice, mikrovlnná trouba a myčka. V obývacím pokoji je stůl s židlemi, rozkládací sedačka, křeslo s taburetem, komody sloužící jako praktický úložný prostor, knihovna a malý stolek. Ložnice nabízí manželskou postel s matrací, židli, skříň a komodu. V koupelně je vana, pračka a sušička, vestavěná skříň, umyvadlo se zrcadlem a plynový kotel. Toaleta je oddělena. Výhodou bytu jsou dvě praktické šatny.

V docházkové vzdálenosti je nachází veškerá občanská vybavenost - restaurace, bar, supermarket, hřiště, park, lékař, apod. Zastávka MHD se nachází minutu chůzí od domu.

Byt je volný k nastěhování od 01.07.2026. Domácí mazlíčci jsou na bytě po předchozí domluvě s majitelem.

Uvedena energetická kategorie G, jelikož nemáme k dispozici PENB.

Byt pronajímá Ideální nájemce - služba, se kterou budete bydlet bezstarostně a za férových podmínek. Když se něco přihodí, k dispozici jsou správci, kteří s vámi vše vyřeší. Pomůžeme s veškerou administrativou, s nastavením plateb a zajistíme vám speciální pojištění. Pojďte bydlet s námi!

Parametry bytu

Cena
26 000 Kč /za měsíc
Poznámka k ceně
vratná jistota Kč, náklady na bydlení 4 003 Kč, poplatek za podnájem
Aktualizováno
17. 4. 2026
Adresa
Kodaňská, Vršovice - Praha 10
ID
N2275
Stavba
Cihlová
Stav objektu
Velmi dobrý
Patro
2. z 6
Vybaveno
Částečně
Typ objektu
Patrový
Lokalita objektu
Centrum obce
Vlastnictví
Osobní
Užitná plocha
58 m2
Podlahová plocha
58 m2
Elektřina
230V
Topení
Ústřední plynové
Sklep
Výtah

Kontaktovat makléře

Máte zájem o tento byt?

Tímto, v souladu s nařízením Evropského parlamentu a Rady (EU) 2016/679, v platném znění, prohlašuji, že mi je alespoň 16 let a uděluji tak svůj souhlas se zpracováním zadaných údajů (jméno, telefon, e-mail, ip adresa) společnosti B3 Technology, s.r.o., IČ: 07330600, se sídlem Novostavby 126/23, 435 11 Lom (správce dat), za účelem předání dotazu z tohoto formuláře Vámi vybranému inzerentovi a zpětného kontaktování mé osoby. Osobní údaje bude správce zpracovávat manuálně i automaticky přímo prostřednictvím svých zaměstnanců. Informace předané tímto formulářem budou uloženy v databázi správce maximálně po dobu 10 let. Odvolání souhlasu s uložením a zpracováním poskytnutých dat lze e-mailem na info@realitypro.eu. V případě podezření na neoprávněné použití Vámi poskytnutých údajů máte právo předat podnět k šetření Úřadu pro ochranu osobních údajů. Více informací
Chystáte se prodat nemovitost?
Pomůžeme Vám!

Inzerát si prohlédlo 0 lidí

Prodejce

Miloslava Kačerová

Miloslava Kačerová

Hlídací pes

Chcete dostávat emailem podobné nabídky pronájmu bytů 2+kk v Praze 10?

Podobné nemovitosti