Pronájem bytu 2+1, Praha - Vokovice, Kamerunská, 53 m2

Kamerunská, Vokovice - Praha 6

23 500 Kč /za měsíc Získejte výhodnou HYPOTÉKU

(vratná jistota, náklady na bydlení 6209 Kč, poplatek za podnájem)

Prověřené firmy v Praze 6

Stěhovací služby

Výkup a prodej starého nábytku

Informace k bytu

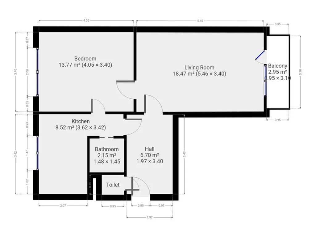
K dlouhodobému podnájmu nabízíme byt o dispozici 2+1 v atraktivní lokalitě Praha - Vokovice. Byt o celkové výměře 53 m2 se nachází v šestém patře panelového domu s výtahem. K bytu patří i balkon a sklep.

Byt se nabízí částečně vybavený. Kuchyně disponuje lednicí, elektrickou troubou, plynovým sporákem, digestoří a mikrovlnnou troubou. V kuchyni je také jídelní stůl s židlemi. Obývací pokoj je zařízen pohovkou a šatní skříní. V druhém pokoji je také sedací souprava. Součástí koupelny je vana, umyvadlo a pračka. Toaleta je oddělená.

V okolí domu jsou restaurace, supermarket Billa, základní a mateřská škola, dětská hřiště, pošta atd. Stanice metra Bořislavka je vzdálená pět minut chůze od domu.

Majitel preferuje zájemce bez domácích mazlíčků.

Uvedena energetická kategorie G, jelikož nemáme k dispozici PENB.

Byt pronajímá Ideální nájemce - služba, se kterou budete bydlet bezstarostně a za férových podmínek. Když se něco přihodí, k dispozici jsou správci, kteří s vámi vše vyřeší. Pomůžeme s veškerou administrativou, s nastavením plateb a zajistíme vám speciální pojištění. Pojďte bydlet s námi!

Parametry bytu

Cena
23 500 Kč /za měsíc
Poznámka k ceně
vratná jistota, náklady na bydlení 6209 Kč, poplatek za podnájem
Aktualizováno
17. 4. 2026
Adresa
Kamerunská, Vokovice - Praha 6
ID
N3070
Stavba
Cihlová
Stav objektu
Velmi dobrý
Patro
6. z 6
Vybaveno
Ano
Typ objektu
Patrový
Lokalita objektu
Klidná část obce
Vlastnictví
Osobní
Užitná plocha
53 m2
Podlahová plocha
53 m2
Elektřina
230V
Topení
Ústřední dálkové
Balkon
Sklep
Výtah

Kontaktovat makléře

Máte zájem o tento byt?

Tímto, v souladu s nařízením Evropského parlamentu a Rady (EU) 2016/679, v platném znění, prohlašuji, že mi je alespoň 16 let a uděluji tak svůj souhlas se zpracováním zadaných údajů (jméno, telefon, e-mail, ip adresa) společnosti B3 Technology, s.r.o., IČ: 07330600, se sídlem Novostavby 126/23, 435 11 Lom (správce dat), za účelem předání dotazu z tohoto formuláře Vámi vybranému inzerentovi a zpětného kontaktování mé osoby. Osobní údaje bude správce zpracovávat manuálně i automaticky přímo prostřednictvím svých zaměstnanců. Informace předané tímto formulářem budou uloženy v databázi správce maximálně po dobu 10 let. Odvolání souhlasu s uložením a zpracováním poskytnutých dat lze e-mailem na info@realitypro.eu. V případě podezření na neoprávněné použití Vámi poskytnutých údajů máte právo předat podnět k šetření Úřadu pro ochranu osobních údajů. Více informací
Chystáte se prodat nemovitost?
Pomůžeme Vám!

Inzerát si prohlédlo 0 lidí

Prodejce

Miloslava Kačerová

Miloslava Kačerová

Hlídací pes

Chcete dostávat emailem podobné nabídky pronájmu bytů 2+1 v Praze 6?

Podobné nemovitosti