Prodej činžovního domu, Brno, Hlinky, 1140 m2

Hlinky, Staré Brno

80 000 000 Kč /za nemovitost HYPOTÉKA od 357 552 Kč /za měsíc

(+ DPH)

Prověřené firmy v Brně

Informace k nemovitosti

Dovolujeme si vám nabídnout zprostředkování prodeje čtyřpodlažního domu, objektu občanské vybavenosti s bohatou historií a stabilním výnosem v jedné z nejžádanějších lokalit Brna. Tento dům představuje kombinaci okamžité rentability a budoucího rozvojového potenciálu.

Parametry nemovitosti:

Lokalita: Brno – Pisárky, ulice Hlinky 68 (vynikající dopravní dostupnost a prestiž).

Výměry: celková podlahová plocha objektu 1140 m2 (bez výměry 745 m2 bývalých rozsáhlých vinných sklepů v 1.PP), zastavěná plocha a nádvoří 475 m2, zahrada 371 m2.

Stav:

- 1915 výstavba (dle dostupných informací);

- 1994 rekonstrukce domu spolu s přístavbou dvorního traktu;

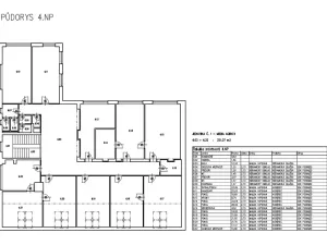
- 2001 nástavba podkrovního plnohodnotného 4.NP, nová krytina o okna do uliční fronty;

- 2013 zateplení 4. NP, nové rozvody elektro;

- 2015 výměna zbývajících oken, rozvody topení, instalace dvou nových plynových kotlů;

- napojení na veškeré IS, dům je průběžně udržovaný.

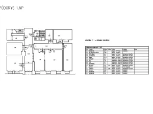
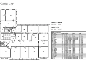
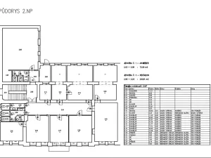
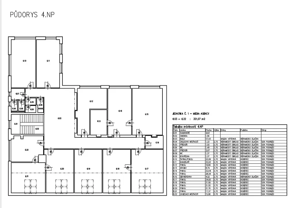
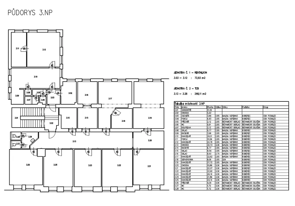
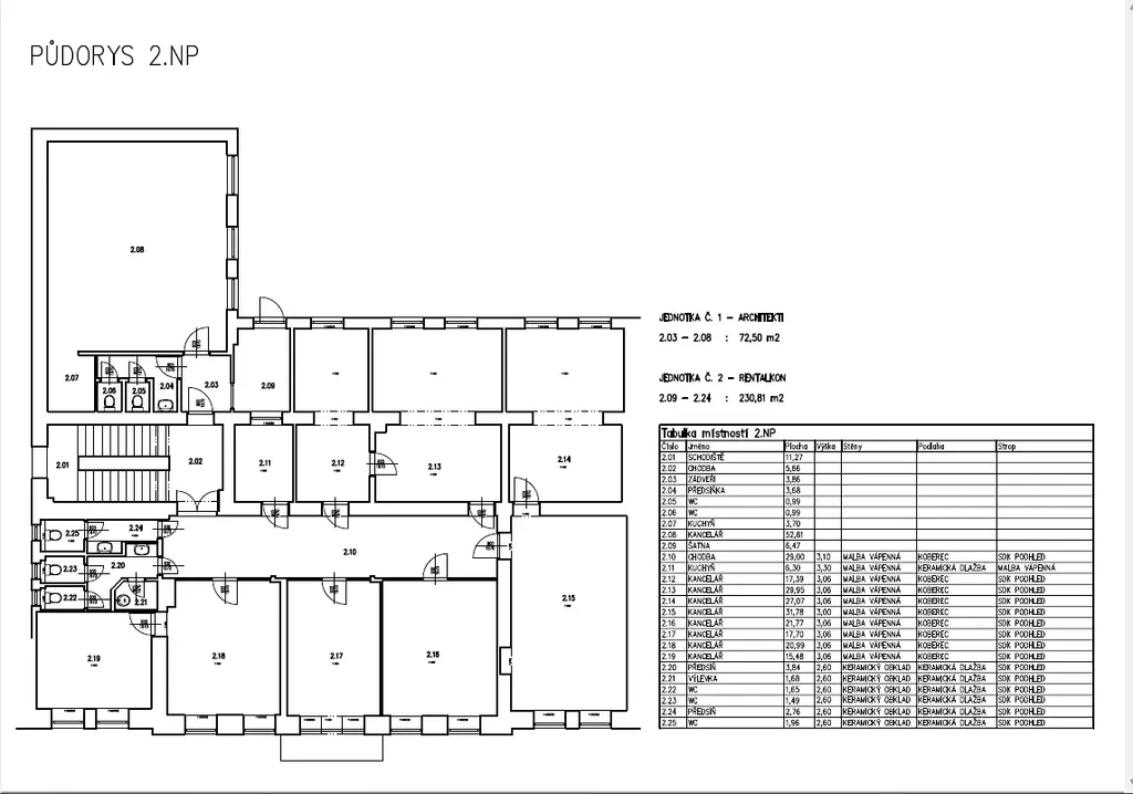
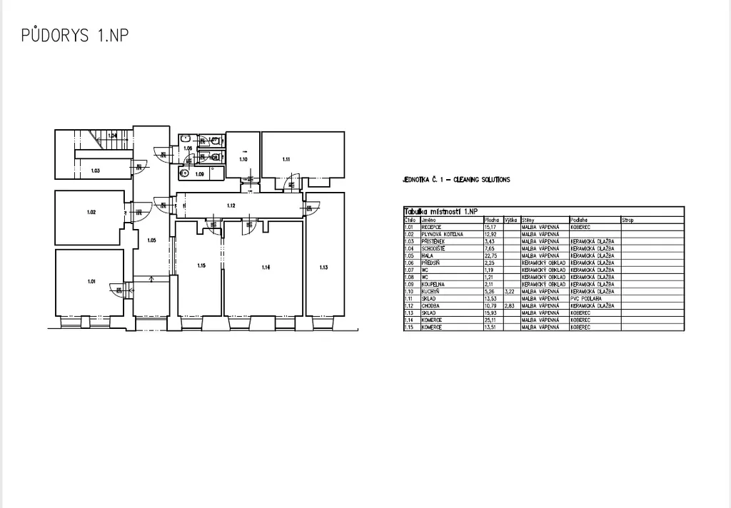
Dispozice: čtyřpodlažní dům, rozsáhlé klenbové sklepy, zahrada;

Omezení: věcná břemena vedení inženýrských sítí a chůze přes zahradu za domem pro objekt ve vnitrobloku ve vlastnictví jiného vlastníka;

Bonus: potenciál pro realizaci nástavby o jedno až dvě podlaží na stávajícím domě a využití sklepů v 1. PP ke komerčním účelům, což výrazně zvýší celkovou užitnou plochu a tržní hodnotu objektu.

Dům je plně obsazen stabilními nájemci z různých sektorů, což minimalizuje investiční riziko výpadku příjmů:

Vzdělávání - zavedená mateřská škola s využitím vlastní zahrady.

Kreativita - moderní studio pro tvorbu digitálního obsahu.

Služby a projekce - stabilní kancelářské zázemí projektantů.

Ubytování - jednotky pro krátkodobé či dlouhodobé ubytování.

Garáž a rozsáhlé prostory v unikátních klenbových sklepech.

Proč investovat právě zde?

Z pohledu finančního se jedná o nízkorizikovou investici s inflační pojistkou. Kombinace komerčních prostor, ubytovacích kapacit, volné kapacity pro nástavbu a komerční využití rozsáhlých sklepů umožňuje flexibilně reagovat na vývoj trhu.

Lokalita Hlinky - adresa, která neztrácí na hodnotě. Blízkost výstaviště BVV i centra města, rychlá dostupnost dálnice.

Rozvojový potenciál: klenbové sklepy nabízejí možnost vybudování stylových vinných sklepů, restaurace nebo výstavních síní, zatímco nástavba umožňuje luxusní byty s panoramatickým výhledem.

Tato nemovitost je určena pro investory, kteří hledají bezpečné uložení svého kapitálu s možností aktivního developmentu.

Parametry nemovitosti

Cena
80 000 000 Kč /za nemovitost Spočítat hypotéku
Poznámka k ceně
+ DPH
Aktualizováno
16. 4. 2026
Adresa
Hlinky, Staré Brno
ID
18859
Stavba
Cihlová
Stav objektu
Dobrý
Lokalita objektu
Centrum obce
Užitná plocha
1140 m2
Zastavěná plocha
475 m2
Podlahová plocha
846 m2
Plocha zahrady
371 m2
Třída energetické náročnosti
G - Mimořádně nehospodárná
Plyn
Plynovod
Odpad
Veřejná kanalizace
Doprava
Dálnice, MHD
Voda
Vodovod
Zdroj topení
Plynový kondenzační kotel
Garáž
Výtah

Kontaktovat makléře

Máte zájem o tuto nemovistost?

Tímto, v souladu s nařízením Evropského parlamentu a Rady (EU) 2016/679, v platném znění, prohlašuji, že mi je alespoň 16 let a uděluji tak svůj souhlas se zpracováním zadaných údajů (jméno, telefon, e-mail, ip adresa) společnosti B3 Technology, s.r.o., IČ: 07330600, se sídlem Novostavby 126/23, 435 11 Lom (správce dat), za účelem předání dotazu z tohoto formuláře Vámi vybranému inzerentovi a zpětného kontaktování mé osoby. Osobní údaje bude správce zpracovávat manuálně i automaticky přímo prostřednictvím svých zaměstnanců. Informace předané tímto formulářem budou uloženy v databázi správce maximálně po dobu 10 let. Odvolání souhlasu s uložením a zpracováním poskytnutých dat lze e-mailem na info@realitypro.eu. V případě podezření na neoprávněné použití Vámi poskytnutých údajů máte právo předat podnět k šetření Úřadu pro ochranu osobních údajů. Více informací
Chystáte se prodat nemovitost?
Pomůžeme Vám!

Inzerát si prohlédlo 0 lidí

Prodejce

Ing. Irena Pavlišová

Ing. Irena Pavlišová

Hlídací pes

Chcete dostávat emailem podobné nabídky prodeje činžovních domů v Brně?

Podobné nemovitosti