Soccer reality

Prodej bytu 3+kk, Praha - Vysočany, Novovysočanská, 73 m2

Novovysočanská, Vysočany - Praha 9

Cena na vyžádání /za nemovitost Získejte výhodnou HYPOTÉKU
Prověřené firmy v Praze 9

Stěhovací služby

Výkup a prodej starého nábytku

Informace k bytu

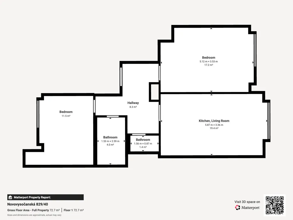
Nabízíme na prodej byt 3+kk o velikosti 73 m², včetně dvou lodžii, ve 3. nadzemním podlaží cihlového domu v Praze 9 – Vysočany, na adrese Novovysočanská 40.

Dispozice bytu: předsíň, koupelna, samostatné WC, komora, ložnice a obývací pokoj s kuchyňským koutem.
Byt prošel kompletní rekonstrukcí, která zahrnuje:

- kompletní výměnu elektroinstalace
- novou kuchyňskou linku se spotřebiči (myčka, sklokeramická varná deska, trouba, digestoř)
- kompletní rekonstrukci koupelny a samostatného WC včetně moderní walk-in sprchy
- chytré elektrické olejové radiátory IQ Line OIL WiFi – ovládání přes mobilní aplikaci, týdenní programování a přesná regulace teploty
- nový bojler na ohřev vody Ariston Velis PRO WiFi 100 EU s možností vzdáleného ovládání přes aplikaci
- nové vinylové podlahy – vyznačují se vynikající rozměrovou stabilitou, voděodolností a snadnou údržbou

Lokalita Novovysočanská v Praze 9 patří mezi klidné a rozvíjející se rezidenční čtvrti s výbornou dopravní dostupností.

V bezprostřední blízkosti se nachází zastávka tramvaje Balabenka a stanice metra B – Českomoravská, odkud se dostanete do centra města během několika minut. Výborné je i napojení na vlakovou dopravu – nedaleko se nachází železniční stanice Praha-Vysočany.

V docházkové vzdálenosti se také nachází oblíbené obchodní centrum Harfa s širokou nabídkou obchodů, restaurací a služeb pro každodenní život.
Lokalita zažívá v posledních letech dynamický rozvoj, což z ní činí atraktivní volbu jak pro vlastní bydlení, tak jako investici do nemovitosti.

Pokud vás byt zaujal, neváhejte nás kontaktovat – rádi domluvíme termín prohlídky.

Parametry bytu

Cena
Cena na vyžádání Spočítat hypotéku
Aktualizováno
15. 4. 2026
Adresa
Novovysočanská, Vysočany - Praha 9
ID
N493
Stavba
Cihlová
Stav objektu
Po rekonstrukci
Patro
3. z 5
Vybaveno
Částečně
Typ objektu
Patrový
Lokalita objektu
Klidná část obce
Vlastnictví
Osobní
Užitná plocha
73 m2
Podlahová plocha
73 m2
Třída energetické náročnosti
G - Mimořádně nehospodárná
Elektřina
230V
Telekomunikace
Telefon, Internet
Doprava
Vlak, Silnice, MHD, Autobus
Lodžie
Výtah

Kontaktovat makléře

Máte zájem o tento byt?

Tímto, v souladu s nařízením Evropského parlamentu a Rady (EU) 2016/679, v platném znění, prohlašuji, že mi je alespoň 16 let a uděluji tak svůj souhlas se zpracováním zadaných údajů (jméno, telefon, e-mail, ip adresa) společnosti B3 Technology, s.r.o., IČ: 07330600, se sídlem Novostavby 126/23, 435 11 Lom (správce dat), za účelem předání dotazu z tohoto formuláře Vámi vybranému inzerentovi a zpětného kontaktování mé osoby. Osobní údaje bude správce zpracovávat manuálně i automaticky přímo prostřednictvím svých zaměstnanců. Informace předané tímto formulářem budou uloženy v databázi správce maximálně po dobu 10 let. Odvolání souhlasu s uložením a zpracováním poskytnutých dat lze e-mailem na info@realitypro.eu. V případě podezření na neoprávněné použití Vámi poskytnutých údajů máte právo předat podnět k šetření Úřadu pro ochranu osobních údajů. Více informací
Chystáte se prodat nemovitost?
Pomůžeme Vám!

Inzerát si prohlédlo 0 lidí

Prodejce

Call Centrum CAPITAL Trust, a.s

Call Centrum CAPITAL Trust, a.s

Hlídací pes

Chcete dostávat emailem podobné nabídky prodeje bytů 3+kk v Praze 9?

Podobné nemovitosti