Pronájem kanceláře, Praha - Vinohrady, U vodárny, 72 m2

U vodárny, Praha, Vinohrady

25 000 Kč /za měsíc Získejte výhodnou HYPOTÉKU

(plus poplatky (elektřina a plyn se převádí na nájemce))

Prověřené firmy v Praze 3

Stěhovací služby

Výkup a prodej starého nábytku

Informace k nemovitosti

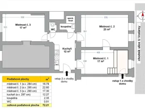
Nabízíme exkluzivně k pronájmu nový nebytový (kancelářský) prostor 3+1 o ploše 72 m2 v suterénu udržovaného činžovního domu ve vyhledávané části Vinohrad v blízkosti nám. Jiřího z Poděbrad. Kanceláře jsou po nákladné, celkové rekonstrukci, která zahrnovala kompletní výměnu podlah, repas dveří, oken, nové stěny, osvětlení a odizolování zdí proti vlhkosti.

Prostory se skládají ze třech hlavních místností, z nichž 2 jsou neprůchozí: průchozí vstupní místnost (17 m2) je vybavena věšáky a botníky integrovanými do lavice. Další místnost se stejnou orientací do ulice (23 m2) je nevybavena, obě tyto místnosti mají na podlahách položeny nové parkety. Třetí nevybavená místnost s orientací do dvora (17 m2) má na podlaze zátěžovou umělohmotnou pokládku. První dvě místnosti a kuchyň mají podlahové vytápění.

Mezi těmito místnostmi se nachází kuchyň, která má rovněž svůj vlastní vchod z chodby domu, v případě využívání výhradně tohoto vchodu jsou pak všechny 3 místnosti neprůchozí. Kuchyň je vybavena myčkou, lednicí s mrazákem, sklokeramickou varnou deskou, troubou, digestoří s filtrem a mikrovlnnou troubou. Z kuchyně se vstupuje na WC a do koupelny se sprchovým koutem a přípravou pro umístění pračky. Prostor je vytápěn indukčním plynovým kotlem zn. Vailant, který rovněž zajišťuje ohřev vody.

Prostory se nacházejí v blízkosti Vinohradské Vodárenské věže v okolí domu je veškerá občanská vybavenost (banky, lékárny, pošta, obchody, večerky, restaurace a kavárny, školy a školky) a spousta zeleně (sady Svatopluka Čecha, sady Bratří Čapků, Riegrovy sady). Kousek od domu tram zastávka „Vinohradská vodárna“ (3 min. na nám. Míru), pouze 3 zastávky od domu se nachází nákupní centrum Flóra s multikinem. Parkování zajištěno modrými zónami.

Vřele doporučujeme jako klidné místo pro kanceláře firem do 5 zaměstnanců v rozšířeném centru Prahy. Preferujeme dlouhodobý vztah s nájemci s prokazatelnou, stabilní historií. Volné ihned.

Parametry nemovitosti

Cena
25 000 Kč /za měsíc
Poznámka k ceně
plus poplatky (elektřina a plyn se převádí na nájemce)
Aktualizováno
15. 4. 2026
Adresa
U vodárny, Praha, Vinohrady
ID
40503
Stavba
Cihlová
Stav objektu
Po rekonstrukci
Vybaveno
Ne
Lokalita objektu
Klidná část obce
Užitná plocha
72 m2
Topné těleso
Podlahové vytápění, Radiátory
Zdroj topení
Plynový kondenzační kotel
Zdroj teplé vody
Plynový kondenzační kotel
Bezbarierový přístup

Kontaktovat makléře

Máte zájem o tuto nemovistost?

Tímto, v souladu s nařízením Evropského parlamentu a Rady (EU) 2016/679, v platném znění, prohlašuji, že mi je alespoň 16 let a uděluji tak svůj souhlas se zpracováním zadaných údajů (jméno, telefon, e-mail, ip adresa) společnosti B3 Technology, s.r.o., IČ: 07330600, se sídlem Novostavby 126/23, 435 11 Lom (správce dat), za účelem předání dotazu z tohoto formuláře Vámi vybranému inzerentovi a zpětného kontaktování mé osoby. Osobní údaje bude správce zpracovávat manuálně i automaticky přímo prostřednictvím svých zaměstnanců. Informace předané tímto formulářem budou uloženy v databázi správce maximálně po dobu 10 let. Odvolání souhlasu s uložením a zpracováním poskytnutých dat lze e-mailem na info@realitypro.eu. V případě podezření na neoprávněné použití Vámi poskytnutých údajů máte právo předat podnět k šetření Úřadu pro ochranu osobních údajů. Více informací
Chystáte se prodat nemovitost?
Pomůžeme Vám!

Inzerát si prohlédlo 0 lidí

Prodejce

Ing. Kamil Rychlý

Ing. Kamil Rychlý

Hlídací pes

Chcete dostávat emailem podobné nabídky pronájmu kanceláří v Praze 3?

Podobné nemovitosti