Prodej bytu 2+kk, Brno, Na pískové cestě, 47 m2 (ID: 2865626)

Na Pískové cestě, Brno, Bohunice

6 959 000 Kč /za nemovitost HYPOTÉKA od 31 103 Kč /za měsíc
Prověřené firmy v Brně

Informace k bytu

____________________________________
!BYT JE REZERVOVANÝ!

Podívejte se na naše 3 poslední
volné byty v projektu
EDISON HOUSE
____________________________________


Hledáte krásné a moderní bydlení, které vás bude hýčkat?

Mrkněte na ateliér 202 v chytré novostavbě EDISON HOUSE.
Najdete ho v Brně, Bohunicích.
Nejrychleji rostoucí čtvrti s obrovským potenciálem rozvoje.
Nejlepší zaměstnavatelé, prvotřídní občanská vybavenost.

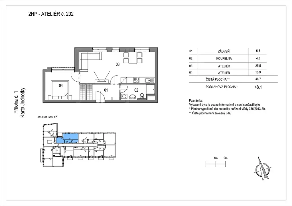
Ateliér 202 nabízí 48,1 m² prakticky navrženého prostoru: každý metr využívá naplno.
Tady neplatíte zbytečné chodby.
Získáte spoustu místa na skvělý život, to se dnes v dispozici 2kk jen tak nevidí.

—————————————————————————————-
V ceně máte kompletní LOXONE SMART HOME systém.

Čím Vám například zjednoduší život?
-> chytrá ventilace: stále čerstvý a čistý filtrovaný vzduch
-> automatické osvětlení podle denní doby: ráno lepší probuzení, večer kvalitní spánek
-> předokenní žaluzie sledují polohu slunce: chládek i v létě
-> chytré řízení teploty: vyhřátý byt, než dorazíte domů + šetří, když není třeba topit
-> bezpečnost a klid: např. ventil vypne přívod vody, když vyteče pračka
-> přístup do bytu přes PIN kód: časově omezený kód třeba pro návštěvu, či řemeslníka
-> SPOOOUSTA DALŠÍCH funkcí - každá vám o trochu zjednoduší a zlepší život

Ovládání?
Snadné a přirozené i pro úplně netechnické lidi.
Díky jednoduché appce a AppleiPadu, který od nás máte v ceně.

Obří výhoda do budoucna?
LOXONE je světová špička. Nejužívanější systém s perfektní podporou.
A novými funkcemi v budoucnu.

Chytré byty se začínají prosazovat tak, jako dřív chytré telefony.
Koupili byste si dneska tlačítkový telefon?
Takhle brzy lidi nebudou chtít klasické "hloupé" byty s horším energetickým standardem.
Jenže SMART HOME se nedá jen tak dodělat do hloupého bytu.
A tak SMART byty porostou na ceně.
————————————————————————————————

KVALITA MATERIÁLŮ A STAVBY
Dům je zkolaudovaný a dostavěný.
Žádné čekání na zpožděnou stavbu.
Žádné doufání, že Váš budoucí byt snad bude vypadat dobře.
U nás si můžete ověřit skvělou kvalitu před nákupem.
Vybrali jsme prvotřídní materiály i zařizovací předměty.
Koupili jsme i svítidla a předokenní žaluzie - vše máte v ceně.


EKONOMIKA PROVOZU:
Kdo chce mít levné náklady bydlení, koupí byt v úsporné novostavbě.
Náš Energetický štítek říká “PENB A – mimořádně úsporná budova”
To je bydlení s levným provozem.
Neplaťte za topení a jeďte za to radši na dovolenou.


Zní to všechno skvěle, že?
Má ale jednu nevýhodu: naše chytré byty rychle mizí.
Tohle je náš poslední byt s cenou pod 7 MKč.
Ozvěte se, než Vám tahle příležitost uteče.

Parametry bytu

Cena
6 959 000 Kč /za nemovitost Spočítat hypotéku
Aktualizováno
15. 4. 2026
Adresa
Na Pískové cestě, Brno, Bohunice
ID
11202501
Stavba
Cihlová
Stav objektu
Novostavba
Patro
2. z 4
Vybaveno
Ne
Vlastnictví
Osobní
Užitná plocha
47 m2
Třída energetické náročnosti
A - Mimořádně úsporná
Ukazatel energetické náročnosti
58 kWh/m2 za rok
Odpad
Veřejná kanalizace
Komunikace
Asfaltová
Telekomunikace
Internet
Doprava
MHD
Voda
Vodovod
Topné těleso
Podlahové vytápění
Zdroj topení
Tepelné čerpadlo
Zdroj teplé vody
Tepelné čerpadlo
Výtah
Bezbarierový přístup

Kontaktovat makléře

Realitní kancelář

Estarea

Libušina třída 826/23, Brno

Chystáte se prodat nemovitost?
Pomůžeme Vám!

Máte zájem o tento byt?

Tímto, v souladu s nařízením Evropského parlamentu a Rady (EU) 2016/679, v platném znění, prohlašuji, že mi je alespoň 16 let a uděluji tak svůj souhlas se zpracováním zadaných údajů (jméno, telefon, e-mail, ip adresa) společnosti B3 Technology, s.r.o., IČ: 07330600, se sídlem Novostavby 126/23, 435 11 Lom (správce dat), za účelem předání dotazu z tohoto formuláře Vámi vybranému inzerentovi a zpětného kontaktování mé osoby. Osobní údaje bude správce zpracovávat manuálně i automaticky přímo prostřednictvím svých zaměstnanců. Informace předané tímto formulářem budou uloženy v databázi správce maximálně po dobu 10 let. Odvolání souhlasu s uložením a zpracováním poskytnutých dat lze e-mailem na info@realitypro.eu. V případě podezření na neoprávněné použití Vámi poskytnutých údajů máte právo předat podnět k šetření Úřadu pro ochranu osobních údajů. Více informací
Chystáte se prodat nemovitost?
Pomůžeme Vám!

Inzerát si prohlédlo 0 lidí

Prodejce

Ing. Jan Veselý

Ing. Jan Veselý

Hlídací pes

Chcete dostávat emailem podobné nabídky prodeje bytů 2+kk v Brně?

Podobné nemovitosti