Pronájem bytu 4+kk, Praha - Nové Město, Kateřinská, 161 m2

Kateřinská, Praha 2, Nové Město

46 000 Kč /za měsíc Získejte výhodnou HYPOTÉKU

(Zálohy na služby ve výši Kč 2.000,-Kč, každá další osoba + 1.500,-Kč, převod elektřiny a plynu)

Prověřené firmy v Praze 2

Stěhovací služby

Výkup a prodej starého nábytku

Informace k bytu

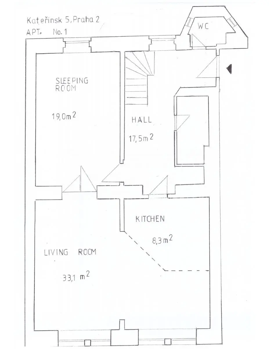
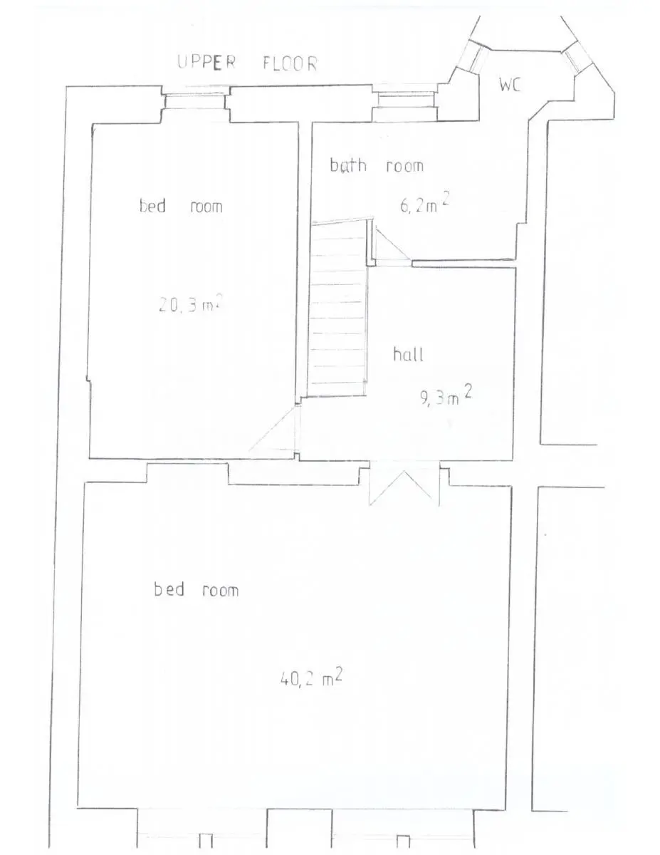
Nabízíme k pronájmu krásný mezonetový byt v prestižní ulici Kateřinská, v samém centru Prahy. Tento prostorný a světlý byt o podlahové ploše 161 m and sup2; je vymezen ve 2. a 3. nadzemním podlaží a nabízí komfortní bydlení s dostatkem prostoru i soukromí.

Dispozice zahrnuje: tři ložnice, velkorysý obývací pokoj propojený s plně vybavenou kuchyní a jídelnou a dvě koupelny. Byt je kompletně zařízen nábytkem a vybaven všemi potřebnými spotřebiči, takže je připraven k okamžitému nastěhování viz fotodokumentace.

Lokalita nabízí příjemně klidné bydlení s výbornou dostupností do centra. V pěší vzdálenosti se nachází stanice metra I. P. Pavlova a Karlovo náměstí, stejně jako široká nabídka obchodů, restaurací a kaváren. Pro relaxaci jsou v blízkosti parky Botanická zahrada Albertov a Kateřinská zahrada.

Dům je velmi dobře udržovaný a klidný, s důrazem na pohodové bydlení rezidentů. K dispozici je výtah (z mezipatra, přístup tedy není zcela bezbariérový).

Byt je ideální pro rodinu, případně sdílené bydlení klidných pracujících či studujících, kteří hledají dlouhodobé a nerušené zázemí.

Vytápění a ohřev vody zajišťuje vlastní plynový kotel.

Zálohy na služby činí 2.000 Kč pro 1 osobu, každá další osoba +1.500 Kč. Elektřina a plyn se převádí na nájemce.

K nastěhování od poloviny července.

V případě zájmu o více informací, dispoziční plánek nebo domluvení prohlídky mě neváhejte kontaktovat.

Parametry bytu

Cena
46 000 Kč /za měsíc
Poznámka k ceně
Zálohy na služby ve výši Kč 2.000,-Kč, každá další osoba + 1.500,-Kč, převod elektřiny a plynu
Aktualizováno
14. 4. 2026
Adresa
Kateřinská, Praha 2, Nové Město
ID
20033
Stavba
Cihlová
Stav objektu
Velmi dobrý
Patro
3. z 5
Vybaveno
Ano
Typ objektu
Patrový
Vlastnictví
Osobní
Užitná plocha
161 m2
Podlahová plocha
161 m2
Třída energetické náročnosti
D - Méně úsporná
Plyn
Plynovod
Odpad
Veřejná kanalizace
Topení
Lokální plynové
Zdroj topení
Plynový kotel
Zdroj teplé vody
Plynový kotel
Bezbarierový přístup

Kontaktovat makléře

Realitní kancelář

Logo QARA, s.r.o.

QARA, s.r.o.

Šafaříkova 201/17, Praha

Chystáte se prodat nemovitost?
Pomůžeme Vám!

Máte zájem o tento byt?

Tímto, v souladu s nařízením Evropského parlamentu a Rady (EU) 2016/679, v platném znění, prohlašuji, že mi je alespoň 16 let a uděluji tak svůj souhlas se zpracováním zadaných údajů (jméno, telefon, e-mail, ip adresa) společnosti B3 Technology, s.r.o., IČ: 07330600, se sídlem Novostavby 126/23, 435 11 Lom (správce dat), za účelem předání dotazu z tohoto formuláře Vámi vybranému inzerentovi a zpětného kontaktování mé osoby. Osobní údaje bude správce zpracovávat manuálně i automaticky přímo prostřednictvím svých zaměstnanců. Informace předané tímto formulářem budou uloženy v databázi správce maximálně po dobu 10 let. Odvolání souhlasu s uložením a zpracováním poskytnutých dat lze e-mailem na info@realitypro.eu. V případě podezření na neoprávněné použití Vámi poskytnutých údajů máte právo předat podnět k šetření Úřadu pro ochranu osobních údajů. Více informací
Chystáte se prodat nemovitost?
Pomůžeme Vám!

Inzerát si prohlédlo 1 lidí

Prodejce

Monika Houdová

Monika Houdová

Hlídací pes

Chcete dostávat emailem podobné nabídky pronájmu bytů 4+kk v Praze 2?

Podobné nemovitosti