Prodej výrobních prostor, Slaný, Pražská, 665 m2 (ID: 2862812)

Pražská, Slaný

17 990 000 Kč /za nemovitost HYPOTÉKA od 80 404 Kč /za měsíc
Prověřené firmy v Slaném

Informace k nemovitosti

Nabízíme k prodeji výrobní halu s kompletním zázemím, aktuálně využívanou jako truhlárna, umístěnou v zabezpečeném areálu s pozemkem 1589 m a užitnou plochou 665 m. Objekt je ve funkčním technickém stavu, vhodný k okamžitému využití a nabízí široké možnosti dalšího podnikání.


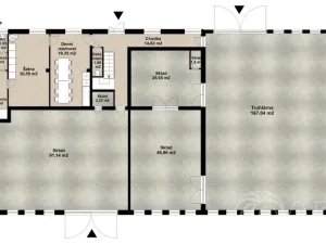
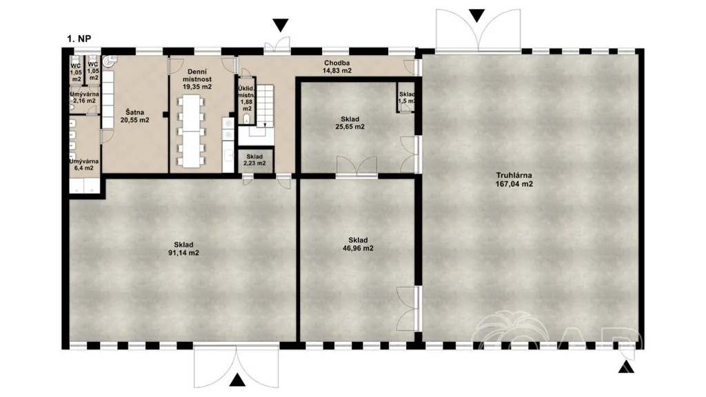
Dispozice a technické řešení:

1. nadzemní podlaží 568 m
výrobní prostory
technické zázemí
šatny pro zaměstnance
jídelna
skladové a obslužné prostory
sociální zázemí (WC, sprchy)

2. nadzemní podlaží 95,5 m
kancelářské prostory - celkem 4 kanceláře + prostor pro kartotéku
kuchyňka
WC

Hala má železobetonový stropní systém s hurdiskovými vložkami (žebrovaný strop), který zajišťuje dobrou únosnost i dlouhou životnost konstrukce. Objekt je dostatečně světlý, s kvalitním umělým osvětlením a přirozeným denním světlem.

Technický stav a vybavení:
nová střecha (2023)
bezpečnostní systém
napojení na veškeré inženýrské sítě
nízké měsíční provozní náklady cca 15 000 Kč (elektřina, plyn, vodné/stočné)

Venkovní plochy:
parkování v přední části objektu
zpevněná plocha za halou o výměře 965 m, aktuálně pronajatá (výpovědní doba 3 měsíce) vhodná pro manipulaci, skladování nebo budoucí rozšíření provozu

Díky své dispozici, technickému stavu a umístění je objekt vhodný pro:
lehkou výrobu
dílnu nebo servisní provoz
skladování a logistiku
montážní nebo kompletovací činnost
provoz e-shopu s vlastním zázemím
kombinaci výroby, administrativy a skladů
zázemí pro řemeslnou nebo technickou firmu

Nemovitost představuje zajímavou příležitost jak pro vlastní podnikání, tak i pro investory hledající stabilní komerční objekt s nízkými provozními náklady.

Parametry nemovitosti

Cena
17 990 000 Kč /za nemovitost Spočítat hypotéku
Aktualizováno
13. 4. 2026
Adresa
Pražská, Slaný
ID
18662
Stavba
Cihlová
Stav objektu
Velmi dobrý
Typ objektu
Patrový
Užitná plocha
665 m2
Třída energetické náročnosti
G - Mimořádně nehospodárná
Elektřina
230V, 400V
Plyn
Plynovod
Odpad
Veřejná kanalizace
Komunikace
Betonová, Asfaltová
Doprava
Dálnice, Silnice
Voda
Vodovod
Bezbarierový přístup

Kontaktovat makléře

Realitní kancelář

Logo QARA, s.r.o.

QARA, s.r.o.

Šafaříkova 201/17, Praha

Chystáte se prodat nemovitost?
Pomůžeme Vám!

Máte zájem o tuto nemovistost?

Tímto, v souladu s nařízením Evropského parlamentu a Rady (EU) 2016/679, v platném znění, prohlašuji, že mi je alespoň 16 let a uděluji tak svůj souhlas se zpracováním zadaných údajů (jméno, telefon, e-mail, ip adresa) společnosti B3 Technology, s.r.o., IČ: 07330600, se sídlem Novostavby 126/23, 435 11 Lom (správce dat), za účelem předání dotazu z tohoto formuláře Vámi vybranému inzerentovi a zpětného kontaktování mé osoby. Osobní údaje bude správce zpracovávat manuálně i automaticky přímo prostřednictvím svých zaměstnanců. Informace předané tímto formulářem budou uloženy v databázi správce maximálně po dobu 10 let. Odvolání souhlasu s uložením a zpracováním poskytnutých dat lze e-mailem na info@realitypro.eu. V případě podezření na neoprávněné použití Vámi poskytnutých údajů máte právo předat podnět k šetření Úřadu pro ochranu osobních údajů. Více informací
Chystáte se prodat nemovitost?
Pomůžeme Vám!

Inzerát si prohlédlo 0 lidí

Prodejce

Lukáš Helešic

Lukáš Helešic

Hlídací pes

Chcete dostávat emailem podobné nabídky prodeje výrobních prostor v Slaném?

Podobné nemovitosti