Pronájem bytu 3+1, Praha - Kamýk, Zárubova, 83 m2 (ID: 2852791)

Zárubova, Praha 12, Praha 4, Kamýk

28 900 Kč /za měsíc Získejte výhodnou HYPOTÉKU

(+popl. 4900, el. zálohy 1000 Kč)

Prověřené firmy v Praze 4

Stěhovací služby

Výkup a prodej starého nábytku

Informace k bytu

3D virtuální prohlídka bytu zde: https://1url.cz/duOe1
Zprostředkujeme Vám pronájem luxusního, nadstandardně zařízeného bytu 3+1 s lodžií, o velikosti 83 m² po kompletní rekonstrukci v ul. Zárubova, Praha 12-Kamýk. Byt je navíc bezbariérový, umístěný v 7. nadzemním patře (z celkových 8) skvěle udržovaného bytového domu s výtahem. Díky své poloze ve vyšším patře poskytuje nádherný výhled, soukromí a dechberoucí výhledy do okolí a na Lhotecký les.

Bydlení kombinuje vysoký komfort a kvalitu v moderním designu a klidné prostředí zeleně s veškerou občanskou vybaveností na dosah. Výborná dopravní dostupnost - zastávka MHD přímo u domu (na Kačerov 10 minut, Smíchov do 20 minut).

Byt je vhodný pro jednotlivce, pár nebo menší rodinu, kteří ocení kvalitní designové bydlení, velkoryse prostorné místnosti a nadbytek úložného prostoru, který je zde efektivně vyřešen.
Cena měsíčního pronájmu činí 28.900 Kč, zálohy na služby 4.900 Kč, vratná kauce, provize RK. K dispozici k nastěhování ihned.

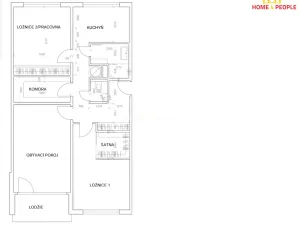
ELEGANTNÍ DISPOZICE:
• obývací pokoj s lodžií orientovanou na západ, ideální pro večerní posezení při západu slunce, lodžíe pro větší komfort vybavena navíc ještě markýzou
• hlavní ložnice s vlastní walk-in šatnou pro maximální komfort
• druhá ložnice/pracovna s orientací na severovýchod – ideální pro dětský pokoj, druhou ložnici nebo home-office
• samostatná kompletně vybavená kuchyně
• koupelna s prostorným sprchovým koutem a podlahovým vytápěním
• samostatné WC
• mimořádně prostorná komora

NADSTANDARTNÍ PROVEDENÍ:
• prémiové materiály – odhlučněné dveře Sapeli, sanita Villeroy & Boch, armatury Grohe
• lakovaná kuchyňská linka s vestavnými spotřebiči Whirlpool
• komfortní koupelna s podlahovým topením a velkorysým sprchovým koutem
• samostatné WC
• dostatek úložných prostor vč. komory, vestavěných skříní a walk-in šatny
• moderní technické zázemí – k dispozici přípojka optického internetu 1000 Mb/s a klimatizace

LOKALITA:
Byt se nachází v oblíbené zelené části Prahy. Lhotecký les je vzdálen jen pár kroků a zároveň máte rychlé spojení do centra – zastávka MHD přímo u domu (Kačerov do 10 minut, Smíchov do 20 minut). V okolí najdete veškerou občanskou vybavenost – školy, školky, mezinárodní školu Prague British International School, obchody, obchodní centrum, restaurace i sportovní areály. Oblíbené výletní místo Modřanská rokle je vzdálené jen 2 km. V dojezdové vzdálenosti na Libuši je také oblíbená tržnice SAPA.

DALŠÍ BENEFITY:
• klidné bydlení v zeleni s možností pohodlného parkování bez modrých parkovacích zón
• dům po rekonstrukci, společné prostory monitorovány bezpečnostním kamerovým systémem 24/7
• zabezpečená kočárkárna a kolárna k dispozici v suterénu.

Pro více informací a domluvení prohlídky, kontaktujte prosím realitní makléřku. Ev. číslo: 32143.

Parametry bytu

Cena
28 900 Kč /za měsíc
Poznámka k ceně
+popl. 4900, el. zálohy 1000 Kč
Aktualizováno
6. 4. 2026
Adresa
Zárubova, Praha 12, Praha 4, Kamýk
ID
32143
Stavba
Panelová
Stav objektu
Po rekonstrukci
Patro
7. z 8
Vlastnictví
Osobní
Užitná plocha
83 m2
Podlahová plocha
83 m2
Třída energetické náročnosti
C - Úsporná
Topení
Ústřední dálkové
Sklep
Lodžie

Kontaktovat makléře

Máte zájem o tento byt?

Tímto, v souladu s nařízením Evropského parlamentu a Rady (EU) 2016/679, v platném znění, prohlašuji, že mi je alespoň 16 let a uděluji tak svůj souhlas se zpracováním zadaných údajů (jméno, telefon, e-mail, ip adresa) společnosti B3 Technology, s.r.o., IČ: 07330600, se sídlem Novostavby 126/23, 435 11 Lom (správce dat), za účelem předání dotazu z tohoto formuláře Vámi vybranému inzerentovi a zpětného kontaktování mé osoby. Osobní údaje bude správce zpracovávat manuálně i automaticky přímo prostřednictvím svých zaměstnanců. Informace předané tímto formulářem budou uloženy v databázi správce maximálně po dobu 10 let. Odvolání souhlasu s uložením a zpracováním poskytnutých dat lze e-mailem na info@realitypro.eu. V případě podezření na neoprávněné použití Vámi poskytnutých údajů máte právo předat podnět k šetření Úřadu pro ochranu osobních údajů. Více informací
Chystáte se prodat nemovitost?
Pomůžeme Vám!

Inzerát si prohlédlo 0 lidí

Prodejce

Ing. Jana Gjašiková

Ing. Jana Gjašiková

Hlídací pes

Chcete dostávat emailem podobné nabídky pronájmu bytů 3+1 v Praze 4?

Podobné nemovitosti