Prodej vícegeneračního domu, Tursko, Ke Statkům, 189 m2

Ke Statkům, Tursko

11 590 000 Kč /za nemovitost HYPOTÉKA od 51 800 Kč /za měsíc
Prověřené firmy v Tursku

Informace k domu

Nabízíme k prodeji dvougenerační rodinný dům s užitnou plochou 189 m², s garáží a zahradou, o celkové velikosti pozemku 380 m², v obci Tursko, pouhých 10 km od okraje Prahy.

Tato klidná a malebná lokalita zaujme nejen svou dostupností do hlavního města, ale i příjemným prostředím – přímo za domem se nachází rybník, který dotváří jedinečnou atmosféru bydlení. Zahrada s garáží, přístřeškem na dřevo a pískovištěm potrhuje idylku rodinného bydlení.

Dům o dvou nadzemních podlažích je prakticky rozdělen na dvě samostatné bytové jednotky, což nabízí velkorysé řešení, ať už jako vícegenerační bydlení, kombinace vlastního bydlení s pronájmem nebo příležitost čistě investičního záměru.

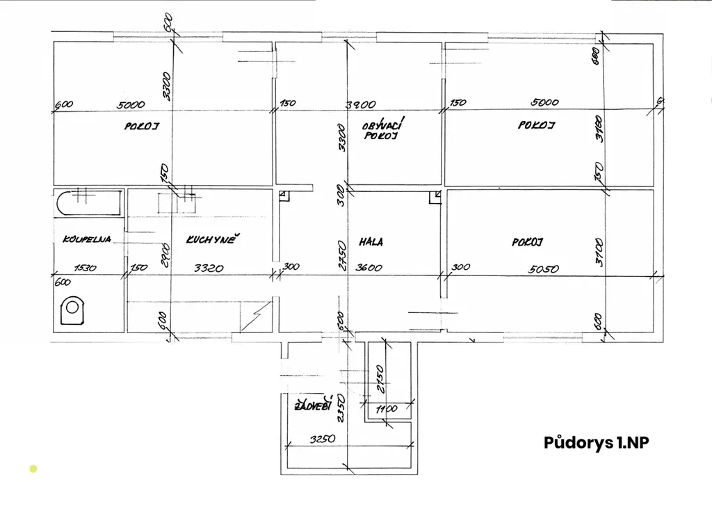
1.NP - byt o dispozici 4+1, 89 m²
- Obývací pokoj s krbem, ložnice, dva dětské pokoje, kuchyně, koupelna s vanou a toaletou, vstupní předsíň a zádveří - půdorys podlaží je součástí nabídky.
- Byt je dlouhodobě obýván nájemci.

2.NP - byt o dispozici 3+KK, 100 m²
- Obývací pokoj s kachlovými kamny, kuchyní a jídelnou, ložnice, dětský pokoj, koupelna se sprchovým koutem, toaletou a bidetem, druhá koupelna s vanou a toaletou, technická místnost, čítárna a vstupní chodba - půdorys podlaží je součástí nabídky.
- Kuchyňská linka je plně vybavena kvalitními spotřebiči, na chodbě a v pokojích se nachází na míru vyrobené vestavné skříně.

Nemovitost prošla v roce 2010 stavební úpravou, při které byla realizována kompletní nástavba druhého nadzemního podlaží. Díky tomu nabízí horní byt moderní standard bydlení, zatímco přízemí si zachovává svůj původní, avšak udržovaný stav.

Vytápění domu zajišťuje elektrický kotel s možností využití krbu a kamen. Byt v přízemí vytápí radiátory a v patře je instalováno podlahové teplovodní topení. Nemovitost tak nabízí hned několik způsobů vytápění a provoz domu je nenáročný.
Ohřev vody zajišťují dva elektrické bojlery o objemu 160l a 120l. Zdroj pitné vody je z obecního řadu, odpadní vody jsou svedeny do obecní kanalizace.

V obci je ZŠ, MŠ, pošta, obchod s potravinami, restaurace nebo třeba vinárna.
Dopravní spojení s okolím zajišťuje veřejná autobusová doprava, která propojuje Tursko a zastávku metra Bořislavka v čase 20 min. Ze sousedních Libčic nad Vltavou (4 km) je možné se dostat vlakem na Masarykovo nádraží v čase 30 min.

Jedná se o zajímavou investiční příležitost a současně ideální rodinné bydlení se snadnou dostupností do Prahy - 20 min. jízdy autem.

S nejvýhodnějším financováním hypotečním úvěrem Vám rádi pomůžeme.

Doporučujeme prohlídku.

Pro více informací se na mě neváhejte kdykoli obrátit.

Parametry domu

Cena
11 590 000 Kč /za nemovitost Spočítat hypotéku
Aktualizováno
2. 4. 2026
Adresa
Ke Statkům, Tursko
ID
P1415
Stavba
Cihlová
Stav objektu
Velmi dobrý
Vybaveno
Ano
Druh objektu
Samostatný
Lokalita objektu
Klidná část obce
Užitná plocha
189 m2
Plocha pozemku
380 m2
Třída energetické náročnosti
G - Mimořádně nehospodárná
Elektřina
230V
Plyn
Plynovod
Odpad
Veřejná kanalizace
Komunikace
Asfaltová
Doprava
Silnice, Autobus
Voda
Vodovod
Topné těleso
Podlahové vytápění, Radiátory
Zdroj topení
Elektrokotel
Zdroj teplé vody
Bojler - elektro
Garáž
Bezbarierový přístup

Kontaktovat makléře

Máte zájem o tento dům?

Tímto, v souladu s nařízením Evropského parlamentu a Rady (EU) 2016/679, v platném znění, prohlašuji, že mi je alespoň 16 let a uděluji tak svůj souhlas se zpracováním zadaných údajů (jméno, telefon, e-mail, ip adresa) společnosti B3 Technology, s.r.o., IČ: 07330600, se sídlem Novostavby 126/23, 435 11 Lom (správce dat), za účelem předání dotazu z tohoto formuláře Vámi vybranému inzerentovi a zpětného kontaktování mé osoby. Osobní údaje bude správce zpracovávat manuálně i automaticky přímo prostřednictvím svých zaměstnanců. Informace předané tímto formulářem budou uloženy v databázi správce maximálně po dobu 10 let. Odvolání souhlasu s uložením a zpracováním poskytnutých dat lze e-mailem na info@realitypro.eu. V případě podezření na neoprávněné použití Vámi poskytnutých údajů máte právo předat podnět k šetření Úřadu pro ochranu osobních údajů. Více informací
Chystáte se prodat nemovitost?
Pomůžeme Vám!

Inzerát si prohlédlo 0 lidí

Prodejce

Mgr. David Vrzal

Mgr. David Vrzal

Hlídací pes

Chcete dostávat emailem podobné nabídky prodeje vícegeneračních domů v Tursku?

Podobné nemovitosti