Prodej vícegeneračního domu, Brno, Nováčkova, 380 m2

Nováčkova, Brno, Husovice

22 800 000 Kč /za nemovitost HYPOTÉKA od 101 902 Kč /za měsíc

(vč. provize a právního servisu)

Prověřené firmy v Brně

Pojištění a finance

Informace k domu

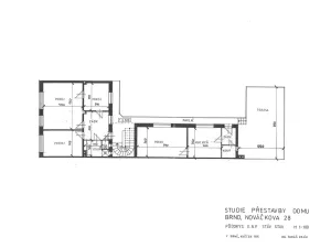
Prodej řadového domu o 2. NP se sedlovou střechou a obytném podkroví . Na uliční objekt navazuje dvorní křídlo s pultovou střešní konstrukcí a s pavlačí ve 2.NP. V zadní části pozemku je zahrada o výměře 240 m2. Celková zastavěná plocha je 265 m2. Objekt je v uliční části částečně podsklepen, užitná plocha v 1.NP do ulice je cca 45 m2 + průjezd cca 18 m2, dvorní křídlo – 73 m2. Ve 2.NP se nachází bytová jednotka 3+kk po celkové rekonstrukci o výměře 68 m2, dále byt 1+1 o výměře 42 m2. V podkroví je vybudována jednotka 5+kk o výměře 120 m2 se dvěma samostatnými vstupy, kterou lze s minimálními zásahy rozdělit. Dvorní prostor je od zahrady oddělen průchozí dílnou-garáží o celkové ploše 32 m2. Nemovitost je s v výjimkou nově zbudovaných jednotek určena k celkové rekonstrukci. Dle ÚP je přípustná stavba o výšce 16 m po římsu a sedlová střecha o sklonu 45st.

Parametry domu

Cena
22 800 000 Kč /za nemovitost Spočítat hypotéku
Poznámka k ceně
vč. provize a právního servisu
Aktualizováno
1. 4. 2026
Adresa
Nováčkova, Brno, Husovice
Stavba
Cihlová
Stav objektu
V rekonstrukci
Druh objektu
V bloku
Lokalita objektu
Klidná část obce
Užitná plocha
380 m2
Zastavěná plocha
265 m2
Plocha pozemku
505 m2
Plocha zahrady
240 m2
Třída energetické náročnosti
G - Mimořádně nehospodárná
Elektřina
230V
Plyn
Plynovod
Voda
Vodovod
Garáž
Sklep
Parkování

Kontaktovat makléře

Máte zájem o tento dům?

Tímto, v souladu s nařízením Evropského parlamentu a Rady (EU) 2016/679, v platném znění, prohlašuji, že mi je alespoň 16 let a uděluji tak svůj souhlas se zpracováním zadaných údajů (jméno, telefon, e-mail, ip adresa) společnosti B3 Technology, s.r.o., IČ: 07330600, se sídlem Novostavby 126/23, 435 11 Lom (správce dat), za účelem předání dotazu z tohoto formuláře Vámi vybranému inzerentovi a zpětného kontaktování mé osoby. Osobní údaje bude správce zpracovávat manuálně i automaticky přímo prostřednictvím svých zaměstnanců. Informace předané tímto formulářem budou uloženy v databázi správce maximálně po dobu 10 let. Odvolání souhlasu s uložením a zpracováním poskytnutých dat lze e-mailem na info@realitypro.eu. V případě podezření na neoprávněné použití Vámi poskytnutých údajů máte právo předat podnět k šetření Úřadu pro ochranu osobních údajů. Více informací
Chystáte se prodat nemovitost?
Pomůžeme Vám!
Theleadway banner

Inzerát si prohlédlo 15 lidí

Prodejce

Petr Nechvátal

Petr Nechvátal

Hlídací pes

Chcete dostávat emailem podobné nabídky prodeje vícegeneračních domů v Brně?

Podobné nemovitosti