Pronájem kanceláře, Praha - Smíchov, Bozděchova, 106 m2

Bozděchova, Praha 5, Smíchov

349 Kč /za metr čtvereční / měsíc Získejte výhodnou HYPOTÉKU

(služby vč. energií cca 220 Kč/m2)

Prověřené firmy v Praze 5

Stěhovací služby

Výkup a prodej starého nábytku

Informace k nemovitosti

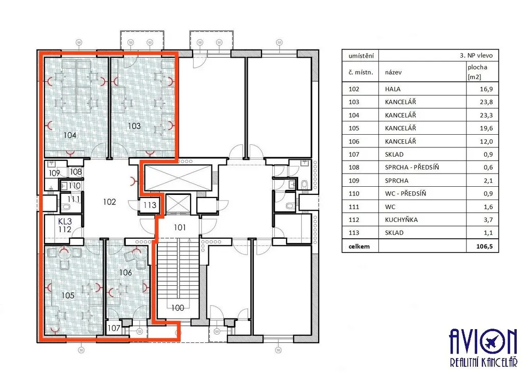
Nově zrekonstruované kancelářské prostory v 5. patře administrativní budovy v Praze 5 - Smíchově, přímo u metra Anděl, ul. Bozděchova. Celková plocha 107 m2 se skládá ze čtyř hlavních místností, tři velké kanceláře od 20 do 24 m2 a jedné menší o rozloze 12 m2, ze dvou kanceláří je vstup na balkony. Všechny kanceláře jsou neprůchozí a vstupuje se do nich z centrální haly. V prostorách se dále nachází vybavená kuchyňka, sprcha, toaleta a malý sklad. Celé prostory jsou pod společným uzamčením s přístupem na magnetickou kartu a jsou klimatizované.

Možné využití nejlépe pro kancelářský provoz. Kanceláře jsou úplně nově zrekonstruované, nové koberce, vymalování, nová kuchyňská linka atd. Možnost pronájmu se systémovým kancelářským vybavením na foto nebo jako prázdné.

Administrativní kancelářská budova s velmi pěknými vnitřními prostory disponuje recepcí a čtyřmi společnými jednacími místnostmi s možností rezervace, jejichž využívání je již zahrnuto v ceně nájmu. Objekt má 24/7 ostrahu.

Vynikající dopravní dostupnost přímo na dopravním uzlu na Andělu.
K dispozici ihned.

Energetickou třídu G uvádíme z formálních důvodů, po obdržení průkazu energetické náročnosti budovy bude uvedena skutečná hodnota.

Parametry nemovitosti

Cena
349 Kč /za metr čtvereční / měsíc
Poznámka k ceně
služby vč. energií cca 220 Kč/m2
Aktualizováno
1. 4. 2026
Adresa
Bozděchova, Praha 5, Smíchov
ID
0958
Stavba
Cihlová
Stav objektu
Po rekonstrukci
Vybaveno
Částečně
Typ objektu
Patrový
Užitná plocha
106 m2
Doprava
MHD
Balkon
Výtah
Bezbarierový přístup

Kontaktovat makléře

Máte zájem o tuto nemovistost?

Tímto, v souladu s nařízením Evropského parlamentu a Rady (EU) 2016/679, v platném znění, prohlašuji, že mi je alespoň 16 let a uděluji tak svůj souhlas se zpracováním zadaných údajů (jméno, telefon, e-mail, ip adresa) společnosti B3 Technology, s.r.o., IČ: 07330600, se sídlem Novostavby 126/23, 435 11 Lom (správce dat), za účelem předání dotazu z tohoto formuláře Vámi vybranému inzerentovi a zpětného kontaktování mé osoby. Osobní údaje bude správce zpracovávat manuálně i automaticky přímo prostřednictvím svých zaměstnanců. Informace předané tímto formulářem budou uloženy v databázi správce maximálně po dobu 10 let. Odvolání souhlasu s uložením a zpracováním poskytnutých dat lze e-mailem na info@realitypro.eu. V případě podezření na neoprávněné použití Vámi poskytnutých údajů máte právo předat podnět k šetření Úřadu pro ochranu osobních údajů. Více informací
Chystáte se prodat nemovitost?
Pomůžeme Vám!

Inzerát si prohlédlo 0 lidí

Prodejce

Ing. Michal Vítek

Ing. Michal Vítek

Hlídací pes

Chcete dostávat emailem podobné nabídky pronájmu kanceláří v Praze 5?

Podobné nemovitosti