Prodej bytu 2+kk, Brno, Elgartova, 40 m2 (ID: 2849362)

Elgartova, Brno, Husovice

6 390 000 Kč /za nemovitost HYPOTÉKA od 28 559 Kč /za měsíc

(Konečná cena včetně právního servisu. Prodej přímo od majitele. Neplatíte provizi., včetně poplatků, včetně provize, včetně právního servisu)

Prověřené firmy v Brně

Informace k bytu

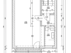
Nabízíme do prodeje moderní podkrovní byt 2+kk s balkónem na ulici Elgartova.

Klidná ulice na samém okraji Husovic.
Velký, nově zrekonstruovaný park jen 50 metrů od domu a rychlé spojení do centra.

Byt se nachází ve 2.NP novostavby cihlového domu o třech jednotkách, na každém patře jedna.
Disponuje 42 m² podlahové plochy a prostornou 9m² terasou s pěkným výhledem do zeleného vnitrobloku.

Dispozičně 2+KK (dělicí příčka se ještě bude dodělávat), ideální pro jednotlivce nebo pár. Obývací část s kuchyní (dodáváme standardně bez kuchyňské linky) a vstupem na terasu. Předsíňka s prostorem pro pračku a úložné prostory a koupelna s walk-in sprchovým koutem.
Dokončeny budou samozřejmě i vstupní a interierové dveře, zábradlí a podlahy.
Kolaudace cca 07/2026.

Vytápění a ohřev vody zajišťuje společný plynový kondenzační kotel Baxi a podlahové vytápění po celém bytě.
Díky izolačním trojsklům a energetické třídě B tak nabízí nízké provozní náklady.
Podružná měřidla má každá jednotka samostatná.

Možnost dokoupit i garážové stání (vrata a vchodové dveře Lomax).

Jakékoliv dotazy Vám rád zodpovím po telefonu, nebo osobně na prohlídce.

Parametry bytu

Cena
6 390 000 Kč /za nemovitost Spočítat hypotéku
Poznámka k ceně
Konečná cena včetně právního servisu. Prodej přímo od majitele. Neplatíte provizi., včetně poplatků, včetně provize, včetně právního servisu
Aktualizováno
1. 4. 2026
Adresa
Elgartova, Brno, Husovice
ID
00416
Stavba
Cihlová
Stav objektu
Novostavba
Patro
2. z 3
Vybaveno
Ne
Lokalita objektu
Klidná část obce
Vlastnictví
Osobní
Užitná plocha
40 m2
Třída energetické náročnosti
B - Velmi úsporná
Ukazatel energetické náročnosti
92 kWh/m2 za rok
Elektřina
230V
Plyn
Plynovod
Odpad
Veřejná kanalizace
Komunikace
Asfaltová
Telekomunikace
Internet, Kabelová televize
Voda
Vodovod
Topné těleso
Podlahové vytápění
Zdroj topení
Plynový kondenzační kotel
Zdroj teplé vody
Plynový kondenzační kotel
Garáž
Terasa
Výtah

Kontaktovat makléře

Máte zájem o tento byt?

Tímto, v souladu s nařízením Evropského parlamentu a Rady (EU) 2016/679, v platném znění, prohlašuji, že mi je alespoň 16 let a uděluji tak svůj souhlas se zpracováním zadaných údajů (jméno, telefon, e-mail, ip adresa) společnosti B3 Technology, s.r.o., IČ: 07330600, se sídlem Novostavby 126/23, 435 11 Lom (správce dat), za účelem předání dotazu z tohoto formuláře Vámi vybranému inzerentovi a zpětného kontaktování mé osoby. Osobní údaje bude správce zpracovávat manuálně i automaticky přímo prostřednictvím svých zaměstnanců. Informace předané tímto formulářem budou uloženy v databázi správce maximálně po dobu 10 let. Odvolání souhlasu s uložením a zpracováním poskytnutých dat lze e-mailem na info@realitypro.eu. V případě podezření na neoprávněné použití Vámi poskytnutých údajů máte právo předat podnět k šetření Úřadu pro ochranu osobních údajů. Více informací
Chystáte se prodat nemovitost?
Pomůžeme Vám!

Inzerát si prohlédlo 0 lidí

Prodejce

Adam Stuchlík

Adam Stuchlík

Hlídací pes

Chcete dostávat emailem podobné nabídky prodeje bytů 2+kk v Brně?

Podobné nemovitosti