Pronájem domu na klíč, Chomutov, Březový vrch, 110 m2 (ID: 2848748)

Březový vrch, Chomutov

30 000 Kč /za měsíc Získejte výhodnou HYPOTÉKU

(cena včetně právnického servisu)

Prověřené firmy v Chomutově

Okna a dveře

Rekonstrukce

Informace k domu

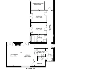
Nabízíme Vám pronájem novostavby 4+KK, se zahradou, ulice Březový Vrch v Chomutově.

Výstavba a dokončení interiéru domu proběhla v tomto roce 2026 - vše je tak nové.

Dům o velikosti 4+KK ( zastavěná plocha činí 169 m2 ) , (užitná plocha činí 124,40m2), stojící na vlastním pozemku o celkové rozloze 1004 m2.
Tento bungalov je komfortní nízkoenergetická stavba z nadstandartních moderních materiálů.

Dispozice domu: kuchyň + obývací pokoj 38,2m2, 2x pokoj ( 10,87m2), ložnice 17,31m2, koupelna ( 6,45m2), chodba (12,15m2), chodba ( 5,23m2), technická místnost ( 3,44m2), WC (1,94m2), zádveří ( 5,69m2), závětří (3,15m2), krytá terasa ( 9,09m2).

Vybavení domu: elektrický kotel, podlahové vytápění, plastová okna s alu klipem a trojskla, , kuchyňská linka.

Venkovní vybavení: na zahradě je jímka na dešťovou vodu, parkovací místo
Inženýrské sítě: kanalizace, voda z řadu, elektřina, dešťová voda je svedena tzv. vsaku.

Nutná vratná kauce 50.000,- Kč + provize RK 30.000,- Kč.
Neváhejte nás kontaktovat pro nezávazné prohlídky, informace.

Parametry domu

Cena
30 000 Kč /za měsíc
Poznámka k ceně
cena včetně právnického servisu
Aktualizováno
31. 3. 2026
Adresa
Březový vrch, Chomutov
ID
6298
Stavba
Cihlová
Stav objektu
Novostavba
Typ objektu
Přízemní
Druh objektu
Samostatný
Užitná plocha
110 m2
Zastavěná plocha
169 m2
Podlahová plocha
124 m2
Plocha pozemku
1004 m2
Plocha zahrady
880 m2
Třída energetické náročnosti
A - Mimořádně úsporná
Elektřina
400V
Odpad
Veřejná kanalizace
Komunikace
Asfaltová
Telekomunikace
Internet
Doprava
MHD
Voda
Vodovod
Zdroj topení
Elektrokotel
Terasa
Bezbarierový přístup
Parkování
Nízkoenergetický

Kontaktovat makléře

Realitní kancelář

Logo ORIONIS s.r.o.

ORIONIS s.r.o.

Čelakovského 3369/2, Chomutov

Chystáte se prodat nemovitost?
Pomůžeme Vám!

Máte zájem o tento dům?

Tímto, v souladu s nařízením Evropského parlamentu a Rady (EU) 2016/679, v platném znění, prohlašuji, že mi je alespoň 16 let a uděluji tak svůj souhlas se zpracováním zadaných údajů (jméno, telefon, e-mail, ip adresa) společnosti B3 Technology, s.r.o., IČ: 07330600, se sídlem Novostavby 126/23, 435 11 Lom (správce dat), za účelem předání dotazu z tohoto formuláře Vámi vybranému inzerentovi a zpětného kontaktování mé osoby. Osobní údaje bude správce zpracovávat manuálně i automaticky přímo prostřednictvím svých zaměstnanců. Informace předané tímto formulářem budou uloženy v databázi správce maximálně po dobu 10 let. Odvolání souhlasu s uložením a zpracováním poskytnutých dat lze e-mailem na info@realitypro.eu. V případě podezření na neoprávněné použití Vámi poskytnutých údajů máte právo předat podnět k šetření Úřadu pro ochranu osobních údajů. Více informací
Chystáte se prodat nemovitost?
Pomůžeme Vám!

Inzerát si prohlédlo 0 lidí

Prodejce

Alena  Škrdle

Alena Škrdle

Hlídací pes

Chcete dostávat emailem podobné nabídky pronájmu domů na klíč v Chomutově?

Podobné nemovitosti