Pronájem bytu 2+kk, Benešov, Suchánkova, 58 m2 (ID: 2848220)

Suchánkova, Benešov

20 000 Kč /za měsíc Získejte výhodnou HYPOTÉKU

(+ poplatky a odměna pro RK)

Prověřené firmy v Benešově

Pojištění a finance

Informace k bytu

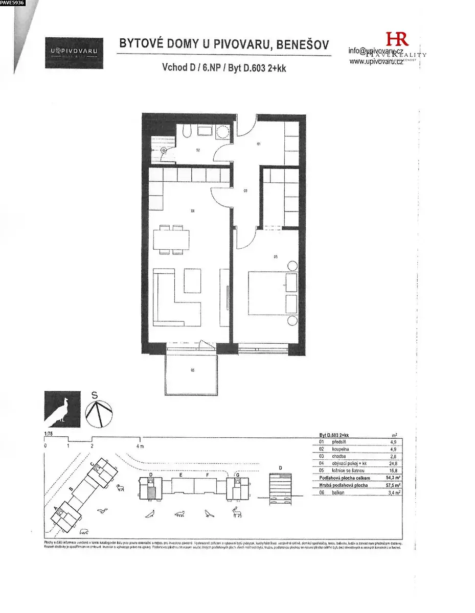
Dovolujeme si Vám nabídnout do pronájmu s platností od dubna 2026 krásný byt 2+kk v novostavbě, o velikosti 58,6 m2 s balkonem 3,4 m2 umístěný v 6. NP dokončeného bytového komplexu v Benešově. Výstavba bytového domu probíhala v letech 2025-2026 a splňuje nejvyšší nároky a standardy bydlení. Byt je dispozičně členěn na: vstupní předsíň 4,9 m2, koupelnu s WC 4,9 m2, obývací pokoj 24,8 m2 s novou kuchyňskou linkou a vstupem na balkon 3,4 m2 a ložnici se šatnou 16,8 m2. Dům je zateplený, nízkonákladový, splňuje PENB třídy „B“ a má výtah. V bytě se nachází moderní kuchyňská linka s vestavnými spotřebiči: (pečící trouba, myčka nádobí, indukční varná deska, mikrovlnná trouba, lednice s mrazákem a digestoř). Vytápění v domě a ohřev teplé vody zajistí centrální plynový kotel. V bytě jsou rozmístěny radiátory a v koupelně topný žebřík. Každá jednotka má svůj vlastní elektroměr, měřiče spotřeby studené i teplé vody a spotřeby tepla. Na podlaze je plovoucí podlaha v dezénu přírodního dřeva a v koupelně keramická dlažba a prostorný sprchový kout. Okna jsou plastová, zvenčí šedá, uvnitř bílá, s izolačními 3 skly. V oknech jsou instalovány žaluzie. Vstupní dveře do bytu jsou protipožární, k dispozici je domácí telefon. V suterénu domu se nachází parkovací stání pro vůz v garáži. Sklepní kóje patřící k bytu je umístěna ve 2.NP a má 2,3 m2. Požadované měsíční nájemné za byt včetně parkovacího stání v garáži a sklepa činí 20.000,- Kč + záloha na spotřebu médií cca 3.762,- Kč. Spotřebu el. energie v bytě si nájemce přihlásí na sebe u dodavatele. Jistota (dříve „kauce“) činí 45.000,- Kč a je vratná po řádném ukončení nájemního vztahu. Provize pro RK činí 1měsíční nájemné. Nabídka je určena pro nekuřáky bez domácích mazlíčků. Upřednostňujeme dlouhodobý pronájem. V Benešově je veškerá občanská vybavenost v místě a dobré dopravní spojení do Prahy a Českých Budějovic. Prohlídky objektu jsou možné kdykoli po dohodě. V případě Vašich dotazů nás neváhejte kontaktovat na uvedeném telefonním čísle.

Parametry bytu

Cena
20 000 Kč /za měsíc
Poznámka k ceně
+ poplatky a odměna pro RK
Aktualizováno
30. 4. 2026
Adresa
Suchánkova, Benešov
ID
PAVE5936
Stavba
Smíšená
Stav objektu
Novostavba
Patro
6. z 6
Lokalita objektu
Centrum obce
Vlastnictví
Osobní
Užitná plocha
58 m2
Podlahová plocha
58 m2
Třída energetické náročnosti
B - Velmi úsporná
Garáž
Bezbarierový přístup
Převod do OV

Kontaktovat makléře

Máte zájem o tento byt?

Tímto, v souladu s nařízením Evropského parlamentu a Rady (EU) 2016/679, v platném znění, prohlašuji, že mi je alespoň 16 let a uděluji tak svůj souhlas se zpracováním zadaných údajů (jméno, telefon, e-mail, ip adresa) společnosti B3 Technology, s.r.o., IČ: 07330600, se sídlem Novostavby 126/23, 435 11 Lom (správce dat), za účelem předání dotazu z tohoto formuláře Vámi vybranému inzerentovi a zpětného kontaktování mé osoby. Osobní údaje bude správce zpracovávat manuálně i automaticky přímo prostřednictvím svých zaměstnanců. Informace předané tímto formulářem budou uloženy v databázi správce maximálně po dobu 10 let. Odvolání souhlasu s uložením a zpracováním poskytnutých dat lze e-mailem na info@realitypro.eu. V případě podezření na neoprávněné použití Vámi poskytnutých údajů máte právo předat podnět k šetření Úřadu pro ochranu osobních údajů. Více informací
Chystáte se prodat nemovitost?
Pomůžeme Vám!
Theleadway banner

Inzerát si prohlédlo 49 lidí

Prodejce

Andrea Venerová

Andrea Venerová

Hlídací pes

Chcete dostávat emailem podobné nabídky pronájmu bytů 2+kk v Benešově?

Podobné nemovitosti