Pronájem kanceláře, Praha - Nové Město, Politických vězňů, 300 m2

Politických vězňů, Praha, Nové Město

16,4 € /za metr čtvereční / měsíc Získejte výhodnou HYPOTÉKU
Prověřené firmy v Praze 1

Stěhovací služby

Výkup a prodej starého nábytku

Informace k nemovitosti

Nabízíme k pronájmu bez provize moderní kancelářské prostory v administrativním komplexu Bredovský Dvůr v centru Prahy. Tento jedinečný projekt propojuje dvě citlivě zrekonstruované historické budovy s moderní kancelářskou částí a nabízí reprezentativní pracovní prostředí s vysokým standardem. Součástí komplexu je klidné atrium, restaurace a obchodní prostory v přízemí.

Kanceláře jsou navrženy s důrazem na flexibilitu a lze je přizpůsobit potřebám nájemce – od open space řešení po menší samostatné kanceláře. Díky své poloze v centru města nabízí budova výbornou dopravní dostupnost a kompletní občanskou vybavenost v okolí, což z ní činí ideální volbu pro firmy hledající prestižní sídlo.

Aktuálně volné prostory:

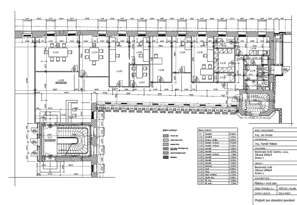
1. patro – kanceláře cca 300 m² (celková plocha 322 m², dispozice viz plánek, historická část, ulice Politických vězňů 13)

Cena pronájmu:
Kanceláře 16,40–16,90 EUR/m²/měsíc
Služby 185 Kč/m²/měsíc (včetně energií nájemce)
Add-on faktor 7,5 %
Parkování 150 EUR/místo/měsíc

Neztrácejte čas hledáním – kontaktujte nás a zdarma pro vás připravíme přehled nejlepších kancelářských možností v centru Prahy i dalších lokalitách. Bez provize, s individuálním přístupem a detailní znalostí trhu.

Parametry nemovitosti

Cena
16,4 € /za metr čtvereční / měsíc
Aktualizováno
30. 3. 2026
Adresa
Politických vězňů, Praha, Nové Město
Stavba
Cihlová
Stav objektu
Velmi dobrý
Patro
2.
Užitná plocha
300 m2
Třída energetické náročnosti
C - Úsporná
Garáž
Parkování

Kontaktovat makléře

Máte zájem o tuto nemovistost?

Tímto, v souladu s nařízením Evropského parlamentu a Rady (EU) 2016/679, v platném znění, prohlašuji, že mi je alespoň 16 let a uděluji tak svůj souhlas se zpracováním zadaných údajů (jméno, telefon, e-mail, ip adresa) společnosti B3 Technology, s.r.o., IČ: 07330600, se sídlem Novostavby 126/23, 435 11 Lom (správce dat), za účelem předání dotazu z tohoto formuláře Vámi vybranému inzerentovi a zpětného kontaktování mé osoby. Osobní údaje bude správce zpracovávat manuálně i automaticky přímo prostřednictvím svých zaměstnanců. Informace předané tímto formulářem budou uloženy v databázi správce maximálně po dobu 10 let. Odvolání souhlasu s uložením a zpracováním poskytnutých dat lze e-mailem na info@realitypro.eu. V případě podezření na neoprávněné použití Vámi poskytnutých údajů máte právo předat podnět k šetření Úřadu pro ochranu osobních údajů. Více informací
Chystáte se prodat nemovitost?
Pomůžeme Vám!

Inzerát si prohlédlo 1 lidí

Prodejce

Magda Bittmanová

Magda Bittmanová

Hlídací pes

Chcete dostávat emailem podobné nabídky pronájmu kanceláří v Praze 1?

Podobné nemovitosti