Pronájem kanceláře, Česká Lípa, Děčínská

Děčínská, Česká Lípa

Cena na vyžádání Získejte výhodnou HYPOTÉKU
Prověřené firmy v České Lípě

Rekonstrukce

Úklidové služby

Informace k nemovitosti

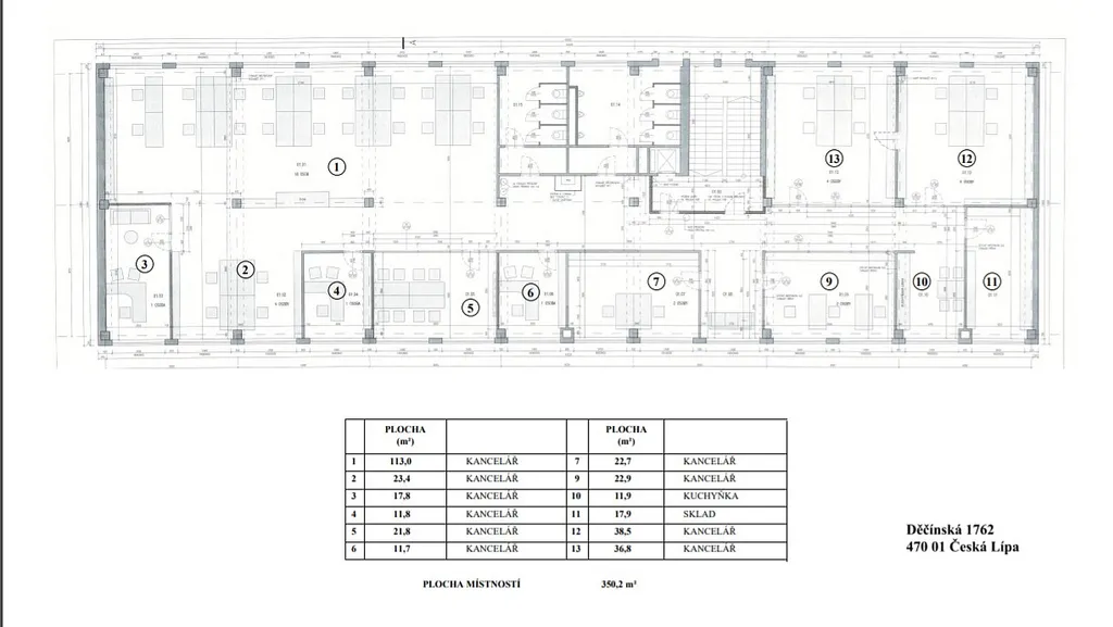
PRONÁJEM KANCELÁŘÍ 350 m²

K pronájmu nabízíme celé rekonstruované první nadzemní podlaží v administrativní budově areálu Česká Lípa, Děčínská 1762. Jedná se o čtyřpodlažní budovu s plochou střechou, která prošla rekonstrukcí se zateplením v roce 2017. Nabízené podlaží bylo celkově zrekonstruováno v roce 2020. Prostory jsou vhodné jako kancelářské či pro lehkou výrobní činnost. Objekt je vybaven výtahem, centrální vrátnicí, v budově je k dispozici kapacitní internet. Vytápění je dálkové. Před administrativní budovou se nachází zastávka MHD. V blízkosti je nákupní centrum a pekárna. K dispozici jsou k pronájmu parkovací místa pro osobní vozy a také pro nákladní vozidla (kamiony). V areálu se nachází pneuservis, mycí linka a čerpací stanice. Ve dvoře je LIDL. Dostupné od 1.7.2026

Parametry nemovitosti

Cena
Cena na vyžádání
Aktualizováno
23. 3. 2026
Adresa
Děčínská, Česká Lípa
ID
001
Stavba
Smíšená
Lokalita objektu
Centrum obce
Vlastnictví
Osobní
Třída energetické náročnosti
C - Úsporná

Kontaktovat makléře

Realitní kancelář

BUS.COM a.s.

Rotavská 2656/2, Praha 5

Chystáte se prodat nemovitost?
Pomůžeme Vám!

Máte zájem o tuto nemovistost?

Tímto, v souladu s nařízením Evropského parlamentu a Rady (EU) 2016/679, v platném znění, prohlašuji, že mi je alespoň 16 let a uděluji tak svůj souhlas se zpracováním zadaných údajů (jméno, telefon, e-mail, ip adresa) společnosti B3 Technology, s.r.o., IČ: 07330600, se sídlem Novostavby 126/23, 435 11 Lom (správce dat), za účelem předání dotazu z tohoto formuláře Vámi vybranému inzerentovi a zpětného kontaktování mé osoby. Osobní údaje bude správce zpracovávat manuálně i automaticky přímo prostřednictvím svých zaměstnanců. Informace předané tímto formulářem budou uloženy v databázi správce maximálně po dobu 10 let. Odvolání souhlasu s uložením a zpracováním poskytnutých dat lze e-mailem na info@realitypro.eu. V případě podezření na neoprávněné použití Vámi poskytnutých údajů máte právo předat podnět k šetření Úřadu pro ochranu osobních údajů. Více informací
Chystáte se prodat nemovitost?
Pomůžeme Vám!

Inzerát si prohlédlo 0 lidí

Prodejce

BUS.COM a.s.

BUS.COM a.s.

Hlídací pes

Chcete dostávat emailem podobné nabídky pronájmu kanceláří v České Lípě?

Podobné nemovitosti