Pronájem bytu 3+kk, Praha - Vršovice, Kodaňská, 77 m2

Kodaňská, Praha, Vršovice

29 900 Kč /za měsíc Získejte výhodnou HYPOTÉKU

(+ 2000 Kč popl. za 2os + 900 Kč další os.)

Prověřené firmy v Praze 10

Stěhovací služby

Výkup a prodej starého nábytku

Informace k bytu

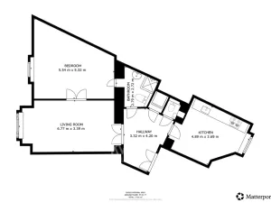
K pronájmu nabízíme velmi prostorný byt 3+kk o ploše cca 77 m² v ulici Kodaňská 81/4, Praha 10 – Vršovice, ve 3. patře udržovaného domu s výtahem.

Byt zaujme vzdušností díky vysokým stropům, příjemnými parketami a velmi praktickou dispozicí – samostatná ložnice, velký obývací pokoj a oddělená kuchyně.

Kuchyně je vybavena kuchyňskou linkou a spotřebiči včetně lednice, myčky, trouby a varné desky. V koupelně je sprchový kout a k dispozici je také technická mistnost s pračkou se sušičkou. Byt také disponuje dvěma toaletami. K bytu taktéž náleží sklep.

Vytápění je řešeno úplně novými etážovými rozvody a novým elektrokotlem, ohřev vody bojlerem. Elektřina se převádí na nájemce.

Byt je ideální pro jednotlivce nebo pár. Spolubydlení je také možné (do jednoho pokoje lze vstupovat přes koupelnu)

Pro více informací mě neváhejte kontaktovat!

Parametry bytu

Cena
29 900 Kč /za měsíc
Poznámka k ceně
+ 2000 Kč popl. za 2os + 900 Kč další os.
Aktualizováno
21. 3. 2026
Adresa
Kodaňská, Praha, Vršovice
ID
29628
Stavba
Cihlová
Stav objektu
Velmi dobrý
Patro
4. z 6
Vybaveno
Ne
Vlastnictví
Osobní
Užitná plocha
77 m2
Třída energetické náročnosti
G - Mimořádně nehospodárná
Elektřina
230V
Plyn
Plynovod
Odpad
Veřejná kanalizace
Komunikace
Dlážděná
Telekomunikace
Telefon, Internet, Kabelová televize, Kabelové rozvody
Doprava
Silnice, MHD, Autobus
Voda
Vodovod
Topné těleso
Radiátory
Zdroj topení
Elektrokotel
Zdroj teplé vody
Elektrokotel
Sklep
Výtah

Kontaktovat makléře

Máte zájem o tento byt?

Tímto, v souladu s nařízením Evropského parlamentu a Rady (EU) 2016/679, v platném znění, prohlašuji, že mi je alespoň 16 let a uděluji tak svůj souhlas se zpracováním zadaných údajů (jméno, telefon, e-mail, ip adresa) společnosti B3 Technology, s.r.o., IČ: 07330600, se sídlem Novostavby 126/23, 435 11 Lom (správce dat), za účelem předání dotazu z tohoto formuláře Vámi vybranému inzerentovi a zpětného kontaktování mé osoby. Osobní údaje bude správce zpracovávat manuálně i automaticky přímo prostřednictvím svých zaměstnanců. Informace předané tímto formulářem budou uloženy v databázi správce maximálně po dobu 10 let. Odvolání souhlasu s uložením a zpracováním poskytnutých dat lze e-mailem na info@realitypro.eu. V případě podezření na neoprávněné použití Vámi poskytnutých údajů máte právo předat podnět k šetření Úřadu pro ochranu osobních údajů. Více informací
Chystáte se prodat nemovitost?
Pomůžeme Vám!

Inzerát si prohlédlo 0 lidí

Prodejce

Ing. Martin Hudek, MSc.

Ing. Martin Hudek, MSc.

Hlídací pes

Chcete dostávat emailem podobné nabídky pronájmu bytů 3+kk v Praze 10?

Podobné nemovitosti