Prodej bytu 2+kk, Mandre, Chorvatsko, 42 m2 (ID: 2838101)

Mandre

246 400 € /za nemovitost
Prověřené firmy

Informace k bytu

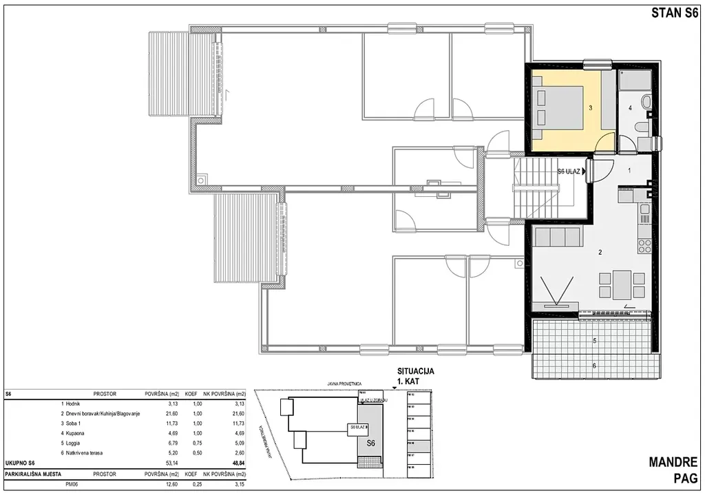
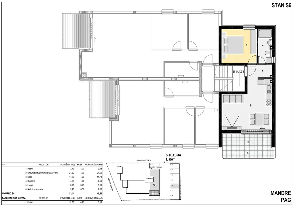
Nabízíme k prodeji moderní byt 2+kk v atraktivní lokalitě Mandre na ostrově Pag v Chorvatsku. Tento cihlový byt je součástí novostavby a nachází se v osobním vlastnictví, což zajišťuje naprostou svobodu a flexibilitu. Byt je situován na druhém podlaží a má obytnou plochu 42 m².

Díky pečlivě promyšlenému uspořádání využijete každý čtvereční metr efektivně a s maximálním komfortem. Součástí bytu je i balkón, který nabízí možnost relaxace na čerstvém vzduchu s výhledem do okolí. Pro větší pohodlí je k dispozici i jedno parkovací místo, což je v této oblasti velkou výhodou.

Luxusní apartmány k prodeji v rámci exkluzivního novostavby 8 bytových jednotek, které se nacházejí přímo u moře, v jedné z nejžádanějších lokalit v Mandre na ostrově Pag. Apartmány jsou rozmístěny v přízemí, prvním a druhém patře.

Nabídka zahrnuje apartmány s jednou, dvěma a třemi ložnicemi, moderně navržené tak, aby zajistily vysokou úroveň pohodlí, funkčnosti a soukromí. Každá jednotka má terasu nebo střešní terasu s otevřeným výhledem na moře a každý apartmán má také vlastní parkovací místo.

Apartmán č. S1 – 4kk + zahrada, přízemí, 86 m2, 522.827 €
Apartmán č. S2 – 3kk + zahrada, přízemí, 69m2, 419.540 €
Apartmán č. S3 – 2kk, 1. patro, 42 m2, 246.400 €
Apartmán č. S4 – 3kk, 1. patro, 82 m2, 497.370 €
Apartmán č. S5 – prodáno
Apartmán č. S6 – 2kk, 1. patro, 49 m2, 288.156 €
Apartmán č. S7 – 4kk, 2. patro, 120 m2, 729.460 €
Apartmán č. S8 – 3kk, 2. patro, 104 m2, 635.492 €

Pokud Vás tento byt zaujal, neváhejte nám napsat nebo zavolat a rádi Vám vše ukážeme osobně.

Parametry bytu

Cena
246 400 € /za nemovitost
Aktualizováno
21. 3. 2026
Adresa
Mandre
ID
SG10022026S6
Stavba
Cihlová
Stav objektu
Novostavba
Patro
2.
Vlastnictví
Osobní
Užitná plocha
42 m2
Balkon
Parkování

Kontaktovat makléře

Máte zájem o tento byt?

Tímto, v souladu s nařízením Evropského parlamentu a Rady (EU) 2016/679, v platném znění, prohlašuji, že mi je alespoň 16 let a uděluji tak svůj souhlas se zpracováním zadaných údajů (jméno, telefon, e-mail, ip adresa) společnosti B3 Technology, s.r.o., IČ: 07330600, se sídlem Novostavby 126/23, 435 11 Lom (správce dat), za účelem předání dotazu z tohoto formuláře Vámi vybranému inzerentovi a zpětného kontaktování mé osoby. Osobní údaje bude správce zpracovávat manuálně i automaticky přímo prostřednictvím svých zaměstnanců. Informace předané tímto formulářem budou uloženy v databázi správce maximálně po dobu 10 let. Odvolání souhlasu s uložením a zpracováním poskytnutých dat lze e-mailem na info@realitypro.eu. V případě podezření na neoprávněné použití Vámi poskytnutých údajů máte právo předat podnět k šetření Úřadu pro ochranu osobních údajů. Více informací
Chystáte se prodat nemovitost?
Pomůžeme Vám!

Inzerát si prohlédlo 0 lidí

Prodejce

Mgr. Jaroslav Široký

Mgr. Jaroslav Široký

Hlídací pes

Chcete dostávat emailem podobné nabídky prodeje bytů 2+kk?

Top nabídky

Podobné nemovitosti