Pronájem bytu 3+1, Praha - Hlubočepy, Pražského, 76 m2

Pražského, Praha, Hlubočepy

26 000 Kč /za měsíc Získejte výhodnou HYPOTÉKU
Prověřené firmy v Praze 5

Stěhovací služby

Výkup a prodej starého nábytku

Informace k bytu

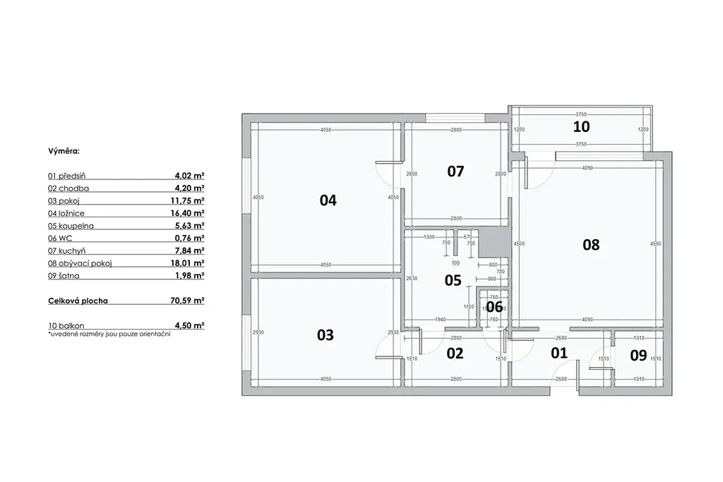
Nabízíme k pronájmu prostorný byt 3+1 (76 m²) se zaskleným balkonem v 6. patře panelového domu s výtahem v klidné lokalitě Praha 5 – Hlubočepy (ul. Pražského). Byt prošel rekonstrukcí (2017) a je částečně zařízený (včetně pračky), připravený k okamžitému nastěhování. Dispozice: obývací pokoj, 2 ložnice, kuchyně, koupelna s vanou, samostatné WC, předsíň, komora + sklep.

Výborná občanská vybavenost i dopravní dostupnost, okolí plné zeleně.

Nájem: 26 000 Kč / měsíc
Zúčtovatelné poplatky: 6 000 Kč / měsíc
Vratná kauce: 26 000 Kč
Provize: 10 000 Kč + DPH

Byt je volný od 1.4. 2026

Pro více informací nebo domluvení prohlídky mě neváhejte kontaktovat.

Parametry bytu

Cena
26 000 Kč /za měsíc
Aktualizováno
19. 3. 2026
Adresa
Pražského, Praha, Hlubočepy
ID
975999
Stavba
Panelová
Stav objektu
Velmi dobrý
Patro
7. z 9
Vybaveno
Částečně
Vlastnictví
Osobní
Užitná plocha
76 m2
Podlahová plocha
81 m2
Třída energetické náročnosti
B - Velmi úsporná
Ukazatel energetické náročnosti
81 kWh/m2 za rok
Elektřina
230V
Odpad
Veřejná kanalizace
Doprava
Silnice, MHD, Autobus
Voda
Vodovod
Sklep
Lodžie
Výtah

Kontaktovat makléře

Máte zájem o tento byt?

Tímto, v souladu s nařízením Evropského parlamentu a Rady (EU) 2016/679, v platném znění, prohlašuji, že mi je alespoň 16 let a uděluji tak svůj souhlas se zpracováním zadaných údajů (jméno, telefon, e-mail, ip adresa) společnosti B3 Technology, s.r.o., IČ: 07330600, se sídlem Novostavby 126/23, 435 11 Lom (správce dat), za účelem předání dotazu z tohoto formuláře Vámi vybranému inzerentovi a zpětného kontaktování mé osoby. Osobní údaje bude správce zpracovávat manuálně i automaticky přímo prostřednictvím svých zaměstnanců. Informace předané tímto formulářem budou uloženy v databázi správce maximálně po dobu 10 let. Odvolání souhlasu s uložením a zpracováním poskytnutých dat lze e-mailem na info@realitypro.eu. V případě podezření na neoprávněné použití Vámi poskytnutých údajů máte právo předat podnět k šetření Úřadu pro ochranu osobních údajů. Více informací
Chystáte se prodat nemovitost?
Pomůžeme Vám!

Inzerát si prohlédlo 0 lidí

Prodejce

Vendula Hlaváčová

Vendula Hlaváčová

Hlídací pes

Chcete dostávat emailem podobné nabídky pronájmu bytů 3+1 v Praze 5?

Podobné nemovitosti