Prodej ubytování, Mladé Buky, 133 m2 (ID: 2835158)

Mladé Buky

8 890 000 Kč /za nemovitost HYPOTÉKA od 39 733 Kč /za měsíc

(včetně poplatků, včetně provize, včetně právního servisu)

Prověřené firmy v Mladých Bukách

Pojištění a finance

Informace k nemovitosti

Nabízím vám k prodeji kompletně zrekonstruovaný dvouapartmánový dům v malebné horské obci Mladé Buky. Nemovitost se nachází v klidné části obce s výbornou dostupností do Trutnova i do Pece pod Sněžkou. V bezprostřední blízkosti cca 200 metrů najdete ski areál, golfové hřiště, bobovou dráhu nebo třeba dětský park Hříčky Buky, dříve Baldův Svět.

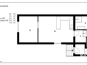
Dům je dispozičně řešen jako dva samostatné apartmány, z nichž každý má vlastní přímý vchod zvenčí. Větší apartmán má plochu 88 m2 a menší apartmán zabírá 44,5 m2. Vzhledem k typu nemovitosti i ke svému umístění je ideální jak pro vlastní bydlení, tak jako investiční nemovitost pro krátkodobé pronájmy s předpokládaným výnosem až 1 mil. ročně.

Základní informace:
• Pozemek o výměře 338 m² - dům, dlážděné nádvoří a samostatné úložné kóje
• Celková podlahová plocha domu 132,6 m², tři podlaží bez výtahu
• Vytápění a ohřev vody: elektrický kotel (podlahové topení, podkroví radiátory)
• Veřejný vodovod a kanalizace

1. apartmán - 88 m2
Větší apartmán má vchod zpředu budovy. Za vstupními dveřmi se nachází chodba se schodištěm, která propojuje jednotlivá podlaží. V přízemí je umístěna prostorná koupelna vybavená sprchovým koutem, toaletou a dvěma umyvadly.

V prvním patře se nachází obývací části s moderní kuchyňskou linkou vybavenou vestavěnými spotřebiči – elektrickou troubou, varnou deskou, mikrovlnnou troubou, lednicí s mrazákem a myčkou. Kuchyňský prostor je doplněn o promyšlené úložné prostory po celém obvodu zdi.

Od obývací části je masivními posuvnými dveřmi elegantně oddělena zadní část místnosti, kde může vzniknout ložnice.
Ve druhém patře se nachází velká podkrovní místnost s odhalenými dřevěnými trámy, která prostoru dodává útulný a přirozený charakter. Skvěle poslouží jako dětský pokoj s hernou.

2. apartmán - 44,5 m2
Menší apartmán má samostatný vstup ze zadní části domu. Za vstupem se nachází technická místnost a koupelna. Hlavní obytný prostor je situovaný o pár schodů výše, kde se nachází kuchyňský kout spojený s jídelní a obývací částí. Zadní část místnosti je opět oddělena designovými posuvnými dveřmi a poslouží tak jako útulná ložnice.

Vytápění a ohřev vody je v celém domě zajišťované elektrickým kotlem. V obou apartmánech řešeno podlahově, v koupelnách je navíc topný žebřík. Pouze v podkroví většího apartmánu zajišťují topení radiátory. Vodu i odpadní hospodářství zajišťují veřejné sítě. Jedná se o původní cihlovou budovu, která prošla kompletní náročnou rekonstrukcí.

Dům je navíc připraven na moderní způsob správy a zabezpečení – majitel při rekonstrukci myslel na budoucí pohodlí. Všechny rozvody a technické přípravy jsou hotové pro instalaci kamerového systému, alarmu, chytré domácnosti i bezkontaktního vydávání klíčů přes kódový zámek. Tato infrastruktura umožňuje pohodlné a bezpečné ovládání domu na dálku, což ocení nejen majitelé využívající nemovitost jako víkendové bydlení, ale především investoři plánující krátkodobé pronájmy. Díky těmto řešením je provoz domu snadný, přehledný a bez nutnosti neustálé osobní přítomnosti.

Tato nemovitost v Mladých Bukách zaujme každého, kdo hledá něco víc než jen dům. Nabízí promyšlené dispoziční řešení, kvalitní rekonstrukci, soukromí, investiční potenciál a výjimečnou polohu v těsné blízkosti přírody, sportovního i rodinného vyžití. Ať už sníte o vlastním bydlení v podhůří Krkonoš, hledáte víkendový únik z města nebo plánujete výnosnou investici, právě jste ji našli.

Přijeďte se sami přesvědčit, co všechno může tenhle dům nabídnout – rád vás nemovitostí osobně provedu.

Parametry nemovitosti

Cena
8 890 000 Kč /za nemovitost Spočítat hypotéku
Poznámka k ceně
včetně poplatků, včetně provize, včetně právního servisu
Aktualizováno
18. 3. 2026
Adresa
Mladé Buky
ID
00240
Stavba
Cihlová
Stav objektu
Velmi dobrý
Vybaveno
Ne
Lokalita objektu
Klidná část obce
Užitná plocha
133 m2
Třída energetické náročnosti
F - Velmi nehospodárná
Ukazatel energetické náročnosti
211 kWh/m2 za rok
Elektřina
230V
Odpad
Veřejná kanalizace
Telekomunikace
Internet
Doprava
Dálnice, Silnice, Autobus
Voda
Vodovod
Topné těleso
Podlahové vytápění
Zdroj topení
Elektrokotel
Zdroj teplé vody
Elektrokotel
Výtah
Parkování

Kontaktovat makléře

Realitní kancelář

FIRST HOLD INVEST s.r.o.

Za Pasáží 1429, Pardubice, Zelené Předměstí

Chystáte se prodat nemovitost?
Pomůžeme Vám!

Máte zájem o tuto nemovistost?

Tímto, v souladu s nařízením Evropského parlamentu a Rady (EU) 2016/679, v platném znění, prohlašuji, že mi je alespoň 16 let a uděluji tak svůj souhlas se zpracováním zadaných údajů (jméno, telefon, e-mail, ip adresa) společnosti B3 Technology, s.r.o., IČ: 07330600, se sídlem Novostavby 126/23, 435 11 Lom (správce dat), za účelem předání dotazu z tohoto formuláře Vámi vybranému inzerentovi a zpětného kontaktování mé osoby. Osobní údaje bude správce zpracovávat manuálně i automaticky přímo prostřednictvím svých zaměstnanců. Informace předané tímto formulářem budou uloženy v databázi správce maximálně po dobu 10 let. Odvolání souhlasu s uložením a zpracováním poskytnutých dat lze e-mailem na info@realitypro.eu. V případě podezření na neoprávněné použití Vámi poskytnutých údajů máte právo předat podnět k šetření Úřadu pro ochranu osobních údajů. Více informací
Chystáte se prodat nemovitost?
Pomůžeme Vám!
Theleadway banner

Inzerát si prohlédlo 4 lidí

Prodejce

Kryštof Kalhous

Kryštof Kalhous

Hlídací pes

Chcete dostávat emailem podobné nabídky prodeje ubytování v Mladých Bukách?

Podobné nemovitosti