Prodej vícegeneračního domu, Hředle, 398 m2

Hředle

12 500 000 Kč /za nemovitost HYPOTÉKA od 55 867 Kč /za měsíc

(Bez provize, bez zprostředkovatelů.)

Prověřené firmy v Hředlích

Informace k domu

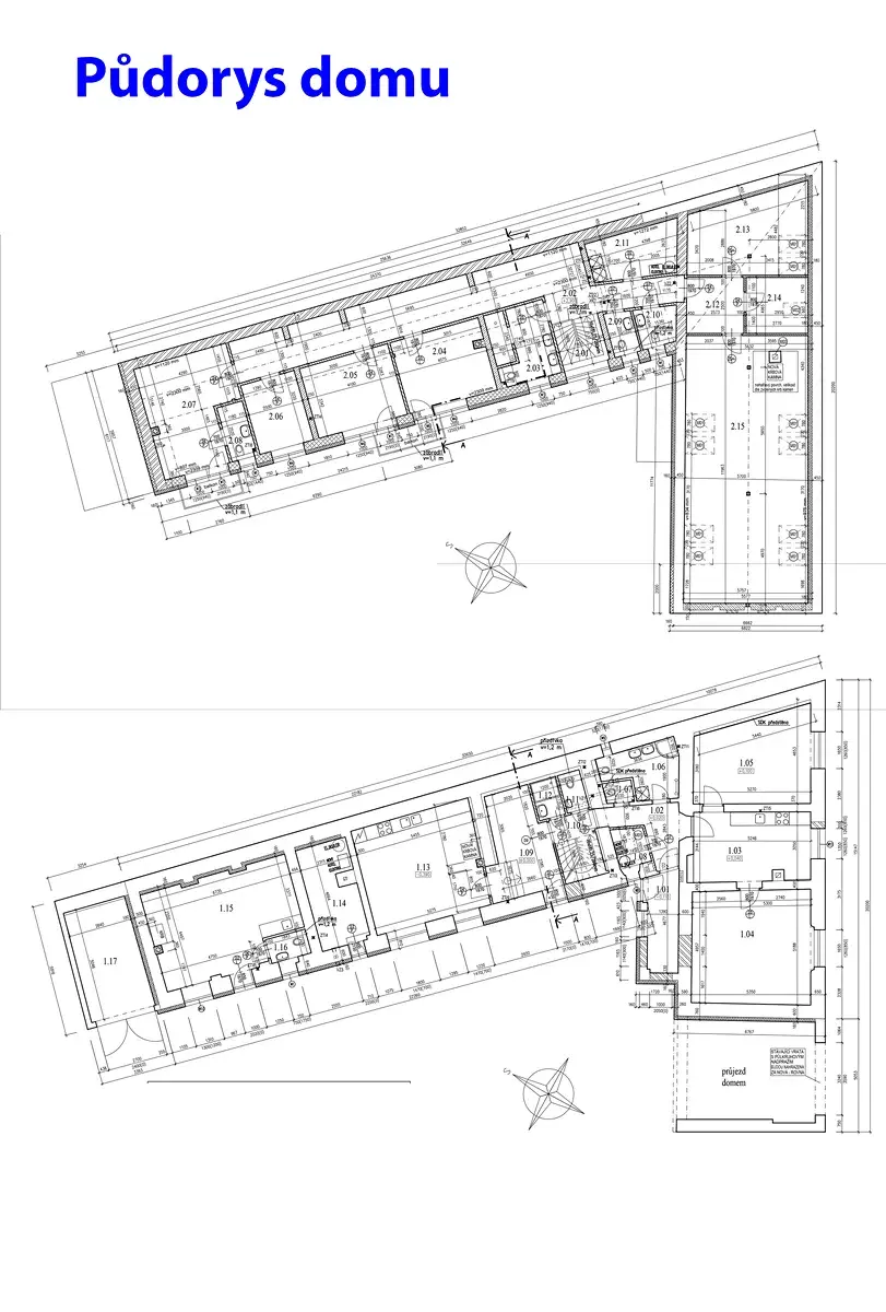
Rozsáhlá usedlost 400 m² + stodola | pozemek 1153 m² | Hředle u Zdic

Nabízíme k prodeji velkou venkovskou usedlost s obrovským potenciálem v obci Hředle u Zdic, pouhých pár minut od nájezdu na D5 (Praha – Plzeň).

Nemovitost je vhodná jak pro investici, podnikání, vícegenerační bydlení, tak například pro kombinaci bydlení a dílny / skladu.

Základní informace:

- užitná plocha domu: více než 400 m²

- pozemek: 1153 m²

- součástí je velká stodola (dílna / sklad / podnikání)

- část domu již rekonstruována ve vysokém standardu

- na druhou část je platné stavební povolení na rekonstrukci

Investiční potenciál:

Objekt je již částečně pronajímán. Současný měsíční příjem (byty a sklady) - 40 000 Kč / měsíc.

Po rekonstrukci dalších prostor je možné vytvořit další bytové jednotky nebo podnikatelské prostory.

Další možnosti využití:

- vícegenerační bydlení

- menší penzion

- dílna / ateliér / sklad

- kombinace bydlení a podnikání

V projektu rekonstrukce je počítáno například s:

4 pokoji s vlastní koupelnou, společnou jídelnou, krásným prostorem s historickými klenbami vhodným pro kavárnu, obchod nebo showroom.

Lokalita:

Hředle jsou klidná obec v krásné přírodě CHKO Křivoklátsko.
Výborná dostupnost do Prahy i Berouna díky blízkosti dálnice D5.

V případě zájmu nás kontaktujte pro více informací nebo domluvení prohlídky.

Parametry domu

Cena
12 500 000 Kč /za nemovitost Spočítat hypotéku
Poznámka k ceně
Bez provize, bez zprostředkovatelů.
Aktualizováno
12. 3. 2026
Adresa
Hředle
Stavba
Smíšená
Stav objektu
Po rekonstrukci
Užitná plocha
398 m2
Plocha pozemku
1153 m2
Garáž
Sklep
Parkování

Kontaktovat makléře

Realitní kancelář

Green Hills Realty

Akátová 233, Králův Dvůr

Chystáte se prodat nemovitost?
Pomůžeme Vám!

Máte zájem o tento dům?

Tímto, v souladu s nařízením Evropského parlamentu a Rady (EU) 2016/679, v platném znění, prohlašuji, že mi je alespoň 16 let a uděluji tak svůj souhlas se zpracováním zadaných údajů (jméno, telefon, e-mail, ip adresa) společnosti B3 Technology, s.r.o., IČ: 07330600, se sídlem Novostavby 126/23, 435 11 Lom (správce dat), za účelem předání dotazu z tohoto formuláře Vámi vybranému inzerentovi a zpětného kontaktování mé osoby. Osobní údaje bude správce zpracovávat manuálně i automaticky přímo prostřednictvím svých zaměstnanců. Informace předané tímto formulářem budou uloženy v databázi správce maximálně po dobu 10 let. Odvolání souhlasu s uložením a zpracováním poskytnutých dat lze e-mailem na info@realitypro.eu. V případě podezření na neoprávněné použití Vámi poskytnutých údajů máte právo předat podnět k šetření Úřadu pro ochranu osobních údajů. Více informací
Chystáte se prodat nemovitost?
Pomůžeme Vám!

Inzerát si prohlédlo 0 lidí

Prodejce

Alena Skalská

Alena Skalská

Hlídací pes

Chcete dostávat emailem podobné nabídky prodeje vícegeneračních domů v Hředlích (okr. Beroun)?

Podobné nemovitosti