Pronájem bytu 3+1, Třebechovice pod Orebem, 75 m2

Třebechovice pod Orebem

15 500 Kč /za měsíc Získejte výhodnou HYPOTÉKU
Prověřené firmy v Třebechovicích pod Orebem

Informace k bytu

Pronájem bytu 3+1 se zahradou v Třebechovicích pod Orebem

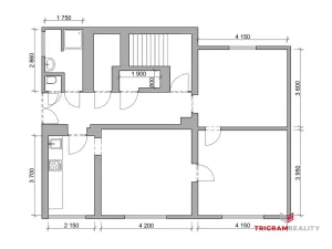
Zprostředkujeme pronájem útulného bytu o dispozici 3+1 v obci Třebechovice pod Orebem. Byt o výměře cca 75 m² se nachází v přízemí rodinného domu v klidné ulici u malého lesíku.

Dispozice a vybavení
• samostatnou kuchyň s kuchyňskou linkou a spotřebiči (plynový a elektrický sporák, digestoř),
• obývací pokoj s krbovými kamny jako doplňkovým zdroj a pro večerní atmosféru,
• dva další samostatné pokoje přístupné z chodby a obýváku,
• samostatné WC u vstupu do bytu,
• prostornou koupelnu se sprchovým koutem, umyvadlem a místem pro pračku,
• špajz a další prostor pro bojler vedle koupelny.

Ve sklepě je umístěn plynový kotel, který zajišťuje vytápění bytu prostřednictvím lokálních radiátorů.

Lze využít:
• předzahrádku přímo pod okny bytu (možnost pěstování bylinek či květin),
• společný dvůr,
• uzamykatelná kolárna o velikosti cca 10 m² vhodná pro uložení kol nebo dřeva ke kamnům.

Nájemné činí 15.500 Kč / měsíc.
Zálohy na energie (voda, elektřina, plyn) 5.000 Kč / měsíc / 2 osoby.
Kauce 30.000 Kč.
Provize RK 1× měsíční nájem.

Majitelé preferují nájemníky, kteří budou o byt i přilehlé prostory pečovat jako o vlastní (např. občasné posekání dvora či zametení společné příjezdové cesty). Vychovaný domácí mazlíček není překážkou.

V obci je kompletní občanská vybavenost: mateřská a základní škola, lékař, lékárna, obchody i vlakové a autobusové spojení.

Pokud hledáte klidné bydlení s výhodami domu a možností využití zahrady, rád Vám byt osobně představím.

Parametry bytu

Cena
15 500 Kč /za měsíc
Aktualizováno
11. 3. 2026
Adresa
Třebechovice pod Orebem
ID
N706
Stavba
Cihlová
Vlastnictví
Osobní
Užitná plocha
75 m2
Třída energetické náročnosti
G - Mimořádně nehospodárná

Kontaktovat makléře

Realitní kancelář

Trigramreality s.r.o.

Milady Horákové 1738/7, Hradec Králové

Chystáte se prodat nemovitost?
Pomůžeme Vám!

Máte zájem o tento byt?

Tímto, v souladu s nařízením Evropského parlamentu a Rady (EU) 2016/679, v platném znění, prohlašuji, že mi je alespoň 16 let a uděluji tak svůj souhlas se zpracováním zadaných údajů (jméno, telefon, e-mail, ip adresa) společnosti B3 Technology, s.r.o., IČ: 07330600, se sídlem Novostavby 126/23, 435 11 Lom (správce dat), za účelem předání dotazu z tohoto formuláře Vámi vybranému inzerentovi a zpětného kontaktování mé osoby. Osobní údaje bude správce zpracovávat manuálně i automaticky přímo prostřednictvím svých zaměstnanců. Informace předané tímto formulářem budou uloženy v databázi správce maximálně po dobu 10 let. Odvolání souhlasu s uložením a zpracováním poskytnutých dat lze e-mailem na info@realitypro.eu. V případě podezření na neoprávněné použití Vámi poskytnutých údajů máte právo předat podnět k šetření Úřadu pro ochranu osobních údajů. Více informací
Chystáte se prodat nemovitost?
Pomůžeme Vám!

Inzerát si prohlédlo 0 lidí

Prodejce

Bc. Jiří Hruška

Bc. Jiří Hruška

Hlídací pes

Chcete dostávat emailem podobné nabídky pronájmu bytů 3+1 v Třebechovicích pod Orebem?

Podobné nemovitosti