Pronájem kanceláře, Ústí nad Labem - Klíše, Masarykova, 63 m2

Masarykova, Ústí nad Labem, okres ústí nad labem, Ústí nad Labem-město

12 570 Kč /za měsíc Získejte výhodnou HYPOTÉKU

(Paušální cena služeb včetně úklidu a odpadu činí 2500Kč/měs, celkem tedy 10500 Kč bez DPH)

Prověřené firmy v Ústí nad Labem

Okna a dveře

Rekonstrukce

Informace k nemovitosti

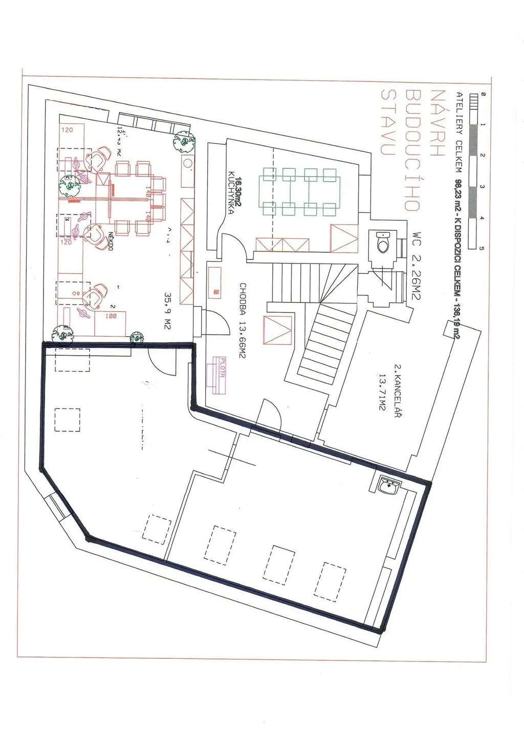
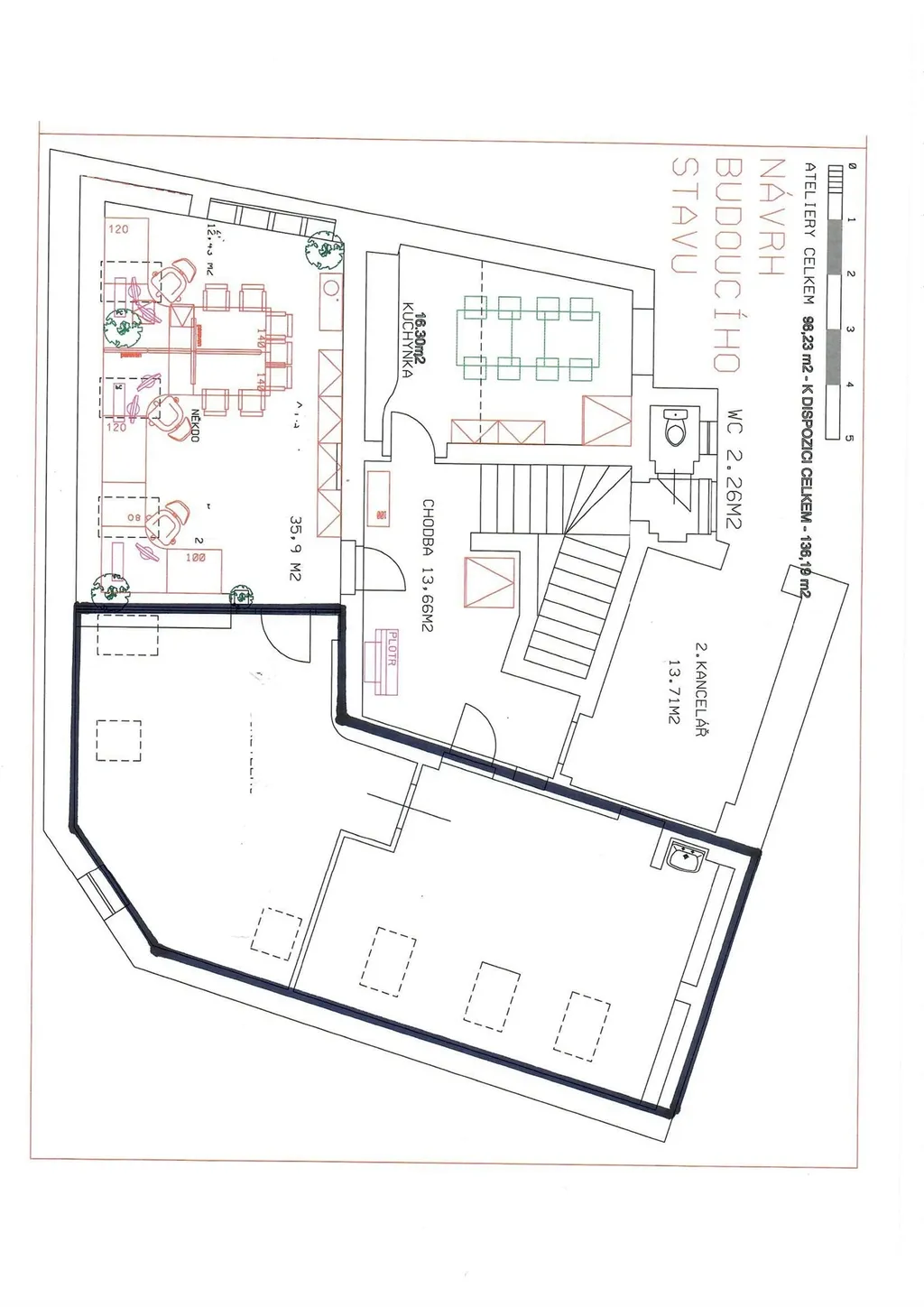
Nabízíme k pronájmu celkem 3 sousedící kanceláře o celkové ploše 63 m2 v 2.patře budovy v ulici Masarykova. Místnosti jsou prostorné a světlé, na podlaze jsou koberce. V jedné místnosti umyvadlo, dále je možnost využívat vybavenou kuchyňku se zasedací místností v témže patře, toalety na patře sdílené. Měsíční nájemné činí 12 570 Kč, služby se platí paušální částkou 4 490 Kč měsíčně a zahrnují vytápění, dodávku vody, el. energie, úklid budovy a odvoz odpadu. Možnost internetového připojení Amigonet, případně vlastní. Budova výborně zabezpečena. Parkování v okolí domu veřejné, bez omezení a neplacené. Výborná dostupnost MHD, v dochozí vzdálenosti od centra. Odměna RK 12 000 Kč, kauce dle dohody s pronajímatelem. Volné dle dohody.

Parametry nemovitosti

Cena
12 570 Kč /za měsíc
Poznámka k ceně
Paušální cena služeb včetně úklidu a odpadu činí 2500Kč/měs, celkem tedy 10500 Kč bez DPH
Aktualizováno
11. 3. 2026
Adresa
Masarykova, Ústí nad Labem, okres ústí nad labem, Ústí nad Labem-město
ID
976039
Stavba
Cihlová
Stav objektu
Po rekonstrukci
Patro
3. z 4
Typ objektu
Patrový
Vlastnictví
Osobní
Užitná plocha
63 m2
Zastavěná plocha
185 m2
Plocha pozemku
1 m2
Plocha nebytových prostor
63 m2
Třída energetické náročnosti
G - Mimořádně nehospodárná
Elektřina
230V
Plyn
Plynovod
Topení
Ústřední plynové
Voda
Vodovod

Kontaktovat makléře

Realitní kancelář

Logo ERA Sever

ERA Sever

Masarykova 106/129, Ústí nad Labem

Chystáte se prodat nemovitost?
Pomůžeme Vám!

Máte zájem o tuto nemovistost?

Tímto, v souladu s nařízením Evropského parlamentu a Rady (EU) 2016/679, v platném znění, prohlašuji, že mi je alespoň 16 let a uděluji tak svůj souhlas se zpracováním zadaných údajů (jméno, telefon, e-mail, ip adresa) společnosti B3 Technology, s.r.o., IČ: 07330600, se sídlem Novostavby 126/23, 435 11 Lom (správce dat), za účelem předání dotazu z tohoto formuláře Vámi vybranému inzerentovi a zpětného kontaktování mé osoby. Osobní údaje bude správce zpracovávat manuálně i automaticky přímo prostřednictvím svých zaměstnanců. Informace předané tímto formulářem budou uloženy v databázi správce maximálně po dobu 10 let. Odvolání souhlasu s uložením a zpracováním poskytnutých dat lze e-mailem na info@realitypro.eu. V případě podezření na neoprávněné použití Vámi poskytnutých údajů máte právo předat podnět k šetření Úřadu pro ochranu osobních údajů. Více informací
Chystáte se prodat nemovitost?
Pomůžeme Vám!

Inzerát si prohlédlo 0 lidí

Prodejce

Jolana Šulcová

Jolana Šulcová

Hlídací pes

Chcete dostávat emailem podobné nabídky pronájmu kanceláří v Ústí nad Labem?

Podobné nemovitosti