Pronájem bytu 3+kk, Praha - Chodov, Mikulova, 82 m2

Mikulova, Praha, Chodov

24 000 Kč /za měsíc Získejte výhodnou HYPOTÉKU

(+ samostatná garáž 2.000 Kč + zálohy na poplatky 5.500 Kč + záloha na elektřinu 1.200 Kč.)

Prověřené firmy v Praze 4

Stěhovací služby

Výkup a prodej starého nábytku

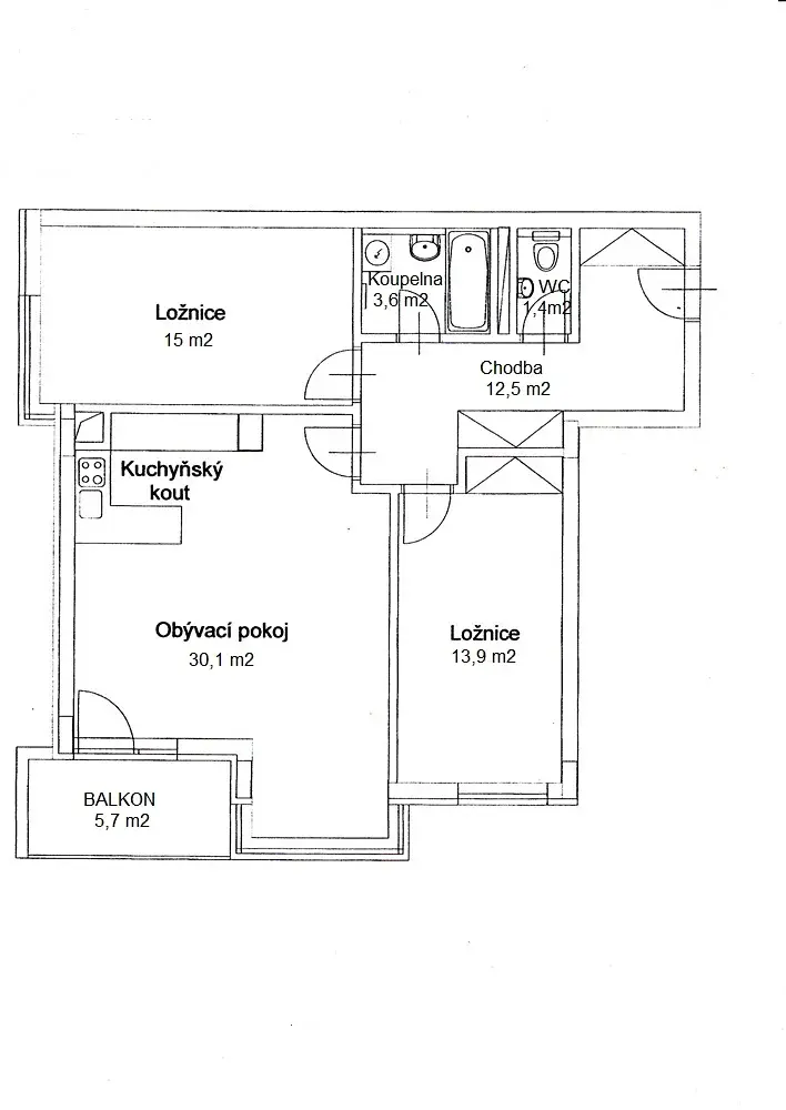
Informace k bytu

Realitní kancelář JUVIPA s.r.o. nabízí k pronájmu, i pro cizince, krásný byt se samostatnou garáží v domě z roku 2007, 3+kk+balkon, 82,2 m2 z toho balkon 5,7 m2, (obývací pokoj s kuchyňským koutem 30,1 m2, ložnice 13,9 m2, ložnice 15 m2, předsíně 12,5 m2, koupelna 3,6 m2, WC 1,4 m2), 4.NP, cihla, výtah. Byt je zařízený. Kuchyňská linka s vestavěnými spotřebiči, mimo myčky na nádobí. V bytě jsou plovoucí podlahy a dlažba. Před předáním bude byt čerstvě vymalován.

Dům se nachází v těsné blízkosti Centrálního parku, zóny chráněné krajiny – Milíčovský les a Hostivařské přehrady. Dobrá dopravní dostupnost do centra, v blízkosti domu zastávka autobusu, pěší vzdálenost cca 8 min na metro C Opatov. V okolí veškerá občanská vybavenost včetně školky, školy, supermarketu, lékaře, pošty.

Cena: 24.000 Kč + samostatná garáž 2.000 Kč + zálohy na poplatky 5.500 Kč + záloha na elektřinu 1.200 Kč.

K nastěhování od 10.05.2026. Prohlídky jsou možné po dohodě.

Budete-li mít zájem o prohlídku bytu nebo o další informace, kontaktujte mě prosím e-mailem nebo telefonicky (Po-Ne 9:00 - 20:00)

Energetická náročnost budovy: C - Úsporná.

Majitel bytu preferuje zájemce bez zvířat!

Parametry bytu

Cena
24 000 Kč /za měsíc
Poznámka k ceně
+ samostatná garáž 2.000 Kč + zálohy na poplatky 5.500 Kč + záloha na elektřinu 1.200 Kč.
Aktualizováno
23. 4. 2026
Adresa
Mikulova, Praha, Chodov
Stavba
Cihlová
Stav objektu
Velmi dobrý
Patro
4.
Vybaveno
Ano
Vlastnictví
Osobní
Užitná plocha
82 m2
Třída energetické náročnosti
C - Úsporná
Elektřina
230V
Odpad
Veřejná kanalizace
Komunikace
Asfaltová
Telekomunikace
Internet
Doprava
MHD
Voda
Vodovod
Topné těleso
Radiátory
Zdroj topení
Ústřední dálkové
Zdroj teplé vody
Centrální dálkový ohřev
Balkon
Garáž
Výtah

Kontaktovat makléře

Realitní kancelář

JUVIPA, s.r.o.

Mělnická 577/3, Praha 5

Chystáte se prodat nemovitost?
Pomůžeme Vám!

Máte zájem o tento byt?

Tímto, v souladu s nařízením Evropského parlamentu a Rady (EU) 2016/679, v platném znění, prohlašuji, že mi je alespoň 16 let a uděluji tak svůj souhlas se zpracováním zadaných údajů (jméno, telefon, e-mail, ip adresa) společnosti B3 Technology, s.r.o., IČ: 07330600, se sídlem Novostavby 126/23, 435 11 Lom (správce dat), za účelem předání dotazu z tohoto formuláře Vámi vybranému inzerentovi a zpětného kontaktování mé osoby. Osobní údaje bude správce zpracovávat manuálně i automaticky přímo prostřednictvím svých zaměstnanců. Informace předané tímto formulářem budou uloženy v databázi správce maximálně po dobu 10 let. Odvolání souhlasu s uložením a zpracováním poskytnutých dat lze e-mailem na info@realitypro.eu. V případě podezření na neoprávněné použití Vámi poskytnutých údajů máte právo předat podnět k šetření Úřadu pro ochranu osobních údajů. Více informací
Chystáte se prodat nemovitost?
Pomůžeme Vám!

Inzerát si prohlédlo 7 lidí

Prodejce

Věra Panová

Věra Panová

Hlídací pes

Chcete dostávat emailem podobné nabídky pronájmu bytů 3+kk v Praze 4?

Podobné nemovitosti