Prodej bytu 4+kk, Rousínov, Javorová, 102 m2

Javorová, Rousínov

8 990 000 Kč /za nemovitost HYPOTÉKA od 40 180 Kč /za měsíc

(včetně DPH, včetně poplatků, včetně provize, včetně právního servisu)

Prověřené firmy v Rousínově

Informace k bytu

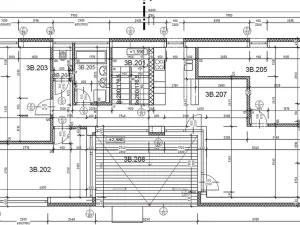
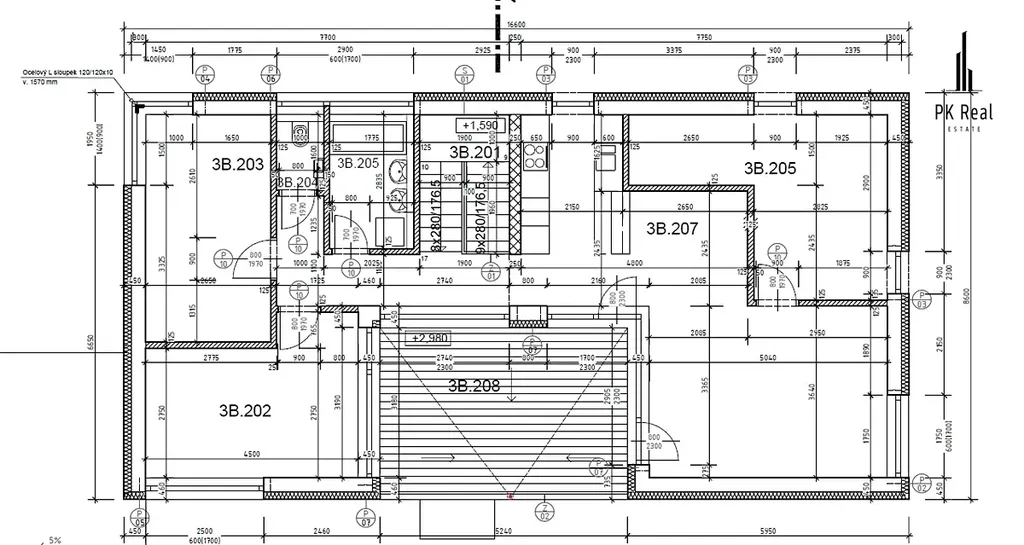
Ke koupi nabízím nadstandardní bytovou jednotku o dispozici 4+kk s velkou terasou, garáží a dalším parkovacím místem hned u domu.

Byt vám nabízí komfortní bydlení v nově vznikající lokalitě na ulici Javorová v Rousínově. Jednotlivé byty budou k nastěhování připraveny ihned po kolaudaci.

Bytová jednotka je dokončena.

Ve vila domech, jehož součástí je předmětná jednotka, jsou využity nejmodernější technologie - např. keramické cihly, elektrické podlahové vytápění, kvalitní plastová okna a jednotlivé byty jsou odhlučněny zvukovou izolací. To vše garantuje vysoký standard bydlení s velmi úsporným provozem.

Napojení na IS: obecní vodovod, elektřina, veřejná kanalizace.

Lokalita: projekt se staví v tiché a klidné části obce vzdálené jen 5 minut pěšky od centra. V místě se nachází veškerá občanská vybavenost (obchody, restaurace, MŠ, ZŠ, lékaři).

Dopravní dostupnost: 22 km do Brno a 20 km do Vyškova. K cestování je možné využít dálnici (nájezd 5 minut), autobus (5 minut pěšky).

Koupi bytu je možné financovat hypotečním úvěrem s jehož vyřízením Vám pomůžeme.

V případě, že Vás tato jedinečná nabídka zaujala, tak mne neváhejte kontaktovat. Rád Vám o projektu Residence Lipové Sady v obci Rousínov povím více. Budu se těšit na osobní setkání s vámi přímo na stavbě.

Parametry bytu

Cena
8 990 000 Kč /za nemovitost Spočítat hypotéku
Poznámka k ceně
včetně DPH, včetně poplatků, včetně provize, včetně právního servisu
Aktualizováno
10. 3. 2026
Adresa
Javorová, Rousínov
ID
00131
Stavba
Cihlová
Stav objektu
Ve výstavbě
Patro
2. z 2
Lokalita objektu
Klidná část obce
Vlastnictví
Osobní
Užitná plocha
102 m2
Podlahová plocha
142 m2
Třída energetické náročnosti
C - Úsporná
Ukazatel energetické náročnosti
117 kWh/m2 za rok
Elektřina
230V, 400V
Odpad
Veřejná kanalizace
Komunikace
Asfaltová
Telekomunikace
Internet, Kabelové rozvody
Doprava
Dálnice, Silnice, Autobus
Voda
Vodovod
Topné těleso
Podlahové vytápění
Zdroj topení
Jiné
Zdroj teplé vody
Bojler - elektro
Garáž
Terasa
Parkování

Kontaktovat makléře

Máte zájem o tento byt?

Tímto, v souladu s nařízením Evropského parlamentu a Rady (EU) 2016/679, v platném znění, prohlašuji, že mi je alespoň 16 let a uděluji tak svůj souhlas se zpracováním zadaných údajů (jméno, telefon, e-mail, ip adresa) společnosti B3 Technology, s.r.o., IČ: 07330600, se sídlem Novostavby 126/23, 435 11 Lom (správce dat), za účelem předání dotazu z tohoto formuláře Vámi vybranému inzerentovi a zpětného kontaktování mé osoby. Osobní údaje bude správce zpracovávat manuálně i automaticky přímo prostřednictvím svých zaměstnanců. Informace předané tímto formulářem budou uloženy v databázi správce maximálně po dobu 10 let. Odvolání souhlasu s uložením a zpracováním poskytnutých dat lze e-mailem na info@realitypro.eu. V případě podezření na neoprávněné použití Vámi poskytnutých údajů máte právo předat podnět k šetření Úřadu pro ochranu osobních údajů. Více informací
Chystáte se prodat nemovitost?
Pomůžeme Vám!

Inzerát si prohlédlo 0 lidí

Prodejce

Vlastimil Pohajda

Vlastimil Pohajda

Hlídací pes

Chcete dostávat emailem podobné nabídky prodeje bytů 4+kk v Rousínově?

Podobné nemovitosti