Pronájem kanceláře, Malotice, 33 m2

Malotice

6 500 Kč /za měsíc Získejte výhodnou HYPOTÉKU

(+ energie dle skutečné spotřeby (elektřina a vodné/stočné), včetně právního servisu)

Prověřené firmy v Maloticích

Informace k nemovitosti

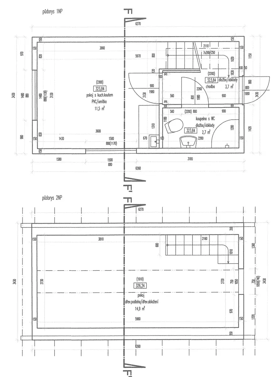
Nabízíme k pronájmu samostatný menší domek nacházející se v uzavřeném skladovém areálu na adrese Malotice 101. Objekt je vhodný zejména jako kancelář, zázemí firmy, dispečink, servisní zázemí nebo menší provozovnu.

Domek je situován přímo v areálu s dobrým příjezdem a možností parkování v blízkosti objektu.

Dispozice a výměry:
- přízemní místnost s kuchyňským koutem – 11,5 m²
- předsíň – 3,7 m²
- koupelna se sprchovým koutem a WC – 2,7 m²
- podkrovní místnost – 14,9 m²

Celková užitná plocha: cca 32,8 m²

Podkrovní místnost může sloužit jako další kancelář, archiv nebo menší sklad.

Technické informace:
- vlastní elektroměr a vodoměr
- energie se hradí dle skutečné spotřeby
- vytápění elektrickými přímotopy

Další možnosti:

K objektu je možné pronajmout také venkovní plochy v areálu, vhodné například pro:
- parkování osobních či užitkových vozidel
- skladování materiálu

Nájemné: 6 500 Kč / měsíc

Energie: dle skutečné spotřeby

V případě zájmu o více informací nebo prohlídku nás neváhejte kontaktovat.

Parametry nemovitosti

Cena
6 500 Kč /za měsíc
Poznámka k ceně
+ energie dle skutečné spotřeby (elektřina a vodné/stočné), včetně právního servisu
Aktualizováno
10. 3. 2026
Adresa
Malotice
ID
Malotice - budova č. 3
Stavba
Dřevěná
Stav objektu
Velmi dobrý
Vybaveno
Částečně
Lokalita objektu
Klidná část obce
Užitná plocha
33 m2
Třída energetické náročnosti
G - Mimořádně nehospodárná
Elektřina
230V
Odpad
Jímka
Komunikace
Asfaltová
Telekomunikace
Internet
Doprava
Dálnice, Silnice, MHD, Autobus
Voda
Místní zdroj vody, Vodovod
Topné těleso
Přímotop
Zdroj topení
Přímotop
Zdroj teplé vody
Bojler - elektro
Parkování

Kontaktovat makléře

Máte zájem o tuto nemovistost?

Tímto, v souladu s nařízením Evropského parlamentu a Rady (EU) 2016/679, v platném znění, prohlašuji, že mi je alespoň 16 let a uděluji tak svůj souhlas se zpracováním zadaných údajů (jméno, telefon, e-mail, ip adresa) společnosti B3 Technology, s.r.o., IČ: 07330600, se sídlem Novostavby 126/23, 435 11 Lom (správce dat), za účelem předání dotazu z tohoto formuláře Vámi vybranému inzerentovi a zpětného kontaktování mé osoby. Osobní údaje bude správce zpracovávat manuálně i automaticky přímo prostřednictvím svých zaměstnanců. Informace předané tímto formulářem budou uloženy v databázi správce maximálně po dobu 10 let. Odvolání souhlasu s uložením a zpracováním poskytnutých dat lze e-mailem na info@realitypro.eu. V případě podezření na neoprávněné použití Vámi poskytnutých údajů máte právo předat podnět k šetření Úřadu pro ochranu osobních údajů. Více informací
Chystáte se prodat nemovitost?
Pomůžeme Vám!

Inzerát si prohlédlo 0 lidí

Prodejce

Petr Fuksa

Petr Fuksa

Hlídací pes

Chcete dostávat emailem podobné nabídky pronájmu kanceláří v Maloticích?

Podobné nemovitosti