Pronájem bytu 1+kk, Ostrava - Vítkovice, Tržní, 25 m2

Tržní, Ostrava, Vítkovice

7 000 Kč /za měsíc Získejte výhodnou HYPOTÉKU

(Kauce 14000,-Kč, záloha na teplo a vodu ( paušální platba ) 1500,-Kč, elektřina 1000,-Kč měsíčně ( vlastní elektroměr, vyúčtování 1x ročně) Provize RK 11000,-Kč)

Prověřené firmy v Ostravě

Informace k bytu

Pronájem bytu 1+kk, 25 m², Ostrava, ul. Tržní

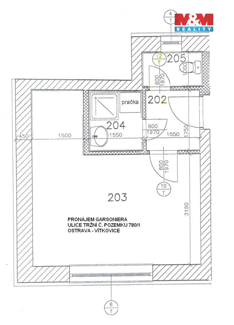
Nabízíme k pronájmu 1+kk, o velikosti 25 m² v samém srdci Ostravy Vítkovic. Byt je ideální pro jednu až 2 osoby. Díky praktické dispozici je vhodný také jako menší kancelář či pracovní prostor.
Po vstupu do bytu se nachází předsíň, ze které je vlevo vstup do pokoje s kuchyňským koutem. Vpravo je samostatné WC a naproti vstupním dveřím koupelna se sprchovým koutem a místem pro pračku. Byt je nevybavený, takže si jej můžete zařídit přesně podle vlastních představ. K dispozici je kuchyňský kout s indukční plotýnkou, lednicí a základním nádobím. Podlahy tvoří lino a dlažba, okna mají moderní rolety. Byt se nachází v 1. NP cihlového domu, plastová okna jsou orientována na severozápad. Vytápění je plynové, elektřina má samostatný elektroměr. Velkou výhodou je výborná lokalita – parkování přímo před domem a veškerá občanská vybavenost v docházkové vzdálenosti do 150 m (MHD, obchody, škola, školka, pošta i nemocnice). Byt je volný od 1 dubna. v případě zájmu mne neváhejte kontaktovat.

Parametry bytu

Cena
7 000 Kč /za měsíc
Poznámka k ceně
Kauce 14000,-Kč, záloha na teplo a vodu ( paušální platba ) 1500,-Kč, elektřina 1000,-Kč měsíčně ( vlastní elektroměr, vyúčtování 1x ročně) Provize RK 11000,-Kč
Aktualizováno
5. 3. 2026
Adresa
Tržní, Ostrava, Vítkovice
ID
935341
Stavba
Cihlová
Stav objektu
Velmi dobrý
Vybaveno
Částečně
Lokalita objektu
Centrum obce
Vlastnictví
Osobní
Užitná plocha
25 m2

Kontaktovat makléře

Realitní kancelář

Logo M&M reality

M&M reality

ulice Krakovská 583/9, Praha

Chystáte se prodat nemovitost?
Pomůžeme Vám!

Máte zájem o tento byt?

Tímto, v souladu s nařízením Evropského parlamentu a Rady (EU) 2016/679, v platném znění, prohlašuji, že mi je alespoň 16 let a uděluji tak svůj souhlas se zpracováním zadaných údajů (jméno, telefon, e-mail, ip adresa) společnosti B3 Technology, s.r.o., IČ: 07330600, se sídlem Novostavby 126/23, 435 11 Lom (správce dat), za účelem předání dotazu z tohoto formuláře Vámi vybranému inzerentovi a zpětného kontaktování mé osoby. Osobní údaje bude správce zpracovávat manuálně i automaticky přímo prostřednictvím svých zaměstnanců. Informace předané tímto formulářem budou uloženy v databázi správce maximálně po dobu 10 let. Odvolání souhlasu s uložením a zpracováním poskytnutých dat lze e-mailem na info@realitypro.eu. V případě podezření na neoprávněné použití Vámi poskytnutých údajů máte právo předat podnět k šetření Úřadu pro ochranu osobních údajů. Více informací
Chystáte se prodat nemovitost?
Pomůžeme Vám!

Inzerát si prohlédlo 0 lidí

Prodejce

Pavel Mrázek

Pavel Mrázek

Hlídací pes

Chcete dostávat emailem podobné nabídky pronájmu bytů 1+kk v Ostravě?

Podobné nemovitosti